Image de présentation du bien n° 285491

A propos de ce bien

Référence: 285491


Dans un complexe immobilier sis boulevard de la Deuxième Armée Britannique 39-41-43-45
Dans le bâtiment 1 :
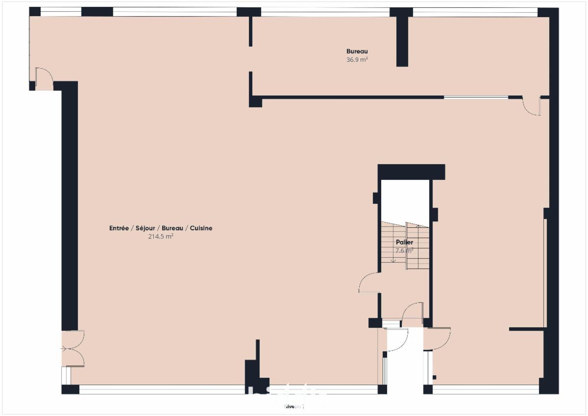
Lot 1 : Le commerce n° 1 au rdc. CO.REZ/1
Comprenant la surface commercial. R.c.n.i. 1.786€.
Dans le bâtiment 2 :
Lot 2 : Le commerce n° 2 au rdc. CO/REZ/2
Comprenant la surface commercial. R.c.n.i. 1.292€.
Lot 3 : Le commerce n° 3 au rdc. CO.REZ/3
Comprenant la surface commercial. R.c.n.i. 1.292€.
Lot 4 : L’atelier n° 2 ATELIER/2
Comprenant l’atelier. R.c.n.i. 980€.
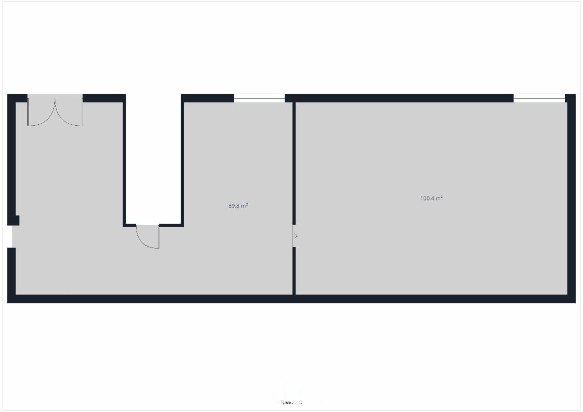
Dans le bâtiment 3 :
Lot 5 : L’atelier n° 3 ATELIER/3
Comprenant l’atelier. R.c.n.i. 980€.
Dans les parkings, la zone de manœuvres et les espaces verts, derrière les ateliers :
Lot 6 : Le parking n° P4
R.c.n.i. 24€.
Contr. électr. non conforme. Zone mixte, en espace structurant. Visites : lundis 17-24/11, 1-8/12 de 10-12h et mercredis 19-26/11, 3-10/12 de 12h30-14h30.
Début enchères : mercredi 03.12.25 à 12h -
Fin enchères : jeudi 11.12.25 à 12h -
Mise à prix : 950.000€ -
Enchère min. : 1.000€ -
Sign. acte : mardi 16.12.25 à 15h -
www.biddit.be - Réf. bien : 285491.

Informations générales

  • Libre à partir duAutre
  • Type de bienCommerces
  • Revenu cadastral6 354 €

Informations supplémentaires

  • Nombre d'emplacements à l'extérieur1

Informations énergétiques

  • Attestation de conformité de l'installation électriqueOui, non conforme
  • Autres remarquesZone mixte, en espace structurant

Informations financières

  • % actuel loué100%

Informations urbanistiques

  • Destination urbanistique licite la plus récente et la plus préciseZones mixtes

Documents et pièces jointes

Vente online

Faire offre à partir de

950 000 €

Informations de vente

Logo du partenaire Biddit

Date de début: 03/12/2025 12:00

Date de fin: 11/12/2025 12:00

Pas d'enchère: 1 000 €

Voir la fiche sur Biddit.be

Vendu par l'étude VRONINKS, RICKER & WEYTS & SACRÉ - notaires

Informations de visite

lundis 17-24/11, 1-8/12 de 10-12h et mercredis 19-26/11, 3-10/12 de 12h30-14h30.

Visite virtuelle

Découvrez le bien en visite virtuelle !

Visiter maintenant