Image de présentation du bien n° 294154

A propos de ce bien

Référence: 294154


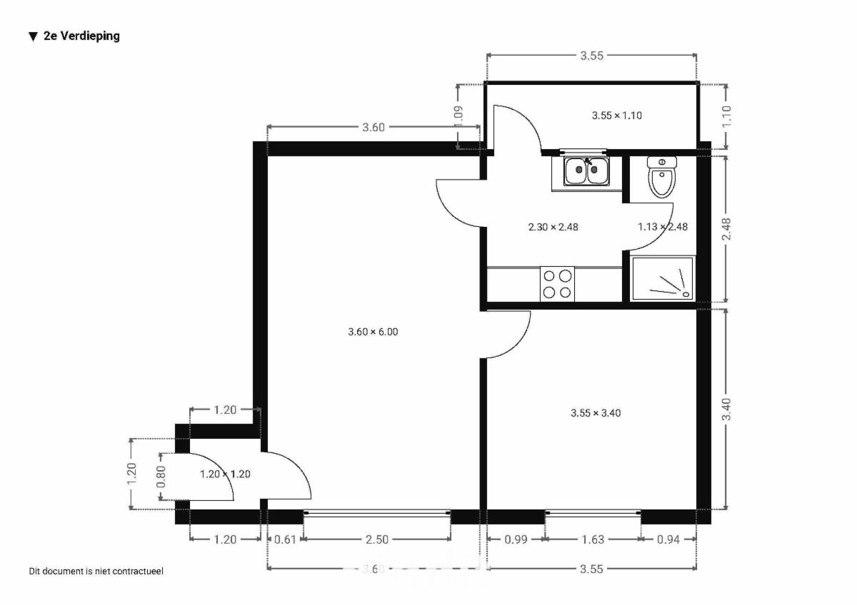
Au deuxième étage. Comprend : porte d'entrée, salon, cuisine, salle de bains et chambre, avec cave au sous-sol. Gvg (verm. van verg.), Wg, Gmo, Gvkr, Gvv. KI 423,00 €. Score P et G : « C ». Sans amiante, installation électrique conforme, label EPC « D » (aucune obligation de rénovation), certificat de sol vierge. Réservoir de mazout présent. Provision mensuelle : 157,00 €.
Voir les conditions de vente. G score: C P score: C

Informations générales

  • Libre à partir duImmédiatement
  • Construction1957
  • Type de bienAppartements
  • Etage(s)1
  • Superficie habitable54m2
  • Revenu cadastral423 €
  • Nombre de façades2

Composition du bien

  • 1 chambre
  • 1 salle de bain
  • 1 WC
  • Cave
  • Séjour

Informations supplémentaires

  • Etat du bienBon
  • Type de chauffageGaz

Informations sur le jardin et terrain

  • Superficie cadastrale139m2

Informations énergétiques

  • Score énergétique (indice) du PEB324 kWh/m2
  • Label énergétique RFD
  • Code unique certificat PEB20230201-0002797655-RES-1

Informations urbanistiques

  • La destination urbanistique la plus récente de ce bien avec les dénominations utilisées dans le registre des plansWoongebied

Vente online

Faire offre à partir de

65 000 €

Informations de vente

Logo du partenaire Biddit

Date de début: 04/05/2026 15:00

Date de fin: 12/05/2026 15:00

Pas d'enchère: 1 000 €

Voir la fiche sur Biddit.be

Vendu par l'étude NOTARIAAT BART VAN TULDEN

Informations de visite

24/04/2026-09/05/2026, tous les vendredis de 16h à 18h et les samedis de 10h à 12h. Il est recommandé d'en informer au préalable (info@notariaatkerkstraat74.be)

Visite virtuelle

Découvrez le bien en visite virtuelle !

Visiter maintenant