Image de présentation du bien n° 290167

A propos de ce bien

Référence: 290167


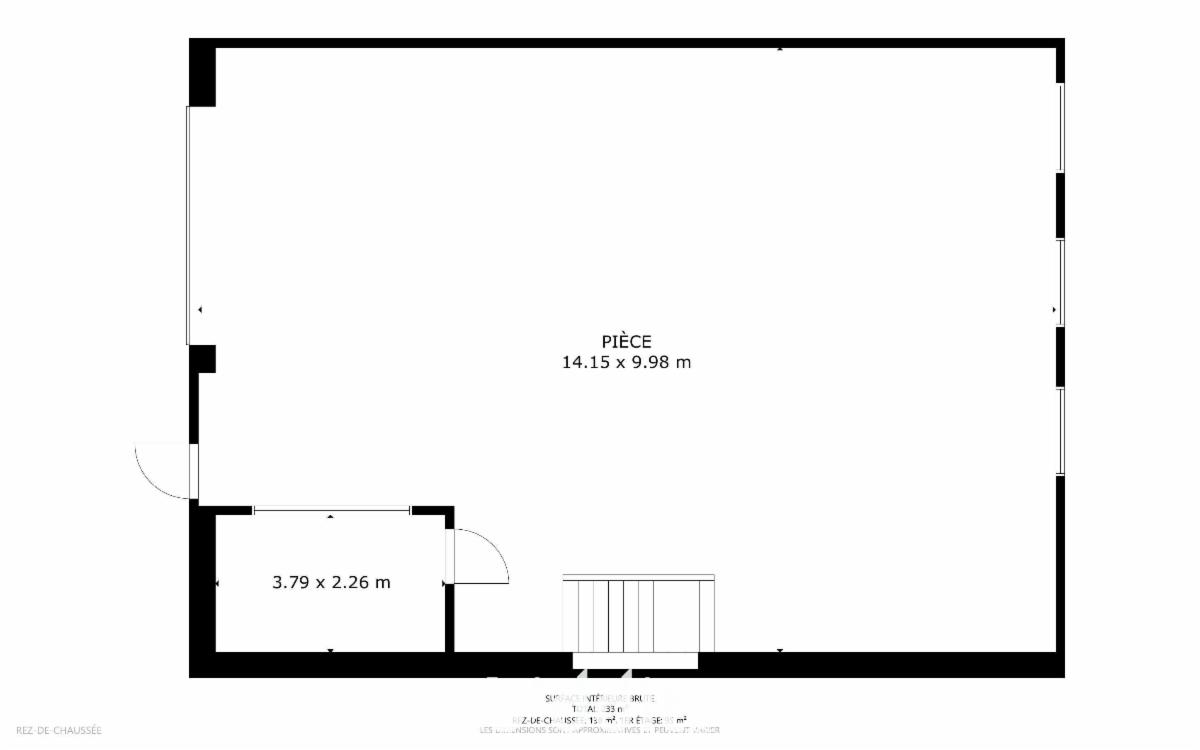
Un bâtiment industriel de 320m² situé dans une zone d’activité économique composé de deux niveaux (160 m² chacun).
Le bien dispose d’un grand accès en façade via une porte électrique, d’un raccordement à l’eau, à l’électricité ainsi que d’un accès aisé garanti par le chemin d’accès qui doit rester libre à tout moment par l’ensemble des propriétaires. Il est également proche de toutes commodités et accès routiers.
L’attention des candidats est tout particulièrement attirée sur la situation urbanistique du bien, lequel se situe dans une zone à risque d'inondation avec une hypothèse de démolition pour des raisons de sécurité ainsi que dans un périmètre destiné à être démoli afin de déminéraliser la zone et d'y réaliser des aménagements adaptés aux enjeux liés aux inondations.
Nous invitions les candidats à consulter attentivement le cahier des charges de la vente publique et à prendre contact avec le service urbanisme de la commune de Trooz afin d’obtenir plus d’informations à ce sujet.

Informations générales

  • Libre à partir duÀ l'acte
  • Type de bienIndustries
  • Revenu cadastral311 €

Informations sur le jardin et terrain

  • Superficie cadastrale160m2

Informations urbanistiques

  • Destination urbanistique la plus récenteZone d’activité économique industrielle

Données relatives à la protection du patrimoine

  • Inscription à la liste de sauvegarde ou de classement du patrimoine immobilierNon

Vente online

Faire offre à partir de

70 000 €

Informations de vente

Vente terminée
Logo du partenaire Biddit

Date de début: 06/01/2026 13:00

Date de fin: 14/01/2026 13:00

Pas d'enchère: 1 000 €

Voir la fiche sur Biddit.be

Vendu par l'étude ETUDE NOTARIALE DE LOUVEIGNE, société notariale

Informations de visite

Le bien pourra être visité par les candidats-acquéreurs, sur rendez-vous uniquement au 04/360.01.48

Session d'information

Le bien pourra être visité par les candidats-acquéreurs, sur rendez-vous uniquement au 04/360.01.48