Image de présentation du bien n° 288547

A propos de ce bien

Référence: 288547


G score: A P score: A

Informations générales

  • Libre à partir duÀ l'acte
  • Construction1973
  • Type de bienMaisons
  • Etage(s)3
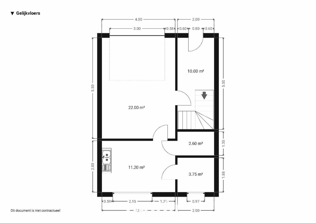
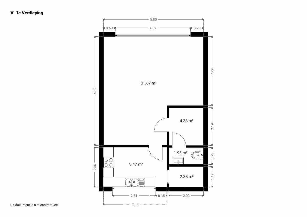
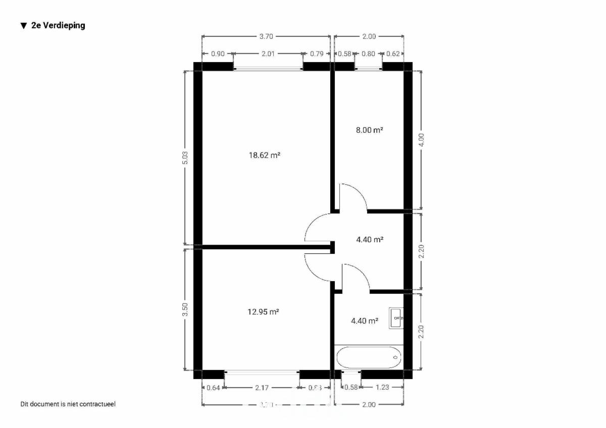
  • Superficie habitable169m2
  • Revenu cadastral1 204 €
  • Nombre de façades2

Composition du bien

  • 3 chambres
  • 1 salle de bain
  • 2 WC
  • Cuisine équipée
  • Séjour

Informations supplémentaires

  • Etat du bienA rafraichir
  • Type de chauffageGaz
  • Nombre d'emplacements à l'intérieur1

Informations sur le jardin et terrain

  • Superficie cadastrale180m2

Informations énergétiques

  • Score énergétique (indice) du PEB171 kWh/m2
  • Label énergétique RFB
  • Code unique certificat PEB20230807-0002959559-RES-1

Informations urbanistiques

  • Permis d'urbanisation ou permis de lotir
  • Permis d'urbanisme
  • La destination urbanistique la plus récente de ce bien avec les dénominations utilisées dans le registre des plansWoongebied

Vente online

Faire offre à partir de

320 000 €

Informations de vente

Logo du partenaire Biddit

Date de début: 12/11/2025 13:00

Date de fin: 20/11/2025 13:00

Pas d'enchère: 1 000 €

Voir la fiche sur Biddit.be

Vendu par l'étude VAN EEPOEL & VAN DYCK, geassocieerde notarissen

Informations de visite

na afspr. via het kantoor van de notaris op het nummer 014/88 10 62.

Visite virtuelle

Découvrez le bien en visite virtuelle !

Visiter maintenant

Session d'information

Dinsdag 28/10/2025 om 16u.