Image de présentation du bien n° 294942

A propos de ce bien

Référence: 294942


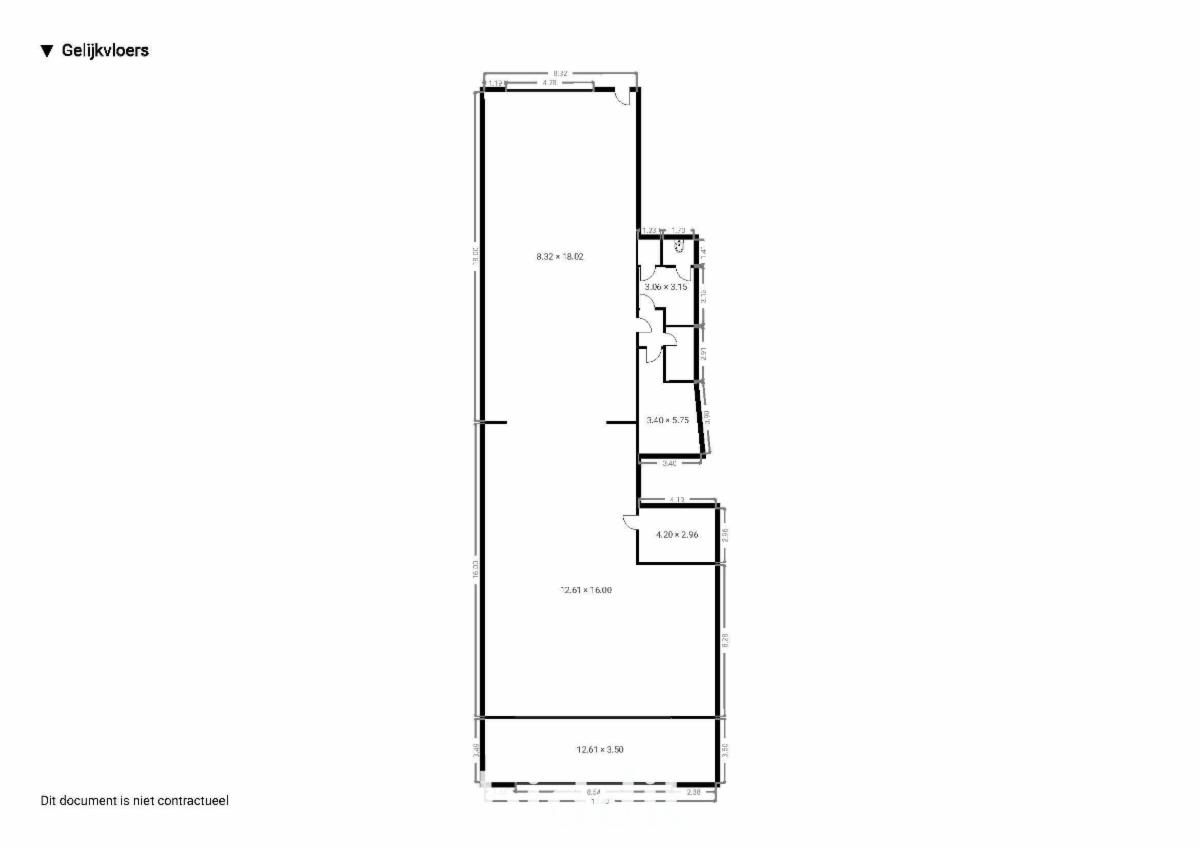
Local commercial au rez-de-chaussée, comprenant : sas, espaces commerciaux, toilettes, hall, vestiaire pour femmes avec salle de douche, vestiaire pour hommes avec salle de douche, local technique, escalier menant au sous-sol. Avec 50 % des parts de la copropriété. Avec jouissance et usage exclusifs du jardin situé derrière l'immeuble.
Situation centrale et grande visibilité, idéal pour diverses activités.
Actuellement autorisé comme local de consommation (horeca).
L'acheteur potentiel est invité à s'informer de manière approfondie, tant sur la nature et les conséquences des infractions urbanistiques que sur les possibilités (urbanistiques) du bien. Dans ce cadre, il lui est recommandé de prendre contact avec les services compétents « Handhaving » et « Omgeving » de la commune de Brecht : handhaving@brecht.be et omgeving@brecht.be. G score: A P score: A

Informations générales

  • Libre à partir duImmédiatement
  • Construction1998
  • Type de bienCommerces
  • Etage(s)1
  • Revenu cadastral2 554 €
  • Nombre de façades2

Composition du bien

  • 1 salle de bain
  • 1 WC
  • Cave

Informations supplémentaires

  • Etat du bienBon

Informations sur le jardin et terrain

  • Jardin
  • Superficie cadastrale935m2

Informations énergétiques

  • Label énergétique RFD
  • Code unique certificat PEB20211123-0002495259-KNR-1

Informations urbanistiques

  • Permis d'urbanisme
  • La destination urbanistique la plus récente de ce bien avec les dénominations utilisées dans le registre des plansWoongebied

Vente online

Faire offre à partir de

221 000 €

Informations de vente

Vente terminée
Logo du partenaire Biddit

Date de début: 06/05/2026 11:00

Date de fin: 14/05/2026 11:00

Pas d'enchère: 1 000 €

Voir la fiche sur Biddit.be

Vendu par l'étude Notariskantoor Huygens & Lefevre

Informations de visite

- Les mercredis 29 avril, 6 mai et 13 mai : de 15 h à 17 h ; - Les samedis 25 avril, 2 mai et 9 mai : de 12 h à 14 h. Une personne sera présente sur place, il n'est pas nécessaire de prendre rendez-vous.

Visite virtuelle

Découvrez le bien en visite virtuelle !

Visiter maintenant