Image de présentation du bien n° 296025

A propos de ce bien

Référence: 296025


G score: A P score: A

Informations générales

  • Libre à partir duImmédiatement
  • Type de bienMaisons
  • Etage(s)2
  • Revenu cadastral225 €
  • Nombre de façades2

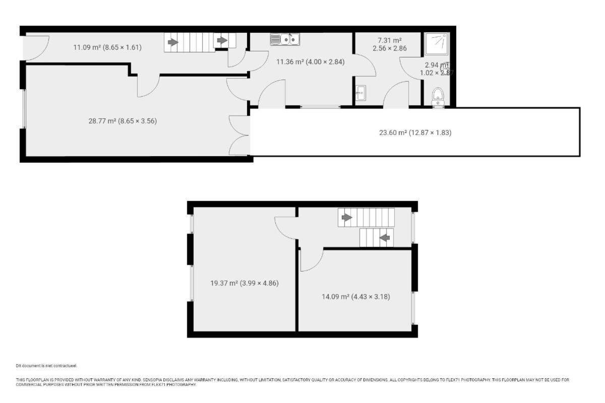
Composition du bien

  • 2 chambres
  • 1 salle de bain
  • 1 WC
  • Grenier
  • Cave
  • Séjour

Informations supplémentaires

  • Etat du bienBon
  • Type de chauffageGaz

Informations sur le jardin et terrain

  • Superficie cadastrale95m2

Informations énergétiques

  • Score énergétique (indice) du PEB458 kWh/m2
  • Label énergétique RFE L’obligation légale de rénover peut s’appliquer pour ce bien.
  • Code unique certificat PEB20240324-0003187358-RES-1

Informations urbanistiques

  • La destination urbanistique la plus récente de ce bien avec les dénominations utilisées dans le registre des plansWoongebied met culturele, historische en/of esthetische waarde

Données relatives à la protection du patrimoine

  • Le bien est protégé ou repris dans un inventaire établiAutre
  • Autre type d'inventaireDe woning is geklasseerd als monument en het Begijnhof is in zijn geheel UNESCO-werelderfgoed en erkend en geklasseerd als Landschap.

Vente de gré à gré

Faire offre à partir de

53 100 €

Vendu par l'étude SZABO notarissen

Vous avez une question sur ce bien ou souhaitez planifier une visite ? Contactez le notaire du vendeur.

Visite virtuelle

Découvrez le bien en visite virtuelle !

Visiter maintenant