Image de présentation du bien n° 291754

A propos de ce bien

Référence: 291754


DISPONIBLE A LA VENTE / LOCATION pour l'ensemble ou par lot.
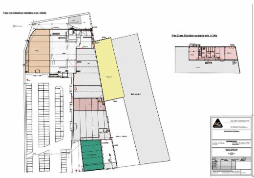
Grand espace commercial composé de 5 cellules marchandes. Le tout situé sur l’emplacement de l’ancienne verrerie de Boussu.
Le bien est idéalement situé proche du centre urbain et accessible facilement, bonne visibilité des cellules depuis l’axe fort passant, gros potentiel.

Etat général extérieur du bâti : Bon – similaire pour toutes les cellules.
État général intérieur des cellules : De correct à « à rafraîchir et réhabiliter » au cas par cas.

Surfaces :
Cellule 2 : 1386 m² ;
Cellule 3 : 1.147 m² ;
Cellule 4 : 352 m² ;
Cellule 5 : 935 m² ;
Cellule 6 : 559 m².

Informations supplémentaires : Le bien se situe intégralement en zone d’activités économiques au plan de secteur. Renseignements auprès de l'étude.

Informations générales

  • Libre à partir duÀ l'acte
  • Type de bienCommerces

Informations sur les commodités et facilités

  • Bus à proximité
  • Gare/trains à proximité
  • Magasins à proximité
  • Écoles à proximité
  • Autoroute à proximité

Informations financières

  • Revenu cadastral à définir

Vente de gré à gré

Faire offre à partir de

275 000 €

Vendu par l'étude Dirosa, Jeanine

Vous avez une question sur ce bien ou souhaitez planifier une visite ? Contactez le notaire du vendeur.

Informations de visite

S'adresser en l'étude - 065/78.38.23.