Image de présentation du bien n° 288968

A propos de ce bien

Référence: 288968


G score: D P score: D

Informations générales

  • Libre à partir duÀ l'acte
  • Type de bienMaisons
  • Revenu cadastral176 €
  • Nombre de façades2

Composition du bien

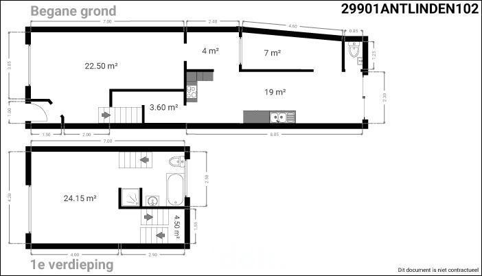
  • 1 chambre
  • 1 salle de bain
  • 2 WC

Informations supplémentaires

  • Etat du bienA rénover

Informations sur le jardin et terrain

  • Jardin
  • Superficie cadastrale118m2

Informations énergétiques

  • Score énergétique (indice) du PEB423 kWh/m2
  • Label énergétique RFE L’obligation légale de rénover peut s’appliquer pour ce bien.
  • Code unique certificat PEB20250717-0003649390-RES-1

Informations urbanistiques

  • La destination urbanistique la plus récente de ce bien avec les dénominations utilisées dans le registre des plansWoongebied

Vente online

Faire offre à partir de

75 000 €

Informations de vente

Logo du partenaire Biddit

Date de début: 18/11/2025 12:00

Date de fin: 26/11/2025 12:00

Pas d'enchère: 1 000 €

Voir la fiche sur Biddit.be

Vendu par l'étude CELIS & LIESSE

Informations de visite

elke woensdag van 13u-15u en elke zaterdag van 10u-12u vanaf woensdag 5/11 tem zaterdag 22/11.

Visite virtuelle

Découvrez le bien en visite virtuelle !

Visiter maintenant