Image de présentation du bien n° 289878

A propos de ce bien

Référence: 289878


G score: A P score: A

Informations générales

  • Libre à partir duÀ l'acte
  • Construction1975
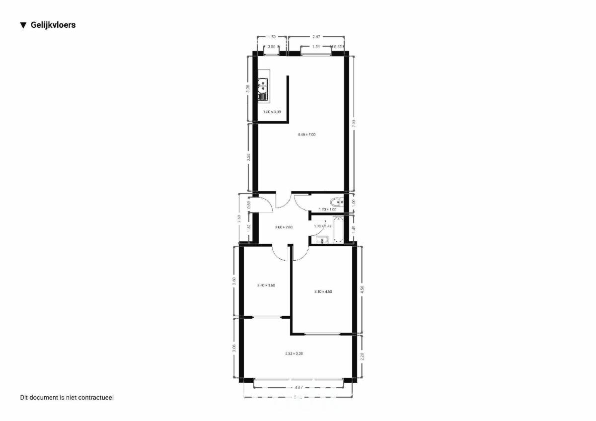
  • Type de bienAppartements
  • Superficie habitable84m2
  • Revenu cadastral909 €
  • Nombre de façades2

Composition du bien

  • 2 chambres
  • 1 salle de bain
  • 1 WC

Informations supplémentaires

  • Etat du bienA rénover
  • Type de chauffageGaz
  • Nombre d'emplacements à l'intérieur1

Informations sur le jardin et terrain

  • Jardin
  • Superficie cadastrale360m2

Informations énergétiques

  • Score énergétique (indice) du PEB349 kWh/m2
  • Label énergétique RFD
  • Code unique certificat PEB20250923-0003687835-RES-1

Informations urbanistiques

  • Permis d'urbanisation ou permis de lotir
  • Permis d'urbanisme
  • La destination urbanistique la plus récente de ce bien avec les dénominations utilisées dans le registre des plansWoongebied

Vente online

Faire offre à partir de

130 000 €

Informations de vente

Logo du partenaire Biddit

Date de début: 07/12/2025 10:00

Date de fin: 15/12/2025 10:00

Pas d'enchère: 1 000 €

Voir la fiche sur Biddit.be

Vendu par l'étude Notariaat DE DECKER en VAN OEVELEN

Informations de visite

op woensdag van 14u-16u en op zaterdag van 10u-12u vanaf 15/11 tem 3/12.

Visite virtuelle

Découvrez le bien en visite virtuelle !

Visiter maintenant