Image de présentation du bien n° 289779

A propos de ce bien

Référence: 289779


G score: A P score: A

Informations générales

  • Libre à partir duAutre
  • Construction1938
  • Type de bienMaisons
  • Etage(s)3
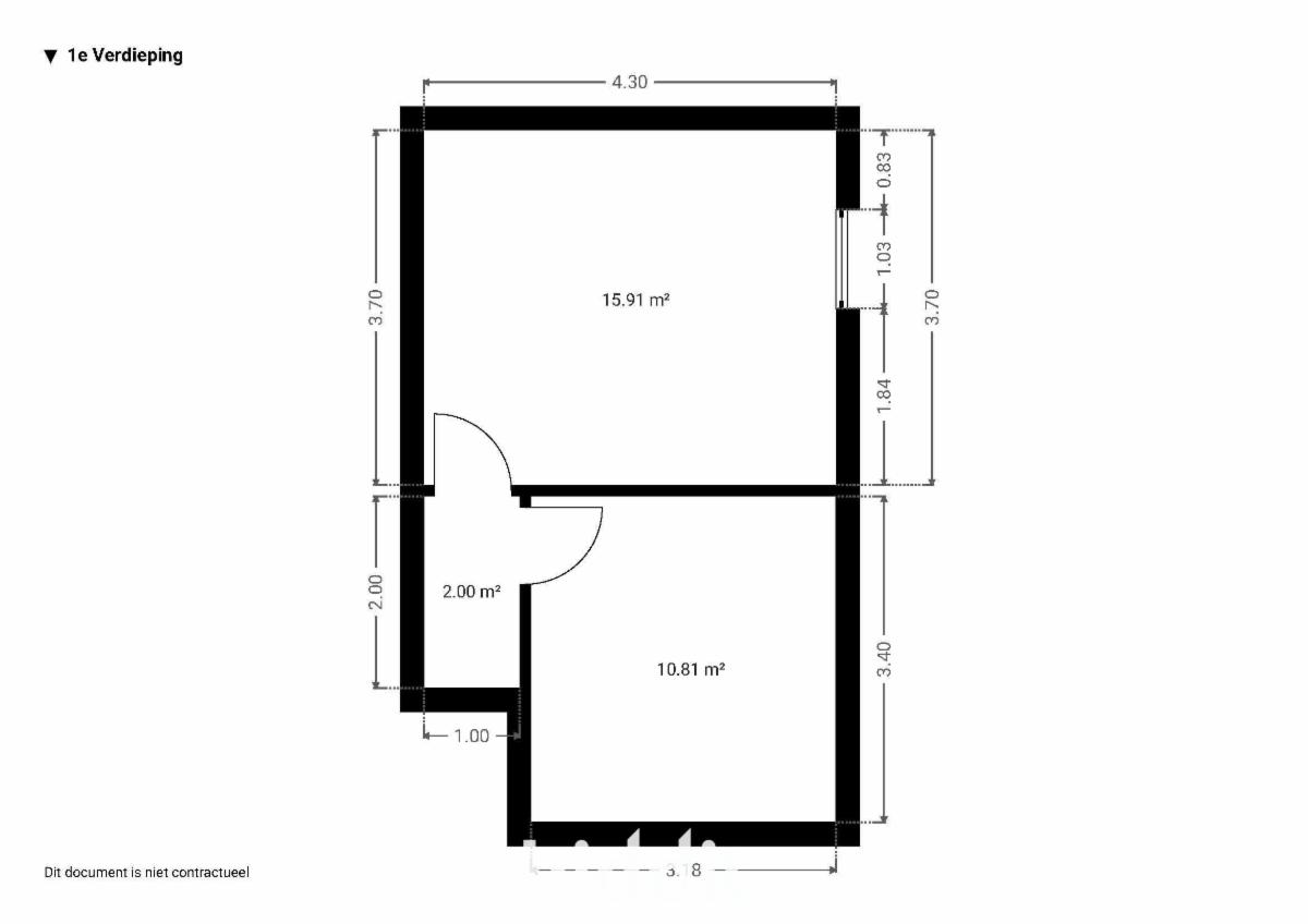
  • Superficie habitable168m2
  • Revenu cadastral312 €
  • Nombre de façades3

Composition du bien

  • 3 chambres
  • 1 salle de bain
  • 2 WC
  • Grenier
  • Séjour

Informations supplémentaires

  • Etat du bienA rafraichir
  • Type de chauffageGaz
  • Nombre d'emplacements à l'intérieur1

Informations sur le jardin et terrain

  • Superficie cadastrale990m2

Informations énergétiques

  • Score énergétique (indice) du PEB680 kWh/m2
  • Label énergétique RFF L’obligation légale de rénover peut s’appliquer pour ce bien.
  • Code unique certificat PEB20240826-0003351469-RES-1

Informations urbanistiques

  • Permis d'urbanisme
  • La destination urbanistique la plus récente de ce bien avec les dénominations utilisées dans le registre des plansWoongebied

Vente online

Faire offre à partir de

170 000 €

Informations de vente

Vente terminée
Logo du partenaire Biddit

Date de début: 10/12/2025 10:00

Date de fin: 18/12/2025 10:00

Pas d'enchère: 500 €

Voir la fiche sur Biddit.be

Vendu par l'étude AGORA NOTARISSEN

Informations de visite

op zaterdag 15/11, 22/11, 29/11, 6/12 en 13/12 van 13u-15u.

Visite virtuelle

Découvrez le bien en visite virtuelle !

Visiter maintenant