Image de présentation du bien n° 291973

A propos de ce bien

Référence: 291973


Espace bureaux multiples donnant sur la rue de la Fontaine avec cour intérieure et salle polyvalente.
Idéalement situé, proche du centre urbain, facile d’accès, bonne visibilité du côté rue de la Fontaine, énorme potentiel.
Accès piéton à l'arrière également par l'Avenue de l'Espoir.

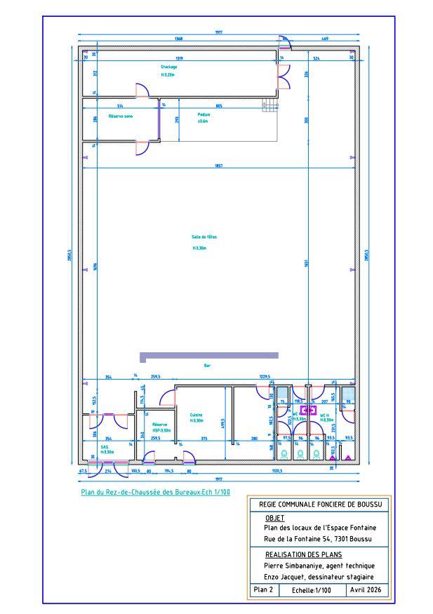
Composition :
1. Bâtiment à rue sur 2 étages (+ étage grenier) composé principalement de bureaux sur +- 180m2 au sol :
- Accès par porche couvert rue de la Fontaine ;
- 6 bureaux et 2 salles de réunions ;
- Petite pièce d’eau avec évier ;
- Sanitaires doubles et lave-mains aux deux niveaux ;
- Grenier aménageable (tout à faire) ;
- Caves spacieuses non carrelées ni aménagées.

2. Cour intérieure et jardin enclavés (+- 170m²) :
- Accès à rue par le porche couvert rue de la Fontaine ;
- Donnant accès à une cave supplémentaire sous le bâtiment à rue ;
- 2 caves à l’avant hautes et saines.

3. Salle polyvalente d’environ +- 450 m² au sol (accès par le porche couvert et par l'accès arrière piéton - non couvert) :
- Hall d’entrée + vestiaire ;
- Deux locaux indépendants ;
- Sanitaires doubles, lave-mains et douches ;
- Salle ;
- Local technique ;
- Local – débarras – rangement.

Technicités : type de châssis : Mixte (majoritairement double) ; système de chauffage : raccordement gaz existant, type de chauffage : mixte (central et à propulsion), électricité : À prévoir, toiture : d’époque, à revoir, avec partie en éternit - aucune isolation présente pour le bâtiment 1.

Informations générales

  • Immeuble de rapport
  • Libre à partir duÀ l'acte
  • Type de bienBureaux
  • Revenu cadastral1 784 €

Informations sur le jardin et terrain

  • Superficie cadastrale999m2

Informations sur les commodités et facilités

  • Bus à proximité
  • Gare/trains à proximité
  • Magasins à proximité
  • Écoles à proximité
  • Autoroute à proximité

Informations urbanistiques

  • Destination urbanistique la plus récenteZone d'habitat

Vente de gré à gré

Faire offre à partir de

450 000 €

Vendu par l'étude Dirosa, Jeanine

Vous avez une question sur ce bien ou souhaitez planifier une visite ? Contactez le notaire du vendeur.

Informations de visite

S'adresser en l'étude - 065/78.38.23.