Image de présentation du bien n° 284433

A propos de ce bien

Référence: 284433


Dans un immeuble à appartements « Résidence San Marino » sis Winston Churchilllaan 13
L’ appartement au 2e étage
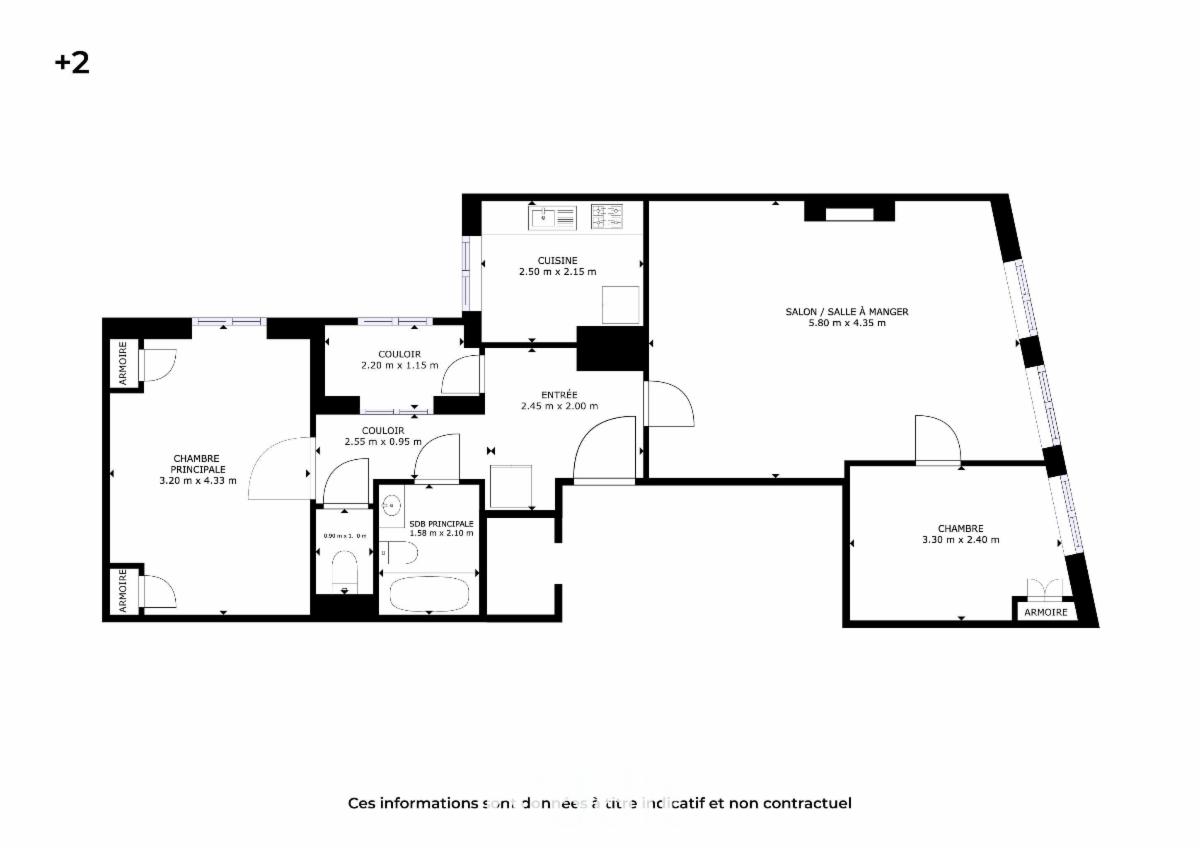
Comprenant hall d’entrée avec vestiaire, living avec salon, cuisine, 1 chambre, débarras, wc, terrasse, salle de bains, 2e débarras n° 3. R.c.n.i. 805€. Loué. Zone d’habitation. PEB D/362. Contr. électr. non conforme. Visites : jeudi 13/11 de 13-15h, jeudi 20/11 de 14-16h et mercredis 19-26/11, 3/12 de 14-16h .
Début enchères : jeudi 27.11.25 à 13h -
Fin enchères : vendredi 05.12.25 à 13h -
Mise à prix : 360.000€ -
Enchère min. : 1.000€ -
Sign. acte : vendredi 12.12.25 à 10h30 (en l’étude et en présence du Juge de Paix de Bruges) -
www.biddit.be - Réf. bien : 284433.

Informations générales

  • Libre à partir duAutre
  • Type de bienAppartements
  • Revenu cadastral805 €

Composition du bien

  • 1 chambre
  • 1 salle de bain
  • 1 WC
  • Cuisine équipée
  • Salle à manger
  • Séjour

Informations supplémentaires

  • Terrasse
  • Etage du bien2

Informations énergétiques

  • Score énergétique (indice) du PEB362 kWh/m2
  • Label énergétique RFD
  • Attestation de conformité de l'installation électriqueOui, non conforme
  • Code unique certificat PEB20250711-0003643356-RES-1

Informations financières

  • % actuel loué100%

Informations urbanistiques

  • La destination urbanistique la plus récente de ce bien avec les dénominations utilisées dans le registre des plansZone d'habitation/Woongebied

Vente online

Faire offre à partir de

360 000 €

Informations de vente

Vente terminée
Logo du partenaire Biddit

Date de début: 27/11/2025 13:00

Date de fin: 05/12/2025 13:00

Pas d'enchère: 1 000 €

Voir la fiche sur Biddit.be

Vendu par l'étude DE CLIPPELE - BRUYAUX - NAETS, Notaires Associés

Informations de visite

jeudi 13/11 de 13-15h, jeudi 20/11 de 14-16h et mercredis 19-26/11, 3/12 de 14-16h.

Visite virtuelle

Découvrez le bien en visite virtuelle !

Visiter maintenant