Image de présentation du bien n° 288540

A propos de ce bien

Référence: 288540


Dans un immeuble à appartements sis chaussée de Vleurgat 213
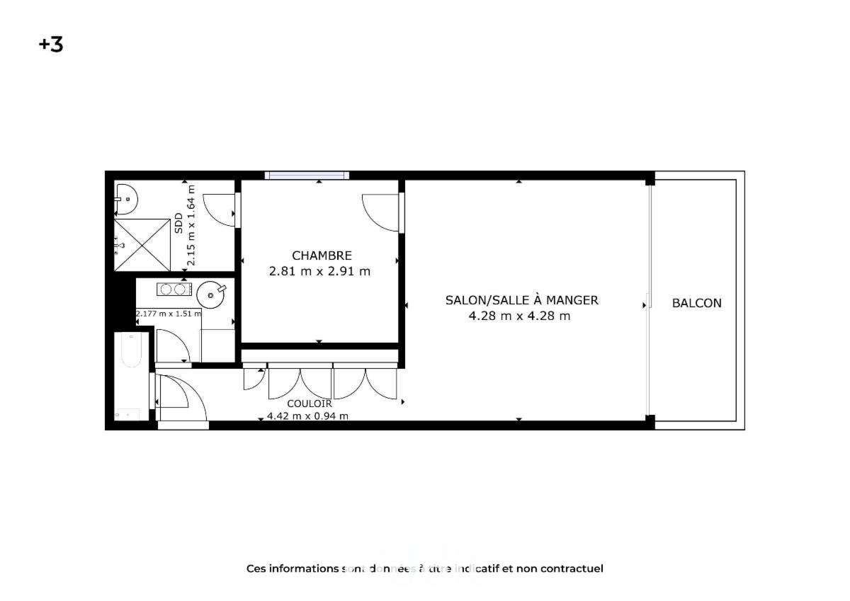
L’ appartement « E3 » au 3e étage
Comprenant hall, séjour avec balcon, cuisine, wc, chambre avec salle de bains communicante. R.c.n.i. 1.066€. Loué. Zone d’habitation, zone de parc, en espace structurant. PEB D-/206. Contr. électr. non conforme. Visites : mercredis 25/2, 4-11-18/3 de 15-17h et samedis 21-28/2, 7-14/3 de 16h30-18h30.
Début enchères : mercredi 11.03.26 à 12h -
Fin enchères : jeudi 19.03.26 à 12h -
Mise à prix : 120.000€ -
Enchère min. : 1.000€ -
Sign. acte : jeudi 26.03.26 à 17h -
www.biddit.be - Réf. bien : 288540.

Informations générales

  • Libre à partir duAutre
  • Type de bienAppartements
  • Revenu cadastral1 066 €

Composition du bien

  • 1 chambre
  • 1 salle de bain
  • 1 WC
  • Cuisine équipée
  • Séjour

Informations supplémentaires

  • Etage du bien3

Informations énergétiques

  • Label énergétique RBCD-
  • Attestation de conformité de l'installation électriqueOui, non conforme
  • Code unique certificat PEB20251031-0000732745-01-2
  • Consommation spécifique énergie primaire206 kWh/m2/an
  • Autres remarquesZone d’habitation, zone de parc, en espace structurant.

Informations financières

  • % actuel loué100%

Informations urbanistiques

  • Destination urbanistique licite la plus récente et la plus préciseZones d'habitation

Vente online

Faire offre à partir de

120 000 €

Informations de vente

Logo du partenaire Biddit

Date de début: 11/03/2026 12:00

Date de fin: 19/03/2026 12:00

Pas d'enchère: 1 000 €

Voir la fiche sur Biddit.be

Vendu par l'étude NEYRINCK & CARRETTE, notaires associés

Informations de visite

mercredis 25/2, 4-11-18/3 de 15-17h et samedis 21-28/2, 7-14/3 de 16h30-18h30.

Visite virtuelle

Découvrez le bien en visite virtuelle !

Visiter maintenant