Image de présentation du bien n° 286782

A propos de ce bien

Référence: 286782


Dans un immeuble à appartements « Résidence Cormoran et Albatros » sis rue Scailquin 47
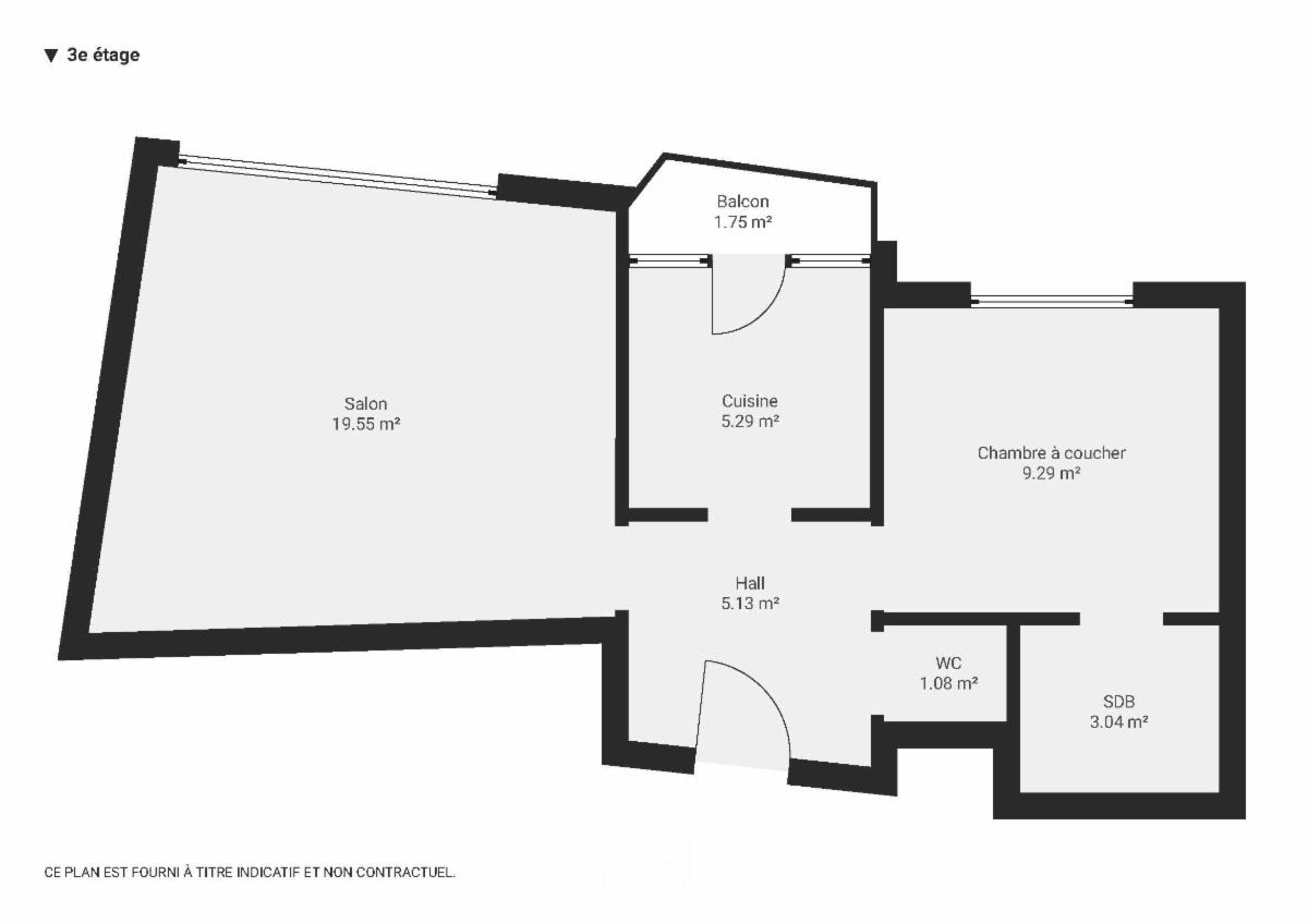
L’ appartement J.3 au 3 étage
Comprenant hall avec vestiaire, cuisine avec terrasse, living, wc, salle de bains, 1 chambre. R.c.n.i. 867€. Libre d' occupation lors du paiement du prix. Zone d’habitation, en espace structurant, zone administrative. PEB D/182. Contr. électr. non conforme. Visites : mercredis 3-10-17/12 de 10-12h et samedis 29/11, 6-13/12 de 14-16h.
Début enchères : jeudi 11.12.25 à 13h -
Fin enchères : vendredi 19.12.25 à 13h -
Mise à prix : 100.000€ -
Enchère min. : 1.000€ -
Sign. acte : mardi 23.12.25 à 12h30 -
www.biddit.be - Réf. bien : 286782

Informations générales

  • Libre à partir duAutre
  • Type de bienAppartements
  • Revenu cadastral867 €

Composition du bien

  • 1 chambre
  • 1 salle de bain
  • 1 WC
  • Cuisine équipée
  • Séjour

Informations supplémentaires

  • Terrasse
  • Etage du bien3

Informations énergétiques

  • Label énergétique RBCD
  • Attestation de conformité de l'installation électriqueOui, non conforme
  • Code unique certificat PEB20201005-0000576005-01-5
  • Consommation spécifique énergie primaire182 kWh/m2/an
  • Autres remarquesZone d’habitation, en espace structurant, zone administrative.

Informations urbanistiques

  • Destination urbanistique licite la plus récente et la plus préciseZones d'habitation

Documents et pièces jointes

Vente online

Faire offre à partir de

100 000 €

Informations de vente

Vente terminée
Logo du partenaire Biddit

Date de début: 11/12/2025 13:00

Date de fin: 19/12/2025 13:00

Pas d'enchère: 1 000 €

Voir la fiche sur Biddit.be

Vendu par l'étude DE CLIPPELE - BRUYAUX - NAETS, Notaires Associés

Informations de visite

mercredis 3-10-17/12 de 10-12h et samedis 29/11, 6-13/12 de 14-16h.

Visite virtuelle

Découvrez le bien en visite virtuelle !

Visiter maintenant