Image de présentation du bien n° 289824

A propos de ce bien

Référence: 289824


Dans un complexe à appartements « résidence CHEVERNY » sis avenue des Eperviers 86
L’ appartement n° 2 au 1e étage
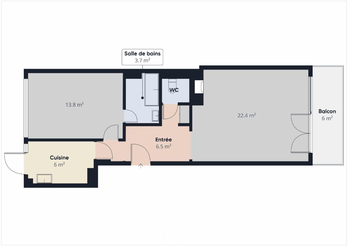
Comprenant hall d’entrée, vestiaire, cuisine avec terrasse, living avec terrasse, 1 chambre, salle de bains, wc, cave n° 2 au rez. R.c.n.i. 1.075€. Libre d’occupation. Zone d’habitation à prédominance résidentielle. PEB G/504. Contr. électr. non conforme. Visites : mercredis 26/11, 3-10/12 de 15-17h et samedis 22-29/11, 6/12 de 9-11h.
Début enchères : mercredi 03.12.25 à 11h -
Fin enchères : jeudi 11.12.25 à 11h -
Mise à prix : 110.000€ -
Enchère min. : 1.000€ -
Sign. acte : lundi 15.12.25 à 14h -
www.biddit.be - Réf. bien : 289824.

Informations générales

  • Libre à partir duÀ l'acte
  • Type de bienAppartements
  • Revenu cadastral1 075 €

Composition du bien

  • 1 chambre
  • 1 salle de bain
  • 1 WC
  • Cave
  • Cuisine équipée
  • Séjour

Informations supplémentaires

  • Terrasse
  • Etage du bien1

Informations énergétiques

  • Label énergétique RBCG
  • Attestation de conformité de l'installation électriqueOui, non conforme
  • Code unique certificat PEB20250724-0000722564-02-8
  • Consommation spécifique énergie primaire504 kWh/m2/an

Informations urbanistiques

  • Destination urbanistique licite la plus récente et la plus préciseZones d'habitat a prédominance résidentielle

Documents et pièces jointes

Vente online

Faire offre à partir de

110 000 €

Informations de vente

Vente terminée
Logo du partenaire Biddit

Date de début: 03/12/2025 11:00

Date de fin: 11/12/2025 11:00

Pas d'enchère: 1 000 €

Voir la fiche sur Biddit.be

Vendu par l'étude ALTER EGO, Notaires associés

Informations de visite

mercredis 26/11, 3-10/12 de 15-17h et samedis 22-29/11, 6/12 de 9-11h.

Visite virtuelle

Découvrez le bien en visite virtuelle !

Visiter maintenant