Image de présentation du bien n° 287136

A propos de ce bien

Référence: 287136


Maison en chantier
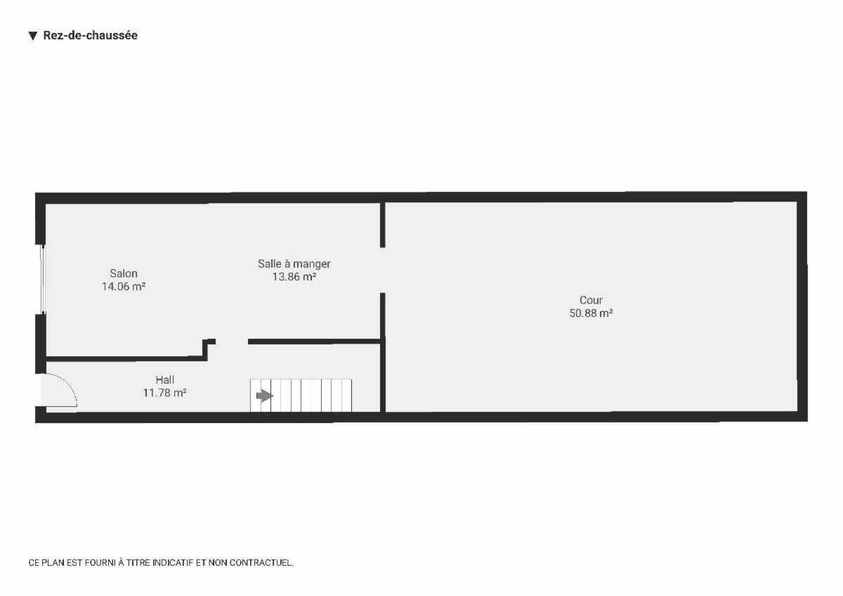
Sise rue de la Poste 258 comprenant salon, salle à manger, 4 chambres (surface habitable 94m²) et cour (50,88 m²). R.c.ni. 1.084€. Occupation : libre, frappé d’une interdiction de location. Urb. zone d’habitation, ZICHEE, 1 logement mais permis du 31/05/2022 pour passer de 1 à 2 logements, rehausser d’un niveau, ajouter une annexe sur 3 étages et une terrasse au 3ème étage probablement périmé de fait. PEB et contr. électr. pas d’application (en travaux). Visites aux risques et périls des visiteurs : àpd 20/10 : lundis de 12h30-14h30 et jeudis de 10-12h.
Début enchères : mardi 18.11.25 à 14h -
Fin enchères : mercredi 26.11.25 à 14h -
Mise à prix : 175.000€ -
Enchère min. : 5.000€ -
Sign. acte : jeudi 04.12.25 à 11h30 -
www.biddit.be - Réf. bien : 287136.

Informations générales

  • Libre à partir duÀ l'acte
  • Type de bienMaisons
  • Revenu cadastral1 084 €

Composition du bien

  • 4 chambres
  • Salle à manger
  • Séjour

Informations supplémentaires

  • Cour

Informations énergétiques

  • Autres remarquesUrb. zone d’habitation, ZICHEE, 1 logement mais permis du 31/05/2022 pour passer de 1 à 2 logements, rehausser d’un niveau, ajouter une annexe sur 3 étages et une terrasse au 3ème étage probablement périmé de fait. PEB et contr. électr. pas d’application (en travaux).

Informations urbanistiques

  • Destination urbanistique licite la plus récente et la plus préciseZones d'habitation

Vente online

Faire offre à partir de

175 000 €

Informations de vente

Logo du partenaire Biddit

Date de début: 18/11/2025 14:00

Date de fin: 26/11/2025 14:00

Pas d'enchère: 5 000 €

Voir la fiche sur Biddit.be

Vendu par l'étude FRANçOIS HERINCKX ET KEN PENNE, NOTAIRES ASSOCIES

Informations de visite

aux risques et périls des visiteurs : àpd 20/10 : lundis de 12h30-14h30 et jeudis de 10-12h.

Visite virtuelle

Découvrez le bien en visite virtuelle !

Visiter maintenant