Image de présentation du bien n° 288079

A propos de ce bien

Référence: 288079


Maison unifamiliale 3-façades avec jardin
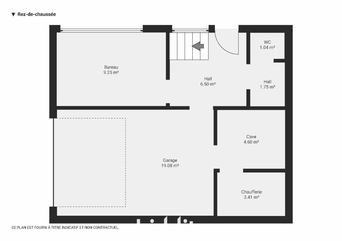
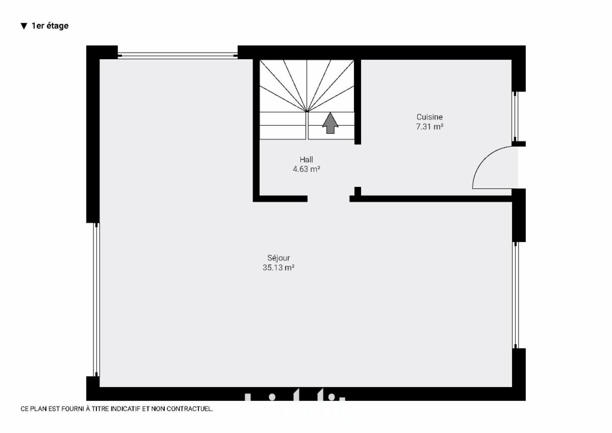
Charmante maison 3-façades idéalement située dans un quartier verdoyant d’Auderghem, à deux pas de la Forêt de Soignes, offrant un cadre de vie paisible et lumineux, avenue Paul Vanden Thoren 45 pour une superficie de 2a 83ca. Comprenant au niveau de la porte d’entrée : toilette d’invité, vestiaire, pièce polyvalente, cave classique, cave chaudière, garage - au niveau rez jardin (1e étage côté rue) : cuisine, salle à manger donnant sur la terrasse et le joli jardin sans vis-à-vis orienté sud-est, salon en L avec cheminée - au niveau du 1e étage (2e côté rue) : 3 pièces (chambres ou bureau), salle de douche, wc séparé - Grenier aménageable accessible via escalier escamotable. Eventuel potentiel d’aménagement à vérifier avec l’urbanisme. 18 panneaux photovoltaïques sur le toit. Proximité transports, écoles et commerces. R.c.n.i. 1.866€. Libre d’occupation. Zone d’habitation à prédominance résidentielle. Le bien fait l’objet d’observations par la Commune, reprise dans les rens. urb. Le bien est vendu en l’état et l’adjudicataire en fera son affaire personnelle. PEB E/242. Contr. électr. non conforme. Visites : mercredis 12-19-26/11, 3/12 de 10-12h et samedis 8-15-22-29/11, 6/12 de 9-11h.
Début enchères : mercredi 03.12.25 à 14h -
Fin enchères : jeudi 11.12.25 à 14h -
Mise à prix : 470.000€ -
Enchère min. : 1.000€ -
Sign. acte : jeudi 18.12.25 à 12h -
www.biddit.be - Réf. bien : 288079.

Informations générales

  • Libre à partir duÀ l'acte
  • Type de bienMaisons
  • Revenu cadastral1 866 €
  • Nombre de façades3

Composition du bien

  • 3 chambres
  • 1 salle de douche
  • 2 WC
  • Grenier
  • Cave
  • Cuisine équipée
  • Salle à manger

Informations supplémentaires

  • Terrasse
  • Nombre d'emplacements à l'intérieur1

Informations sur le jardin et terrain

  • Jardin
  • Superficie cadastrale283m2
  • Orientation du jardinSE

Informations sur les commodités et facilités

  • Bus à proximité
  • Tram à proximité
  • Gare/trains à proximité
  • Métro à proximité
  • Magasins à proximité
  • Écoles à proximité

Informations énergétiques

  • Panneaux solaires
  • Label énergétique RBCE
  • Attestation de conformité de l'installation électriqueOui, non conforme
  • Code unique certificat PEB20250805-0000723518-01-2
  • Consommation spécifique énergie primaire242 kWh/m2/an
  • Autres remarquesLe bien fait l’objet d’observations par la Commune, reprise dans les rens. urb. Le bien est vendu en l’état et l’adjudicataire en fera son affaire personnelle.

Informations urbanistiques

  • Destination urbanistique licite la plus récente et la plus préciseZones d'habitat a prédominance résidentielle

Vente online

Faire offre à partir de

470 000 €

Informations de vente

Vente terminée
Logo du partenaire Biddit

Date de début: 03/12/2025 14:00

Date de fin: 11/12/2025 14:00

Pas d'enchère: 1 000 €

Voir la fiche sur Biddit.be

Vendu par l'étude NEYRINCK & CARRETTE, notaires associés

Informations de visite

mercredis 12-19-26/11, 3/12 de 10-12h et samedis 8-15-22-29/11, 6/12 de 9-11h.

Visite virtuelle

Découvrez le bien en visite virtuelle !

Visiter maintenant