Image de présentation du bien n° 293414

A propos de ce bien

Référence: 293414


Maison unifamiliale avec jardin située à Angleur, à proximité immédiate des commerces, des écoles et de toutes les commodités. Le bien est actuellement loué mais sera libre l'acte.

La maison se compose comme suit:
Au rez-de-chaussée:
Un hall d'entrée donnant sur l'escalier, un garage (16,10m2), une salle de bain avec douche et WC (2,60m2), une chambre de (14,16m2), une seconde chambre de (13,91 m2), une buanderie, accès au jardin.
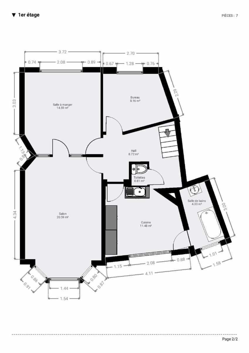
Au premier étage:
Une cuisine (11,48m2), une salle de bain avec baignoire et évier (4,33m2), un WC indépendant, un bureau (8,16m2), une salle à manger (14,59m2) qui communique avec le salon (20,59m2).

*PEB E
*Chaudière à gaz à condensation (2021)
*Châssis double vitrage PVC

Pour toute demande de visite, veuillez contacter l'étude au 04/223.25.27 ou par mail à l'adresse suivante: coralie.barrero.223755@belnot.be.

Informations générales

  • Libre à partir duAutre
  • Construction1938
  • Type de bienMaisons
  • Etage(s)1
  • Revenu cadastral803 €
  • Nombre de façades2

Composition du bien

  • 2 chambres
  • 2 salles de bain
  • 2 salles de douche
  • 2 WC
  • Cuisine équipée
  • Bureau
  • Salle à manger
  • Séjour
  • Surface chambre 114m2
  • Surface chambre 214m2
  • Surface cuisine11m2
  • Surface salle à manger15m2
  • Surface séjour21m2
  • Surface bureau8m2

Informations supplémentaires

  • Terrasse
  • Type de chauffageGaz
  • Nombre d'emplacements à l'intérieur1

Informations sur le jardin et terrain

  • Jardin
  • Superficie cadastrale130m2

Informations sur les commodités et facilités

  • Bus à proximité
  • Gare/trains à proximité
  • Magasins à proximité
  • Écoles à proximité

Informations énergétiques

  • Double vitrage
  • Citerne à mazout, gaz ou autre
  • Label énergétiqueLabel energétique du bien
  • Attestation de conformité de l'installation électriqueOui, non conforme
  • Code unique certificat PEB20260212013200
  • Consommation spécifique énergie primaire342 kWh/m2/an
  • Consommation théorique énergie primaire53 653 kWh/an

Informations urbanistiques

  • Destination urbanistique la plus récenteZone d'habitat

Données relatives à la protection du patrimoine

  • Inscription à la liste de sauvegarde ou de classement du patrimoine immobilierNon

Vente de gré à gré

Faire offre à partir de

195 000 €

Vendu par l'étude Anne Françoise HONHON et Christine DÔME, notaires associés

Vous avez une question sur ce bien ou souhaitez planifier une visite ? Contactez le notaire du vendeur.

Informations de visite

Pour toute demande de visite, veuillez contacter l'étude au 04/223.25.27 ou par mail à l'adresse suivante: coralie.barrero.223755@belnot.be.

Visite virtuelle

Découvrez le bien en visite virtuelle !

Visiter maintenant