Image de présentation du bien n° 288544

A propos de ce bien

Référence: 288544


G score: B P score: B

Informations générales

  • Libre à partir duAutre
  • Construction1965
  • Type de bienAppartements
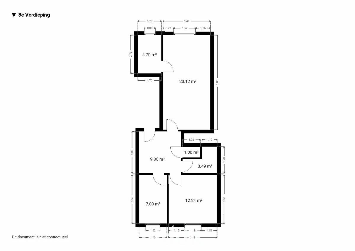
  • Etage(s)3
  • Revenu cadastral589 €

Composition du bien

  • 2 chambres
  • 1 salle de bain
  • 1 WC
  • Cave
  • Séjour

Informations supplémentaires

  • Terrasse
  • Etat du bienA rafraichir
  • Etage du bien3

Informations sur le jardin et terrain

  • Superficie cadastrale311m2

Informations énergétiques

  • Score énergétique (indice) du PEB170 kWh/m2
  • Label énergétique RFB
  • Code unique certificat PEB20250717-0003648938-RES-1

Informations urbanistiques

  • Permis d'urbanisme
  • La destination urbanistique la plus récente de ce bien avec les dénominations utilisées dans le registre des plansWoongebied

Vente online

Faire offre à partir de

105 000 €

Informations de vente

Logo du partenaire Biddit

Date de début: 12/11/2025 14:00

Date de fin: 20/11/2025 14:00

Pas d'enchère: 1 000 €

Voir la fiche sur Biddit.be

Vendu par l'étude DECKERS NOTARISSEN

Informations de visite

zonder afspr. elke maandag en zaterdag van 10u-12u vanaf 20/10 tem 17/11.

Visite virtuelle

Découvrez le bien en visite virtuelle !

Visiter maintenant