Image de présentation du bien n° 288664

A propos de ce bien

Référence: 288664


Bungalow indépendant à rafraîchir, situé dans une rue calme près du centre de Wildert (Essen).
Étant donné que la propriété est située dans une zone réservée aux résidences secondaires (PRUP Clusters weekendverblijven), l'habitation permanente n'est pas autorisée. Un changement de fonction peut être obtenu sous certaines conditions (informations à demander à la commune). G score: A P score: A

Informations générales

  • Libre à partir duÀ l'acte
  • Construction1982
  • Type de bienMaisons
  • Etage(s)1
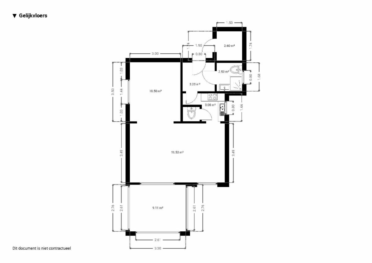
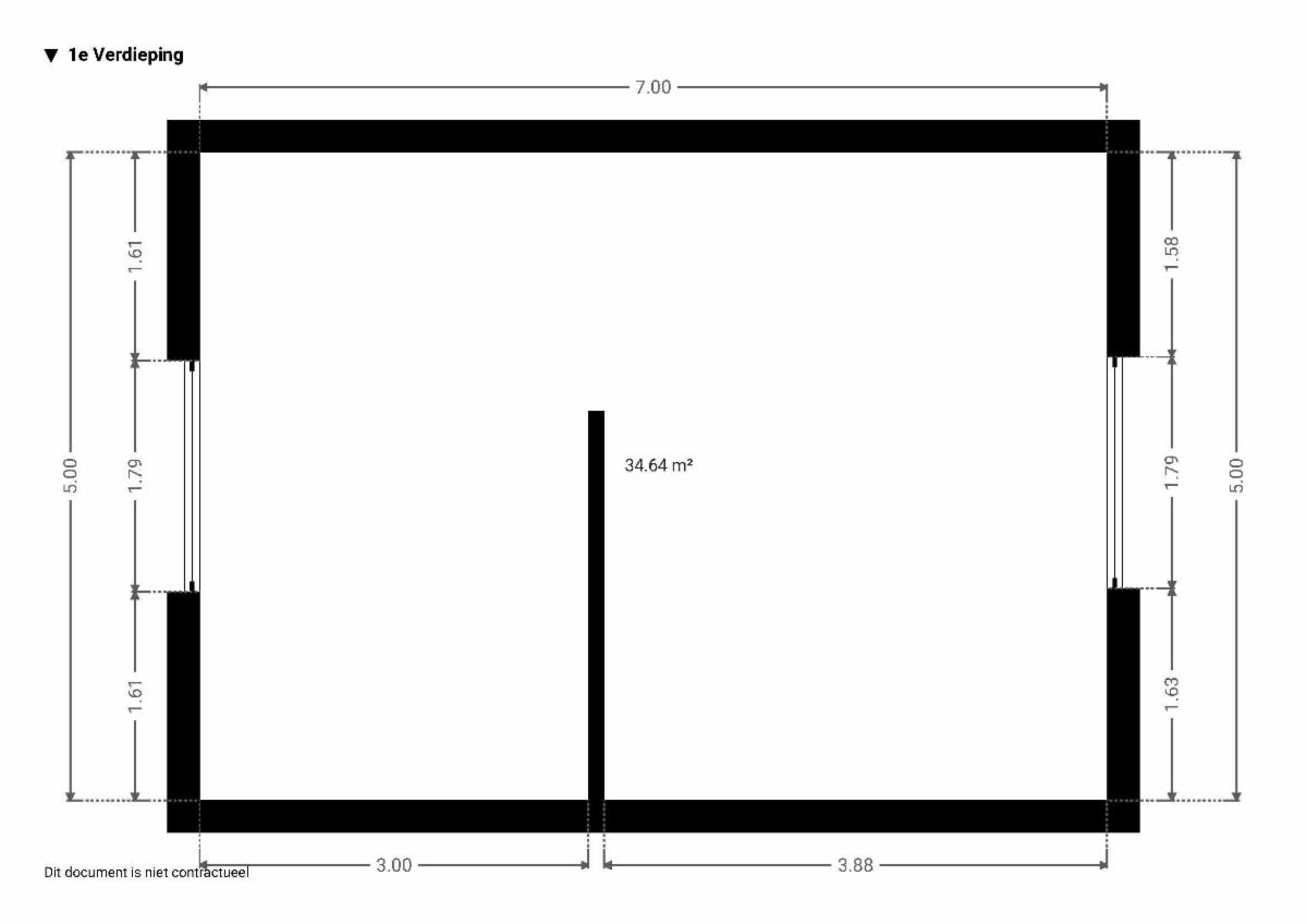
  • Superficie habitable94m2
  • Revenu cadastral855 €
  • Nombre de façades4

Composition du bien

  • 2 chambres
  • 1 salle de bain
  • 2 WC

Informations supplémentaires

  • Etat du bienA rafraichir
  • Nombre d'emplacements à l'intérieur1

Informations sur le jardin et terrain

  • Superficie cadastrale864m2

Informations énergétiques

  • Score énergétique (indice) du PEB335 kWh/m2
  • Label énergétique RFD
  • Code unique certificat PEB20250722-0003651668-RES-1

Informations urbanistiques

  • Permis d'urbanisme
  • La destination urbanistique la plus récente de ce bien avec les dénominations utilisées dans le registre des plansGebied voor verblijfsrecreatie

Vente de gré à gré

Prix souhaité

280 000 €

Vendu par l'étude Dejongh, De Boungne & De Smedt, geassocieerde notarissen

Vous avez une question sur ce bien ou souhaitez planifier une visite ? Contactez le notaire du vendeur.

Kantoor Not. Dejongh, De Boungne & De Smedt
Created with Sketch. Created with Sketch.

Visite virtuelle

Découvrez le bien en visite virtuelle !

Visiter maintenant