Image de présentation du bien n° 290246

A propos de ce bien

Référence: 290246


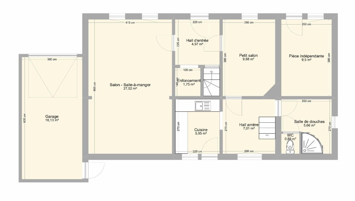
Très jolie maison 4 façades offrant une superficie habitable de +/- 180m²; Au sous-sol, petite cave; Au rez, séjour, hall d'entrée, cuisine équipée, petit salon, salle-de-douche, WC séparé et bureau; A l'étage, hall de nuit, 4 chambres, 1 bureau et une salle-de-bains. Le jardin est d'une superficie de +/- 09 ares 73 centiares. Faire offre à partir de 220.000€ (PEB n°20251019002284, 102091 kWh/an et 568 kWh/m².an; lettre G)

Informations générales

  • Libre à partir duImmédiatement
  • Type de bienMaisons
  • Etage(s)1
  • Superficie habitable180m2
  • Revenu cadastral416 €
  • Nombre de façades4

Composition du bien

  • 4 chambres
  • 2 salles de bain
  • 2 WC

Informations supplémentaires

  • Type de chauffageMazout

Informations sur le jardin et terrain

  • Superficie cadastrale973m2

Informations énergétiques

  • Chauffage central
  • Label énergétiqueLabel energétique du bien
  • Code unique certificat PEB20251019002284
  • Consommation spécifique énergie primaire568 kWh/m2/an
  • Consommation théorique énergie primaire102 091 kWh/an

Informations urbanistiques

  • Destination urbanistique la plus récenteZone d’habitat à caractère rural

Données relatives à la protection du patrimoine

  • Inscription à la liste de sauvegarde ou de classement du patrimoine immobilierNon

Vente de gré à gré

Faire offre à partir de

220 000 €

Vendu par l'étude DECLAIRFAYT Antoine & Anne, notaires associés

Vous avez une question sur ce bien ou souhaitez planifier une visite ? Contactez le notaire du vendeur.

Visite virtuelle

Découvrez le bien en visite virtuelle !

Visiter maintenant