Image de présentation du bien n° 293594

A propos de ce bien

Référence: 293594


G score: A P score: A

Informations générales

  • Libre à partir duImmédiatement
  • Construction1955
  • Type de bienMaisons
  • Etage(s)2
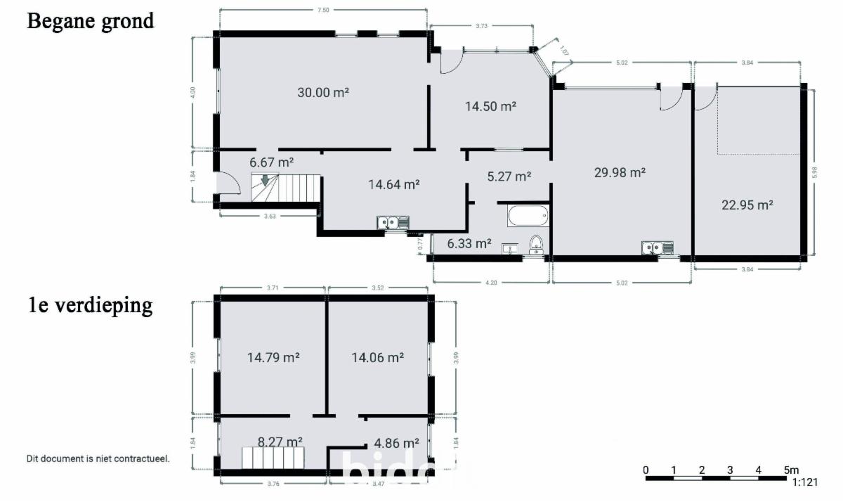
  • Superficie habitable165m2
  • Revenu cadastral526 €
  • Nombre de façades4

Composition du bien

  • 3 chambres
  • 1 salle de bain
  • 1 WC
  • Cave
  • Véranda
  • Séjour

Informations supplémentaires

  • EnvironnementRural
  • Etat du bienA rénover
  • Type de chauffageMazout
  • Nombre d'emplacements à l'intérieur1

Informations sur le jardin et terrain

  • Jardin
  • Superficie cadastrale1756m2

Informations énergétiques

  • Chauffage central
  • Score énergétique (indice) du PEB608 kWh/m2
  • Label énergétique RFF L’obligation légale de rénover peut s’appliquer pour ce bien.
  • Code unique certificat PEB20250524-00003609536-RES-1

Informations urbanistiques

  • La destination urbanistique la plus récente de ce bien avec les dénominations utilisées dans le registre des plansDeels woongebied en deels agrarisch gebied

Documents et pièces jointes

Vente online

Faire offre à partir de

224 000 €

Informations de vente

Vente terminée
Logo du partenaire Biddit

Date de début: 14/04/2026 14:00

Date de fin: 22/04/2026 14:00

Pas d'enchère: 1 000 €

Voir la fiche sur Biddit.be

Vendu par l'étude Michiels, Stroeykens & Pelgrims

Informations de visite

Elke zaterdag van 14u-16u, en dit vanaf zaterdag 14 maart 2026 tot en met zaterdag 11 april 2026

Visite virtuelle

Découvrez le bien en visite virtuelle !

Visiter maintenant