Image de présentation du bien n° 290958

A propos de ce bien

Référence: 290958


Une maison avec jardin
Sise Hoogstraat 88 ayant une superficie de 9a 56ca 6 dma. Comprenant 3 chambres. R.c.n.i. 823€. Libre d’occupation. Zone d’habitation, non classé. Droit de préemption : en vertu du Code Flamand du Logement. Certificat d’inventaire amiante code unique UC : UC : 20251013-000397-000 dd 13/10/2025 : conclusion : Non sans amiante - 2 Matériaux contenant de l’amiante à retirer soigneusement - 1 Matériel contenant de l’amiante à manipuler avec précaution. Parcelle P-score : A - bâtiment G-Score : A. PEB F/598. Visites (àpd 6/1/2026) : mardi de 10-12h et samedi de 9-11h.
Séance info : jeudi 15.01.26 à 9h30 -
Début enchères : mardi 27.01.26 à 11h -
Fin enchères : mercredi 04.02.26 à 11h -
Mise à prix : 290.000€ -
Enchère min.: 1.000€ -
Sign. acte : mercredi 11.02.26 à 15h en l’ étude de notaire -
www.biddit.be - Réf. bien : 290958.

Informations générales

  • Libre à partir duÀ l'acte
  • Type de bienMaisons
  • Revenu cadastral823 €

Composition du bien

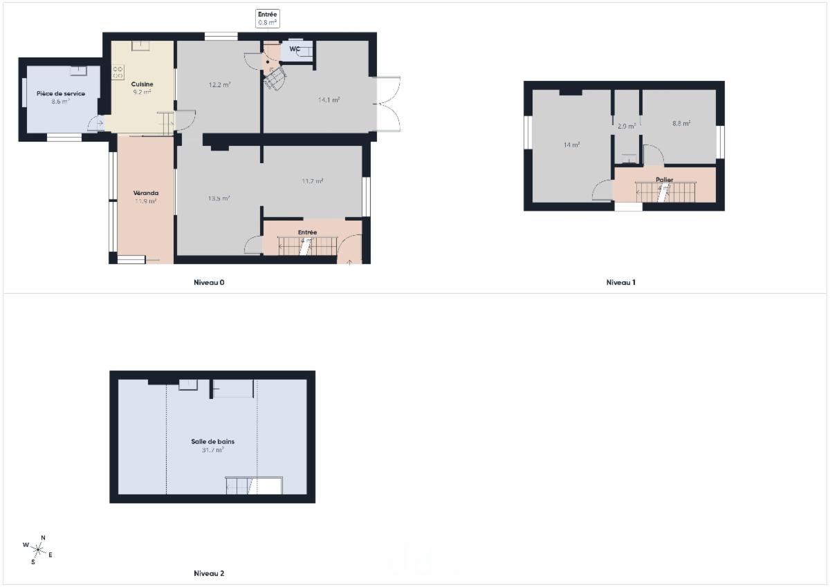
  • 3 chambres

Informations sur le jardin et terrain

  • Jardin
  • Superficie cadastrale95606m2

Informations énergétiques

  • Score énergétique (indice) du PEB598 kWh/m2
  • Label énergétique RFF L’obligation légale de rénover peut s’appliquer pour ce bien.
  • Attestation de conformité de l'installation électriqueOui, non conforme
  • Code unique certificat PEB20251205-0003703484-RES-1

Informations financières

  • Droit de préemption RUP

Informations urbanistiques

  • La destination urbanistique la plus récente de ce bien avec les dénominations utilisées dans le registre des plansZone d'habitation/Woongebied

Vente online

Faire offre à partir de

290 000 €

Informations de vente

Logo du partenaire Biddit

Date de début: 27/01/2026 11:00

Date de fin: 04/02/2026 11:00

Pas d'enchère: 1 000 €

Voir la fiche sur Biddit.be

Vendu par l'étude Véronique BONEHILL et Laurent WETS, Notaires Associés

Informations de visite

(àpd 6/1/2026) : mardi de 10-12h et samedi de 9-11h.

Visite virtuelle

Découvrez le bien en visite virtuelle !

Visiter maintenant

Session d'information

jeudi 15 janvier 2026 à 9h30 en l' étude du notair