Image de présentation du bien n° 286584

A propos de ce bien

Référence: 286584


Une maison d’habitation à rénover
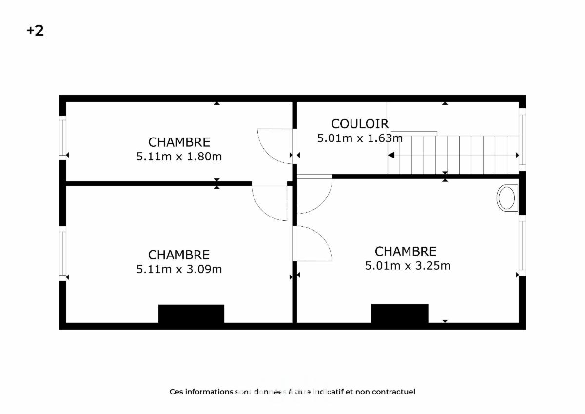
Sise chaussée de Wavre 507 comprenant au sous-sol : cave, chaufferie avec salle de bains, 2 pièces de stockage - au Rdc. : hall d’entrée, cuisine, séjour, wc, cour - au 1e ét. : 2 chambres, wc - au 2e ét. : 3 chambres. Libre d’occupation. R.c.n.i. 1.211€. Zone d’habitation à prédominance résidentielle. PEB G/454. Contr. électr. non conforme. Visites àpd 22/10 au 15/11 incl. : mercredis de 18-20h et samedis de 10-12h.
Début enchères : mercredi 12.11.25 à 14h -
Fin enchères : jeudi 20.11.25 à 14h -
Mise à prix : 295.000€ -
Enchère min. : 2.000€ -
Sign. acte : mercredi 26.11.25 à 11h -
www.biddit.be - Réf. bien : 286584.

Informations générales

  • Libre à partir duÀ l'acte
  • Type de bienMaisons
  • Revenu cadastral1 211 €

Composition du bien

  • 5 chambres
  • 1 salle de bain
  • 2 WC
  • Cave
  • Cuisine équipée
  • Séjour

Informations supplémentaires

  • Etat du bienA rénover

Informations énergétiques

  • Label énergétique RBCG
  • Attestation de conformité de l'installation électriqueOui, non conforme
  • Code unique certificat PEB20250915-0000727410-01-5
  • Consommation spécifique énergie primaire454 kWh/m2/an

Informations urbanistiques

  • Destination urbanistique licite la plus récente et la plus préciseZones d'habitat a prédominance résidentielle

Vente online

Faire offre à partir de

295 000 €

Informations de vente

Logo du partenaire Biddit

Date de début: 12/11/2025 14:00

Date de fin: 20/11/2025 14:00

Pas d'enchère: 2 000 €

Voir la fiche sur Biddit.be

Vendu par l'étude Marc WILMUS et Ludovic du BUS de WARNAFFE, notaires associés

Informations de visite

àpd 22/10 au 15/11 incl. : mercredis de 18-20h et samedis de 10-12h.

Visite virtuelle

Découvrez le bien en visite virtuelle !

Visiter maintenant