Image de présentation du bien n° 287339

A propos de ce bien

Référence: 287339


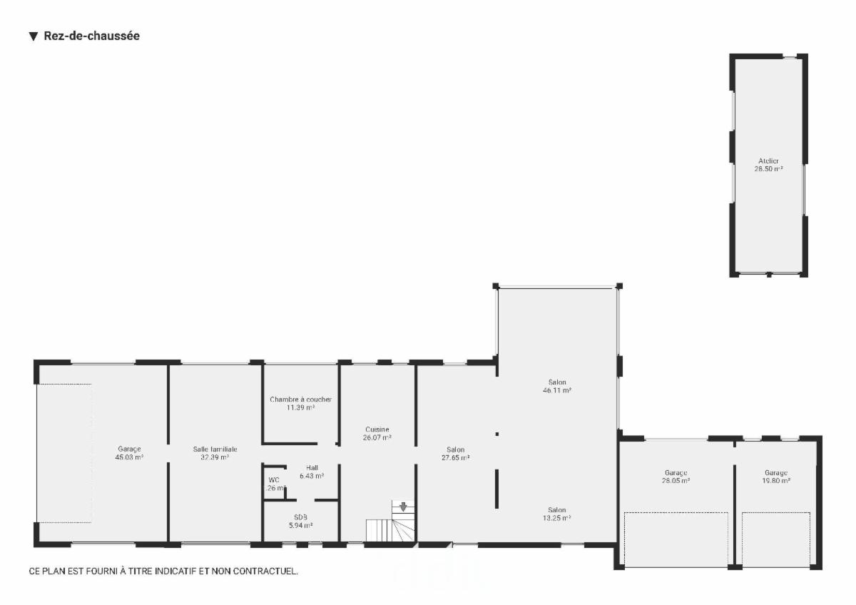
Une maison d’habitation avec atelier, 3 garages
Située Kaalheide 25 sur un terrain de 20a. Comprenant au rez : atelier, 3 garages, hall, wc, salon, living, cuisine, salle de bains, chambre, cour - au 1e ét. : 2 chambres, salle de bains, dressing, living. R.c.n.i. 3.150€. Libre d’occupation. Zone naturelle. PEB F/968. Contr. électr. non conforme. Visites : mercredis 15-22-29/10 de 10-12h et samedis 11-18-25/10 de 14-16h.
Début enchères : mercredi 22.10.25 à 13h -
Fin enchères : jeudi 30.10.25 à 13h -
Mise à prix : 295.000€ -
Enchère min. : 1.000€ -
Sign. acte : jeudi 06.11.25 à 11h -
www.biddit.be - Réf. bien : 287339.

Informations générales

  • Libre à partir duÀ l'acte
  • Type de bienMaisons
  • Revenu cadastral3 150 €

Composition du bien

  • 3 chambres
  • 2 salles de bain
  • 1 WC
  • Dressing
  • Cuisine équipée
  • Salle à manger
  • Séjour

Informations supplémentaires

  • Cour
  • Nombre d'emplacements à l'intérieur3

Informations sur le jardin et terrain

  • Superficie cadastrale2000m2

Informations énergétiques

  • Score énergétique (indice) du PEB968 kWh/m2
  • Label énergétique RFF L’obligation légale de rénover peut s’appliquer pour ce bien.
  • Attestation de conformité de l'installation électriqueOui, non conforme
  • Code unique certificat PEB20230527-0002903093-RES-1

Informations urbanistiques

  • La destination urbanistique la plus récente de ce bien avec les dénominations utilisées dans le registre des plansNatuurgebied

Vente online

Faire offre à partir de

295 000 €

Informations de vente

Logo du partenaire Biddit

Date de début: 22/10/2025 13:00

Date de fin: 30/10/2025 13:00

Pas d'enchère: 1 000 €

Voir la fiche sur Biddit.be

Vendu par l'étude David Indekeu, Notaire

Informations de visite

mercredis 15-22-29/10 de 10-12h et samedis 11-18-25/10 de 14-16h.

Visite virtuelle

Découvrez le bien en visite virtuelle !

Visiter maintenant