Image de présentation du bien n° 289204

A propos de ce bien

Référence: 289204


G score: A P score: B

Informations générales

  • Libre à partir duÀ l'acte
  • Type de bienMaisons
  • Etage(s)2
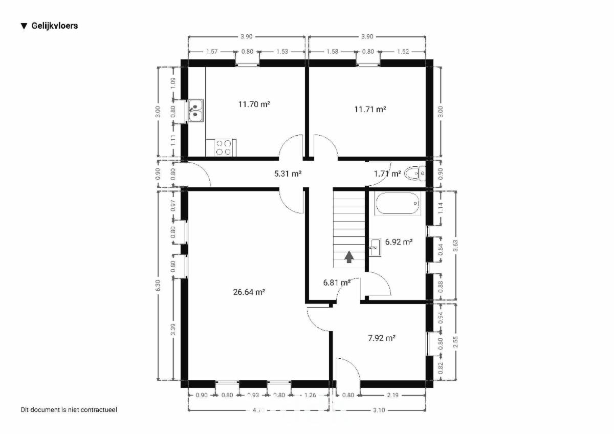
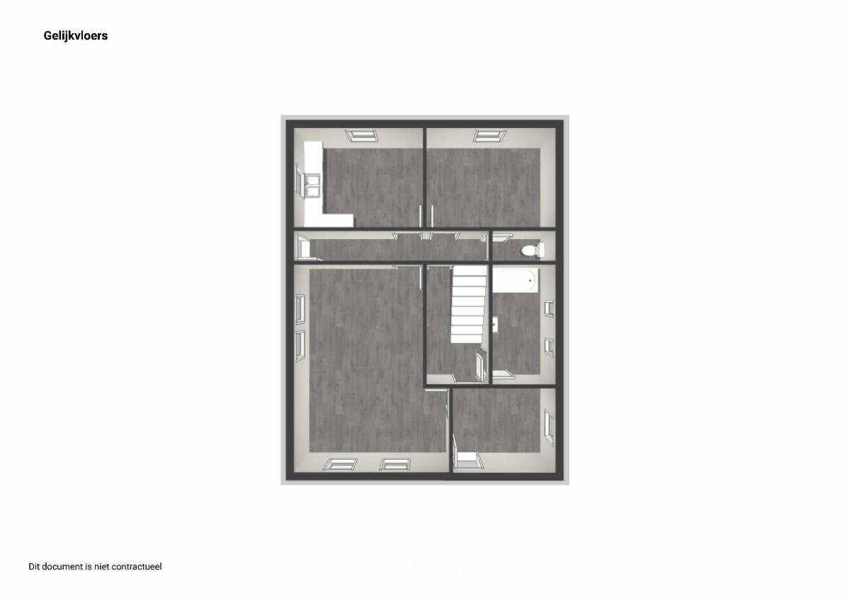
  • Superficie habitable161m2
  • Revenu cadastral986 €
  • Nombre de façades4

Composition du bien

  • 2 chambres
  • 1 salle de bain
  • 1 WC
  • Grenier
  • Séjour

Informations supplémentaires

  • Etat du bienA rafraichir
  • Type de chauffageElectricité
  • Nombre d'emplacements à l'intérieur1

Informations sur le jardin et terrain

  • Superficie cadastrale5929m2

Informations énergétiques

  • Score énergétique (indice) du PEB435 kWh/m2
  • Label énergétique RFE L’obligation légale de rénover peut s’appliquer pour ce bien.
  • Code unique certificat PEB20250905-0003679731-RES-1

Informations urbanistiques

  • Permis d'urbanisme
  • La destination urbanistique la plus récente de ce bien avec les dénominations utilisées dans le registre des plansZone voor één- en meergezinswoningen in vrijstaande en halfopen bebouwing

Vente online

Faire offre à partir de

302 000 €

Informations de vente

Logo du partenaire Biddit

Date de début: 10/11/2025 15:00

Date de fin: 18/11/2025 15:00

Pas d'enchère: 1 000 €

Voir la fiche sur Biddit.be

Vendu par l'étude AGORA NOTARISSEN

Informations de visite

op zaterdag 25/10, 01/11, 08/11 en 15/11 van 10u-12u.

Visite virtuelle

Découvrez le bien en visite virtuelle !

Visiter maintenant