Presentatiebeeld van het pand n° 288108

In verband met dit goed

Referentie: 288108


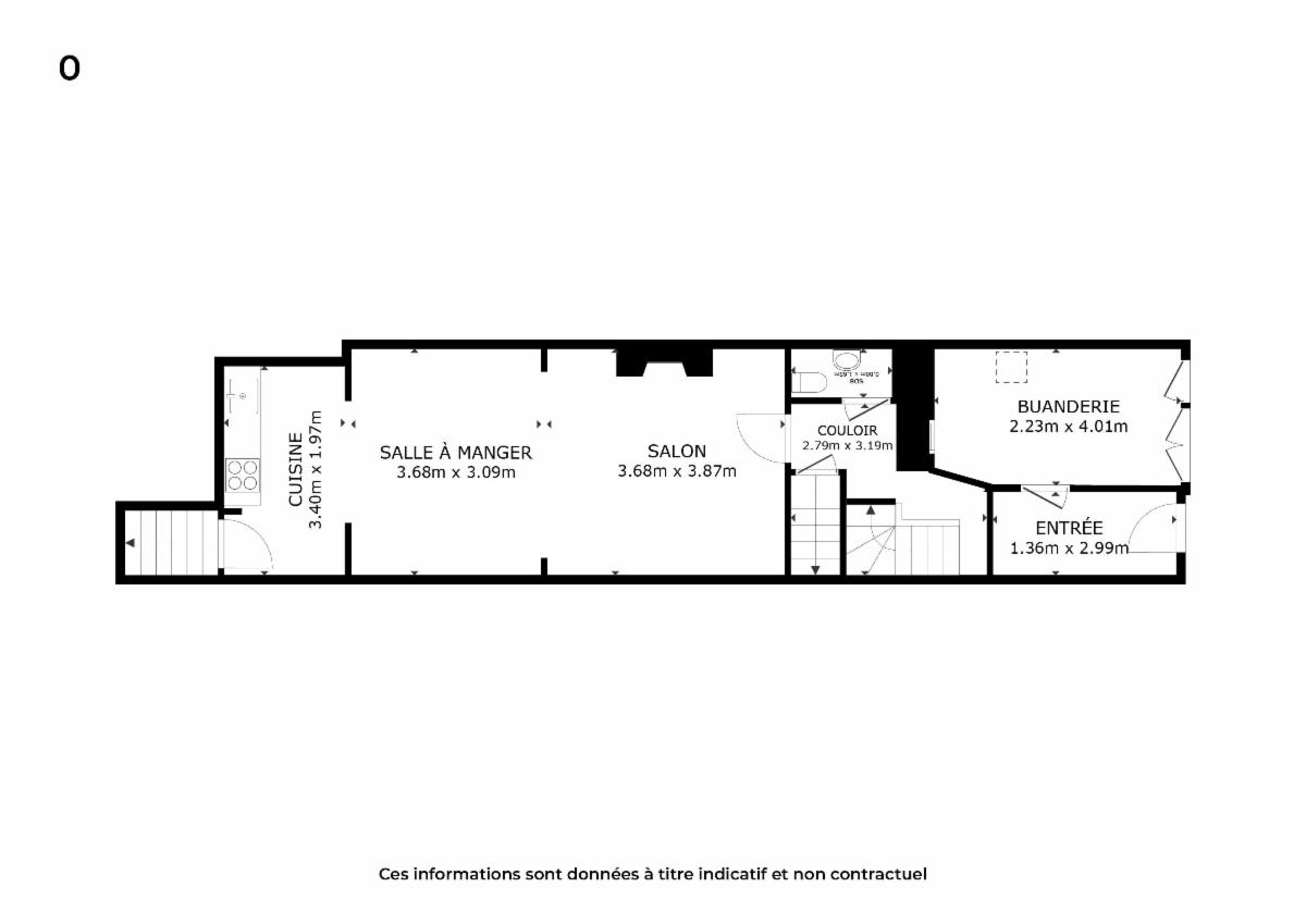
Agréable maison mitoyenne à rénover dans le centre de Jupille-sur-Meuse (Liège). Le rez-de-chaussée propose un hall d'entrée avec vestiaire, un séjour avec cuisine donnant accès sur un espace extérieur et le jardin en hauteur, un ancien garage avec buanderie, un wc. Le premier étage, accessible par un escalier en bois, offre 2 chambres spacieuses avec cheminée et une salle de bain. Au deuxième étage, il y a une troisième chambre mansardée et un grenier. Au sous-sol se trouvent 2 caves. La maison est dotée d'une place de parking à l'avant, d'une chaudière gaz à condensation récente (2021), de simple vitrage à l'avant et de double vitrage à l'arrière. Beau potentiel après rénovation, la maison est idéalement située à proximité de toutes commodités. Toit à rénover également. Revenu cadastral de 436 euros. Pour toute information, n’hésitez pas à contacter l’étude. VISITES sur rendez-vous au 04/362.85.77 ou info@notairemottard.be.

Algemene informatie

  • Vrij vanafOnmiddellijk
  • Gebouw1954
  • PandtypeHuizen
  • verdieping(en)2
  • Oppervlakte van het woongedeelte138m2
  • Kadastraal inkomen436 €
  • Aantal gevels2

Samenstelling

  • 3 slaapkamers
  • 1 badkamer
  • 2 WC
  • Zolder
  • Kelder
  • Ingerichte keuken
  • Eetkamer
  • Washok
  • Woonkamer
  • Zolder toegankelijk via vaste trap
  • Oppervlakte slaapkamer 113m2
  • Oppervlakte slaapkamer 214m2
  • Oppervlakte slaapkamer 314m2
  • Oppervlakte keuken7m2
  • Oppervlakte eetzaal11m2
  • Oppervlakte woonkamer14m2
  • Oppervlakte kelder25m2

Bijkomende informatie

  • Terras
  • OmgevingResidentieel
  • StaatTe renoveren
  • Type verwarmingGas
  • Gevelbreedte straatkant4m
  • Aantal parkeerplaatsen buiten1

Gebouw en tuin gegevens

  • Tuin
  • Oppervlakte kadaster146m2
  • Diepte van het stuk grond27m
  • Breedte van de grond aan de straatkant4m
  • Oppervlakte tuin91m2

Faciliteit gegevens

  • Nabijgelegen bus
  • Nabijgelegen winkels
  • Scholen
  • Autoweg

Energiegegevens

  • Aansluiting aan de riolering
  • Centrale verwarming
  • Energie labelEnergielabel van het pand
  • Conformiteitsattest van de elektrische installatieJa, niet gelijkvorming
  • Unieke code van het EPC-certificaat20250927008311
  • Primair specifiek energieverbruik330 kWh/m2/an
  • Primair theoretisch energieverbruik45.581 kWh/an

Stedelijke informatie

  • Meest recente stedenbouwkundige bestemmingWoongebied

Naam van de voorkooprechthebbende overheid (bij prioriteit)

  • Ingeschreven op de bewaar- of beschermingslijst erfgoedNeen

Uit de hand te koop

Gewenste prijs

150.000 €

Verkocht door de notaris Christophe MOTTARD - Société notariale

Heeft u een vraag over dit pand of wenst u een bezoek in te plannen? Neem contact op met de notaris van de verkoper.

Bezoekgegevens

VISITES sur rendez-vous au 04/362.85.77 ou info@notairemottard.be

Virtueel bezoek

Ontdek het vastgoed tijdens een virtueel bezoek

Nu bezoeken