Presentatiebeeld van het pand n° 289607

In verband met dit goed

Referentie: 289607


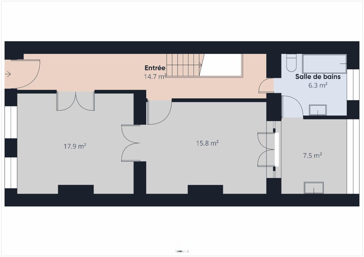
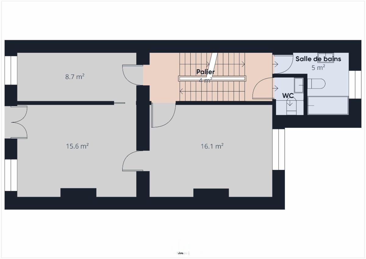
Een volledig te renoveren woonhuis
Koninklijke Sinte-Mariastraat 169, opp. 1a 20ca, omvattende : 8 slaapkamers. N.g.k.i. 1.481€. IN gebruik door de eigenaar. Woongebied, GCHEWS, struct. ruimte. EPC : G/840. Contr. elektr. niet conform. Bezoekdagen (vanaf 18/11 tot en met 6/12): dinsdag van 12u30-14u30 en zaterdag van 11u30-13u30.
Begin biedingen : zondag 30.11.25 om 13u -
Einde biedingen : maandag 08.12.25 om 13u -
Instelprijs : 200.000€ -
Bodverhoging : 1.000€ -
Ondertekening akte : dinsdag 09.12.25 om 14u -
www.biddit.be - Ref. pand : 289607.

Algemene informatie

  • Vrij vanafAndere
  • PandtypeHuizen
  • Kadastraal inkomen1.481 €

Samenstelling

  • 8 slaapkamers

Bijkomende informatie

  • StaatTe renoveren

Energiegegevens

  • RBC-Energie labelG
  • Conformiteitsattest van de elektrische installatieJa, niet gelijkvorming
  • Unieke code van het EPC-certificaat20251014-0000730673-01-4
  • Primair specifiek energieverbruik840 kWh/m2/an
  • Andere opmerkingenWoongebied, GCHEWS, struct. ruimte.

Stedelijke informatie

  • Meest recente en meest nauwkeurige wettelijke stedenbouwkundige bestemmingTypische woongebieden

Online verkoop

Doe een bod van

200.000 €

Verkoop informatie

Afgesloten verkoop
Logo van partner Biddit

Startdatum: 30/11/2025 13:00

Einddatum: 08/12/2025 13:00

Geen bod: 1.000 €

De fiche bekijken op Biddit.be

Verkocht door de notaris Benjamin WETS & Simon WETS, notaires associés

Bezoekgegevens

(vanaf 18/11 tot en met 6/12): dinsdag van 12u30-14u30 en zaterdag van 11u30-13u30.

Virtueel bezoek

Ontdek het vastgoed tijdens een virtueel bezoek

Nu bezoeken