Presentatiebeeld van het pand n° 293414

In verband met dit goed

Referentie: 293414


Maison unifamiliale avec jardin située à Angleur, à proximité immédiate des commerces, des écoles et de toutes les commodités. Le bien est actuellement loué mais sera libre l'acte.

La maison se compose comme suit:
Au rez-de-chaussée:
Un hall d'entrée donnant sur l'escalier, un garage (16,10m2), une salle de bain avec douche et WC (2,60m2), une chambre de (14,16m2), une seconde chambre de (13,91 m2), une buanderie, accès au jardin.
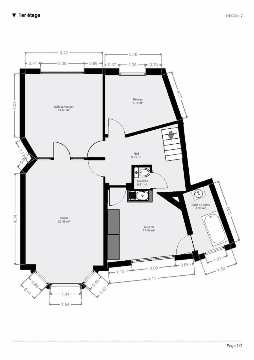
Au premier étage:
Une cuisine (11,48m2), une salle de bain avec baignoire et évier (4,33m2), un WC indépendant, un bureau (8,16m2), une salle à manger (14,59m2) qui communique avec le salon (20,59m2).

*PEB E
*Chaudière à gaz à condensation (2021)
*Châssis double vitrage PVC

Pour toute demande de visite, veuillez contacter l'étude au 04/223.25.27 ou par mail à l'adresse suivante: coralie.barrero.223755@belnot.be.

Algemene informatie

  • Vrij vanafAndere
  • Gebouw1938
  • PandtypeHuizen
  • verdieping(en)1
  • Kadastraal inkomen803 €
  • Aantal gevels2

Samenstelling

  • 2 slaapkamers
  • 2 badkamers
  • 2 douchekamers
  • 2 WC
  • Ingerichte keuken
  • Kantoor
  • Eetkamer
  • Woonkamer
  • Oppervlakte slaapkamer 114m2
  • Oppervlakte slaapkamer 214m2
  • Oppervlakte keuken11m2
  • Oppervlakte eetzaal15m2
  • Oppervlakte woonkamer21m2
  • Oppervlakte bureel8m2

Bijkomende informatie

  • Terras
  • Type verwarmingGas
  • Aantal parkeerplaatsen binnen1

Gebouw en tuin gegevens

  • Tuin
  • Oppervlakte kadaster130m2

Faciliteit gegevens

  • Nabijgelegen bus
  • Nabijgelegen trein/station
  • Nabijgelegen winkels
  • Scholen

Energiegegevens

  • Dubbele beglazing
  • Stookolie-, gas- of andere tank
  • Energie labelEnergielabel van het pand
  • Conformiteitsattest van de elektrische installatieJa, niet gelijkvorming
  • Unieke code van het EPC-certificaat20260212013200
  • Primair specifiek energieverbruik342 kWh/m2/an
  • Primair theoretisch energieverbruik53.653 kWh/an

Stedelijke informatie

  • Meest recente stedenbouwkundige bestemmingWoongebied

Naam van de voorkooprechthebbende overheid (bij prioriteit)

  • Ingeschreven op de bewaar- of beschermingslijst erfgoedNeen

Uit de hand te koop

Bieden vanaf

195.000 €

Verkocht door de notaris Anne Françoise HONHON et Christine DÔME, notaires associés

Heeft u een vraag over dit pand of wenst u een bezoek in te plannen? Neem contact op met de notaris van de verkoper.

Bezoekgegevens

Pour toute demande de visite, veuillez contacter l'étude au 04/223.25.27 ou par mail à l'adresse suivante: coralie.barrero.223755@belnot.be.

Virtueel bezoek

Ontdek het vastgoed tijdens een virtueel bezoek

Nu bezoeken