Presentatiebeeld van het pand n° 289168

In verband met dit goed

Referentie: 289168


Maison 3 façades avec jardin à rafraîchir

Située dans un quartier calme de Vielsalm, cette maison 3 façades offre un beau potentiel après rafraîchissement.

Composition :
• Rez-de-chaussée : hall d’entrée, WC séparé, séjour en deux pièces pouvant accueillir un salon et une salle à manger, petite pièce attenante à aménager en cuisine.
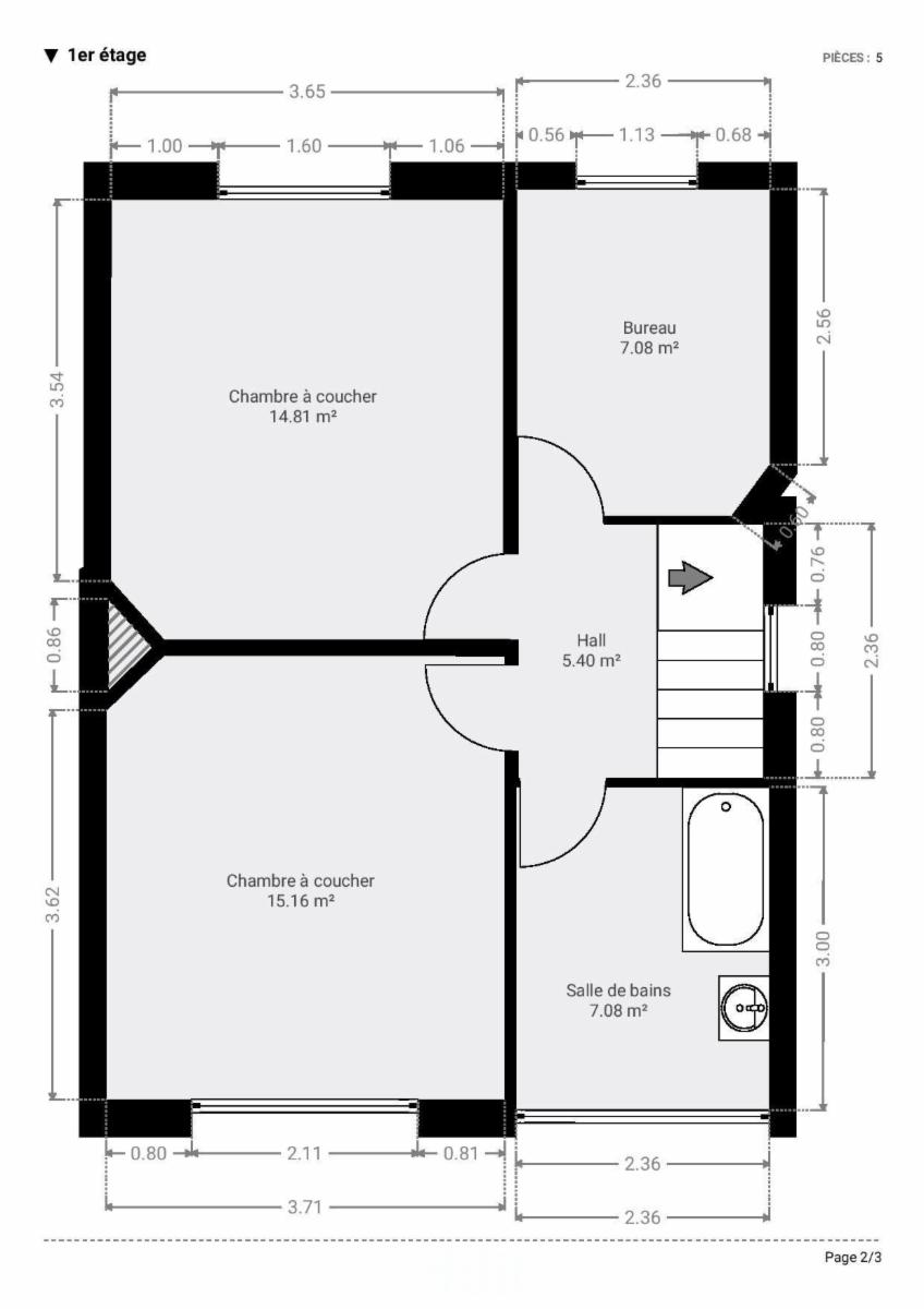
• Étage : hall de nuit lumineux, deux chambres confortables, un bureau et une salle de bains.
• Sous-sol : cave et chaufferie équipée d’une chaudière au mazout.
• Extérieur : jardin situé à l’arrière du bien.

Atouts :
• Espaces de vie lumineux et modulables
• Bureau idéal pour télétravail ou chambre supplémentaire
• Jardin agréable à l’arrière
• Cave et espaces techniques fonctionnels

À prévoir : travaux de rafraîchissement et modernisation afin d’exploiter tout le potentiel de la maison.

Localisation & facilités :
À proximité immédiate des commerces, écoles, restaurants et services de Vielsalm. Gare SNCB accessible, nombreux sentiers de promenade, plan d’eau des Doyards, infrastructures sportives et loisirs (dont Center Parcs Les Ardennes). Situation idéale pour profiter à la fois du cadre verdoyant de l’Ardenne et de toutes les commodités de la ville.

Algemene informatie

  • Vrij vanafBij de akte
  • PandtypeHuizen
  • verdieping(en)3
  • Oppervlakte van het woongedeelte118m2
  • Kadastraal inkomen500 €
  • Aantal gevels3

Samenstelling

  • 2 slaapkamers
  • 1 badkamer
  • Kantoor
  • Eetkamer
  • Woonkamer
  • Oppervlakte slaapkamer 115m2
  • Oppervlakte slaapkamer 215m2
  • Oppervlakte eetzaal15m2
  • Oppervlakte woonkamer15m2
  • Oppervlakte bureel7m2
  • Aantal wooneenheden1

Bijkomende informatie

  • Teledistributie
  • StaatTe renoveren
  • Gevelbreedte straatkant8m

Gebouw en tuin gegevens

  • Tuin
  • Oppervlakte kadaster400m2
  • Oppervlakte tuin261m2

Faciliteit gegevens

  • Nabijgelegen trein/station
  • Scholen
  • Afstand tot school384m
  • Afstand tot treinstation1432m

Energiegegevens

  • Stookolie-, gas- of andere tank
  • Energie labelEnergielabel van het pand
  • Milieuverklaring of milieuvergunningNeen, want niet nodig
  • Conformiteitsattest van de elektrische installatieJa, niet gelijkvorming
  • Unieke code van het EPC-certificaat20251001025547
  • Primair specifiek energieverbruik550 kWh/m2/an
  • Primair theoretisch energieverbruik65.078 kWh/an
  • Conformiteitsattest van de stookolietankNeen, want niet nodig

Stedelijke informatie

  • Meest recente stedenbouwkundige bestemmingWoongebied

Naam van de voorkooprechthebbende overheid (bij prioriteit)

  • Ingeschreven op de bewaar- of beschermingslijst erfgoedNeen

Online verkoop

Doe een bod van

85.000 €

Verkoop informatie

Logo van partner Biddit

Startdatum: 01/12/2025 14:00

Einddatum: 09/12/2025 14:00

Geen bod: 1.000 €

De fiche bekijken op Biddit.be

Verkocht door de notaris Pierre COTTIN & Caroline MONSEUR - Société Notariale

Bezoekgegevens

Les visites sont prévues, sur rendez-vous, le vendredi 07 novembre 2025 de 14h00 à 17h00, le mardi 18 novembre 2025 de 14h00 à 17h00 et le vendredi 28 novembre 2025 de 14h00 à 17h00.