Presentatiebeeld van het pand n° 293623

In verband met dit goed

Referentie: 293623


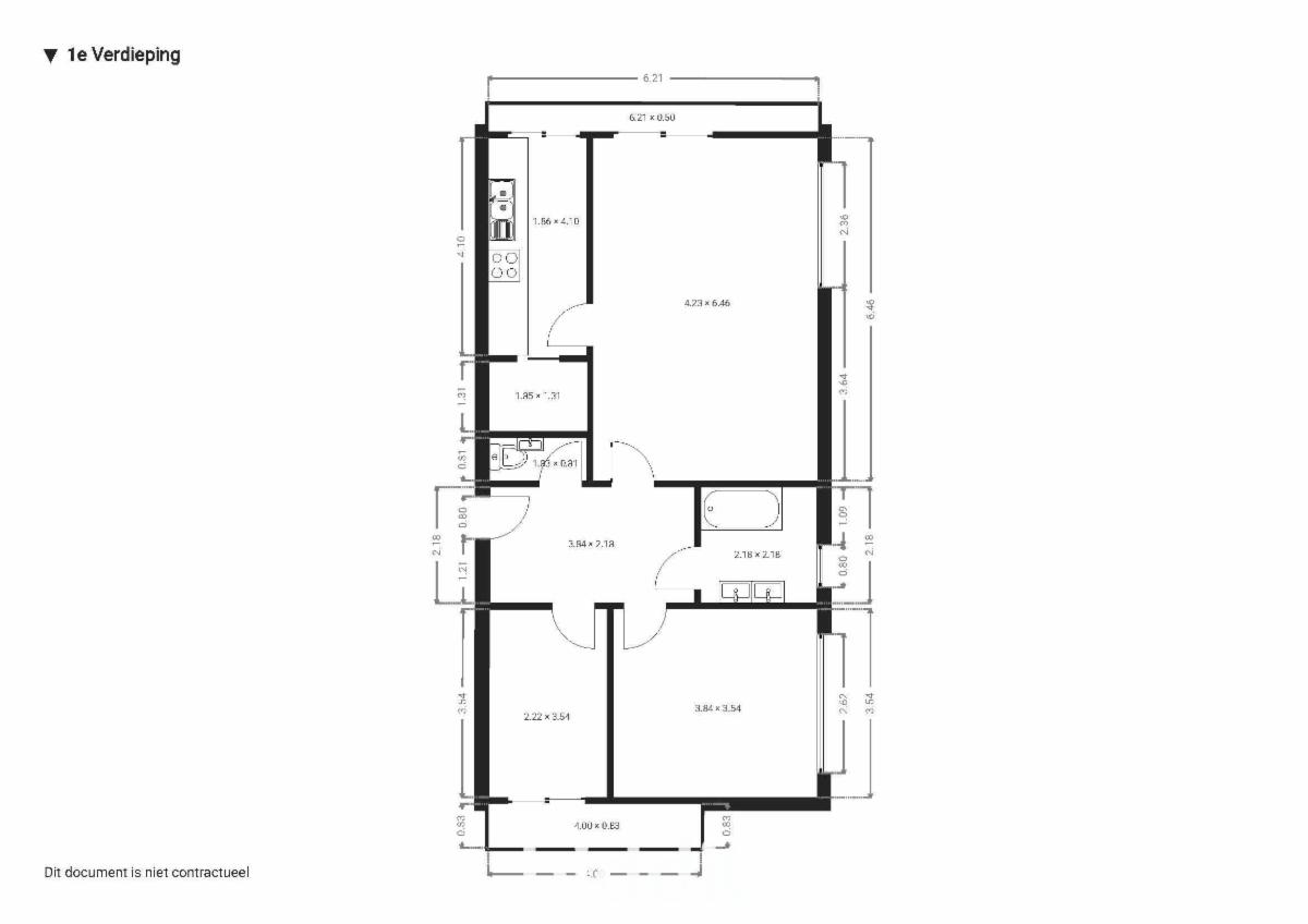
Op te frissen appartement met een oppervlakte van 88 m², op de 1e verdieping, met kelder en garage, niet ver van het centrum van Kapellen.
Het appartement bevat: inkomhal met wc, berging, living, keuken, badkamer, 2 slaapkamers, terras voor- en achteraan.
EPC B.
EK niet-conform.
Asbestveilig.
Waterscore B. G score: B P score: B

Algemene informatie

  • Vrij vanafBij de akte
  • Gebouw1977
  • PandtypeAppartementen
  • verdieping(en)1
  • Oppervlakte van het woongedeelte88m2
  • Kadastraal inkomen899 €
  • Aantal gevels3

Samenstelling

  • 2 slaapkamers
  • 1 badkamer
  • 1 WC
  • Kelder
  • Woonkamer

Bijkomende informatie

  • Terras
  • OmgevingResidentieel
  • StaatOp te frissen
  • Verdieping van het goed1
  • Aantal parkeerplaatsen binnen1

Gebouw en tuin gegevens

  • Oppervlakte kadaster88m2

Energiegegevens

  • Energiescore (kengetal) van het EPC158 kWh/m2
  • RF-Energie labelB
  • Unieke code van het EPC-certificaat20240604-00032655998-RES-2

Stedelijke informatie

  • Stedenbouwkundige vergunning
  • De meest recente stedelijke bestemming van het pand met de benamingen gebruikt in het register met plannenWoongebied

Online verkoop

Doe een bod van

140.000 €

Verkoop informatie

Logo van partner Biddit

Startdatum: 14/04/2026 13:00

Einddatum: 22/04/2026 13:00

Geen bod: 500 €

De fiche bekijken op Biddit.be

Verkocht door de notaris Laurent Liessens, Notaris

Bezoekgegevens

zonder afspraak elke woensdag (17u30-19u) en zaterdag (10u-11u30); vanaf woensdag 1 april 2026 tot en met zaterdag 18 april 2026