Presentatiebeeld van het pand n° 293181

In verband met dit goed

Referentie: 293181


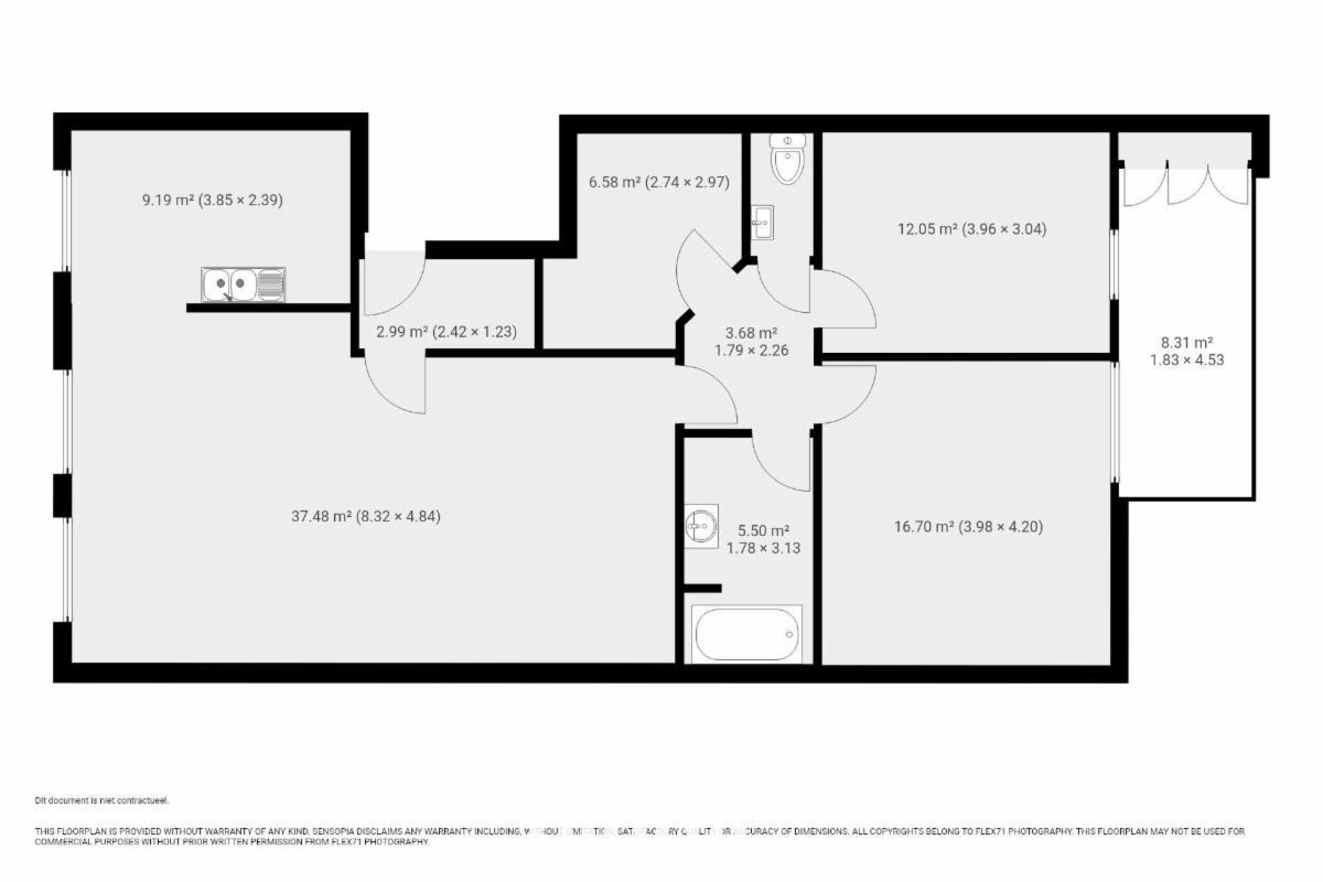
Gelegen op de 2e verdieping.
Omvat een inkomhal, living, keuken, 2 slaapkamers, badkamer, terras, berging en afzonderlijk toilet.
Daarnaast beschikt het over een garagebox in het garagegebouw.
De indeling is functioneel en biedt mogelijkheden om het appartement verder naar eigen smaak in te richten.
Interessant als eigen woonst of als investering. G score: C P score: C

Algemene informatie

  • Opbrengsteigendom
  • Vrij vanafBij de akte
  • Gebouw1997
  • PandtypeAppartementen
  • verdieping(en)1
  • Oppervlakte van het woongedeelte112m2
  • Kadastraal inkomen1.038 €
  • Aantal gevels2

Samenstelling

  • 2 slaapkamers
  • 1 badkamer
  • 1 WC
  • Woonkamer

Bijkomende informatie

  • Terras
  • StaatGoed
  • Type verwarmingElectriciteit
  • Verdieping van het goed2
  • Aantal parkeerplaatsen binnen1

Gebouw en tuin gegevens

  • Oppervlakte kadaster2335m2

Energiegegevens

  • Energiescore (kengetal) van het EPC112 kWh/m2
  • RF-Energie labelB
  • Unieke code van het EPC-certificaat20260109-0003772047-RES-1

Stedelijke informatie

  • De meest recente stedelijke bestemming van het pand met de benamingen gebruikt in het register met plannenWoongebied

Online verkoop

Doe een bod van

165.000 €

Verkoop informatie

Logo van partner Biddit

Startdatum: 23/03/2026 12:00

Einddatum: 31/03/2026 12:00

Geen bod: 1.000 €

De fiche bekijken op Biddit.be

Verkocht door de notaris Notaris Dominique Maes

Bezoekgegevens

op zaterdag 28/2, 7/3, 14/3, 21/3, 28/3 van 10u-12u.

Virtueel bezoek

Ontdek het vastgoed tijdens een virtueel bezoek

Nu bezoeken