Presentatiebeeld van het pand n° 289342

In verband met dit goed

Referentie: 289342


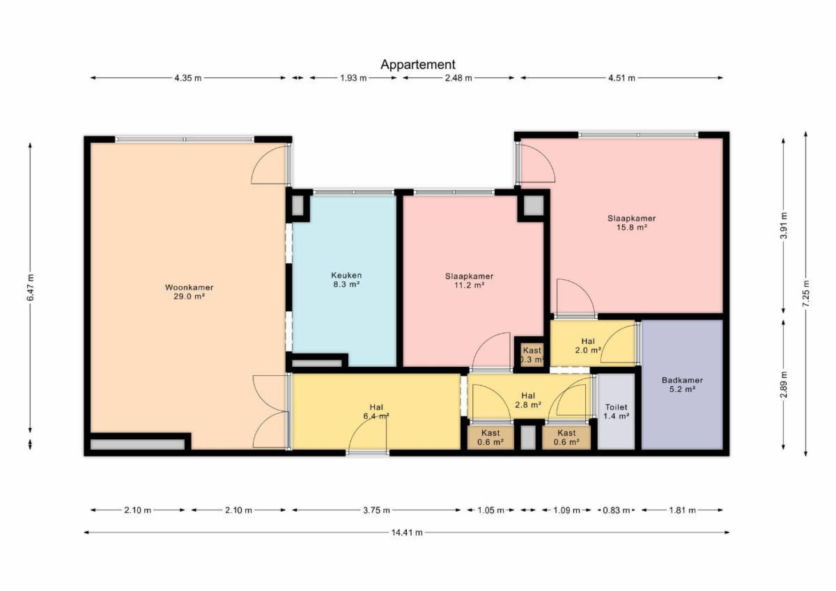
1) APPARTEMENT gemerkt "B1" (ca. 92 m²), gelegen op de EERSTE verdieping en omvattende: een hall, een living, een keuken, twee slaapkamers, een badkamer, een nachthall, een water-closet, een vestiaire en terras (48 m²) en in de ondergrond de kelder (2 m²) gemerkt nummer 13;
2) GARAGEBOX (ca. 15 m²) gemerkt "nummer 42” gelegen in de ondergrond.
Ligging: 2 min van E40, op wandelafstand van het centrum Aalst en recht tegenover het stadspark G score: A P score: D

Algemene informatie

  • Vrij vanafOnmiddellijk
  • Gebouw1968
  • PandtypeAppartementen
  • verdieping(en)1
  • Kadastraal inkomen1.006 €

Samenstelling

  • 2 slaapkamers
  • 1 badkamer
  • 1 WC
  • Kelder
  • Woonkamer
  • Oppervlakte kelder2m2

Bijkomende informatie

  • Terras
  • StaatGoed
  • Aantal parkeerplaatsen binnen1

Gebouw en tuin gegevens

  • Oppervlakte kadaster92m2
  • Oppervlakte terras48m2

Energiegegevens

  • Energiescore (kengetal) van het EPC191 kWh/m2
  • RF-Energie labelB
  • Unieke code van het EPC-certificaat20241106-0003433251-RES-1

Stedelijke informatie

  • De meest recente stedelijke bestemming van het pand met de benamingen gebruikt in het register met plannenWoongebied

Uit de hand te koop

Gewenste prijs

250.000 €

Verkocht door de notaris Notaris Van den Bossche Pascale

Heeft u een vraag over dit pand of wenst u een bezoek in te plannen? Neem contact op met de notaris van de verkoper.

Virtueel bezoek

Ontdek het vastgoed tijdens een virtueel bezoek

Nu bezoeken