Presentatiebeeld van het pand n° 290167

In verband met dit goed

Referentie: 290167


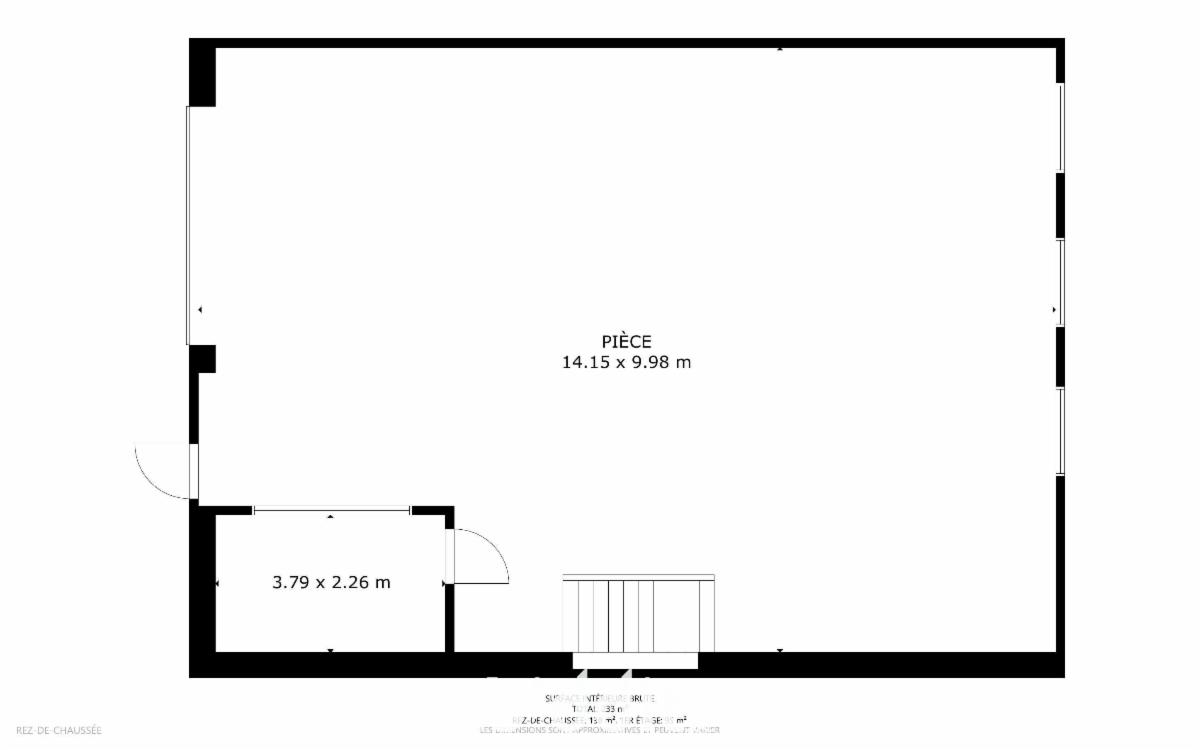
Un bâtiment industriel de 320m² situé dans une zone d’activité économique composé de deux niveaux (160 m² chacun).
Le bien dispose d’un grand accès en façade via une porte électrique, d’un raccordement à l’eau, à l’électricité ainsi que d’un accès aisé garanti par le chemin d’accès qui doit rester libre à tout moment par l’ensemble des propriétaires. Il est également proche de toutes commodités et accès routiers.
L’attention des candidats est tout particulièrement attirée sur la situation urbanistique du bien, lequel se situe dans une zone à risque d'inondation avec une hypothèse de démolition pour des raisons de sécurité ainsi que dans un périmètre destiné à être démoli afin de déminéraliser la zone et d'y réaliser des aménagements adaptés aux enjeux liés aux inondations.
Nous invitions les candidats à consulter attentivement le cahier des charges de la vente publique et à prendre contact avec le service urbanisme de la commune de Trooz afin d’obtenir plus d’informations à ce sujet.

Algemene informatie

  • Vrij vanafBij de akte
  • PandtypeIndustrie
  • Kadastraal inkomen311 €

Gebouw en tuin gegevens

  • Oppervlakte kadaster160m2

Stedelijke informatie

  • Meest recente stedenbouwkundige bestemmingZone met industrieel economische activiteit

Naam van de voorkooprechthebbende overheid (bij prioriteit)

  • Ingeschreven op de bewaar- of beschermingslijst erfgoedNeen

Online verkoop

Doe een bod van

70.000 €

Verkoop informatie

Logo van partner Biddit

Startdatum: 06/01/2026 13:00

Einddatum: 14/01/2026 13:00

Geen bod: 1.000 €

De fiche bekijken op Biddit.be

Verkocht door de notaris ETUDE NOTARIALE DE LOUVEIGNE, société notariale

Bezoekgegevens

Le bien pourra être visité par les candidats-acquéreurs, sur rendez-vous uniquement au 04/360.01.48

Infosessie

Le bien pourra être visité par les candidats-acquéreurs, sur rendez-vous uniquement au 04/360.01.48