Presentatiebeeld van het pand n° 288547

In verband met dit goed

Referentie: 288547


Met een grondoppervlakte van 180m² en bebouwde oppervlakte van 55m².
Gelegen in een bruisende deelgemeente van Antwerpen.
Merksem kenmerkt zich door een stedelijke omgeving met een mix van woonwijken, commerciële centra en groene ruimtes.
Het biedt een uitstekende bereikbaarheid dankzij de nabijheid van belangrijke verkeersaders zoals de Ring van Antwerpen (R1) en de Bredabaan (N1). Deze wegen zorgen voor een vlotte verbinding met het centrum van Antwerpen, omliggende gemeenten en snelwegen zoals de E19 richting Breda/Brussel en de E34 richting Eindhoven/Gent.
Het plat dak van de woning werd vernieuwd en geïsoleerd in 2012. In de volledig en comfortabele geïnstalleerde keuken zijn de recente apparaten een pluspunt. De sanitaire voorzieningen zijn comfortabel geïnstalleerd.
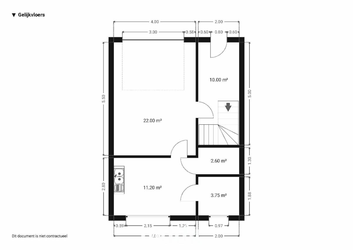
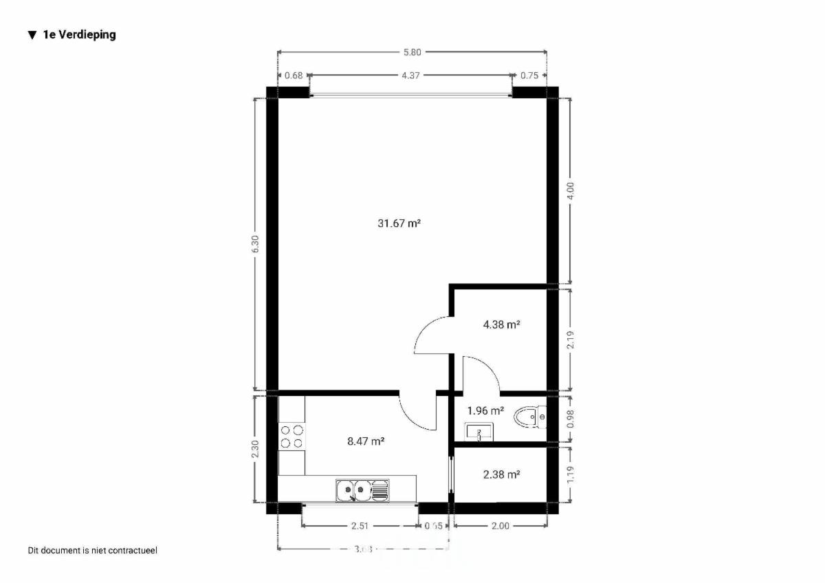
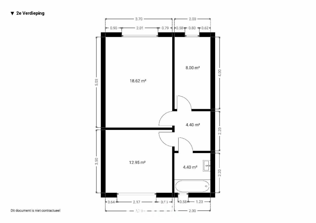
Indeling:
Gelijkvloers:
- Inkomhal
- Garage
- Bijkeuken
- Berging
- Technische ruimte
Eerste verdieping
- Overloop
- Toilet
- Leefruimte
- Keuken
Tweede verdieping
- Nachthal en slaapkamer 1
- Slaapkamer 2 en 3
- Badkamer
Het eigendom is in een goede staat en werd goed onderhouden en gerenoveerd in 2012.
Wg, Vg, Gmo, Gvkr, Vv.
BEZOEK: na afspr. via het kantoor van de notaris op het nummer 014/88 10 62. G score: A P score: A

Algemene informatie

  • Vrij vanafBij de akte
  • Gebouw1973
  • PandtypeHuizen
  • verdieping(en)3
  • Oppervlakte van het woongedeelte169m2
  • Kadastraal inkomen1.204 €
  • Aantal gevels2

Samenstelling

  • 3 slaapkamers
  • 1 badkamer
  • 2 WC
  • Ingerichte keuken
  • Woonkamer

Bijkomende informatie

  • StaatOp te frissen
  • Type verwarmingGas
  • Aantal parkeerplaatsen binnen1

Gebouw en tuin gegevens

  • Oppervlakte kadaster180m2

Energiegegevens

  • Energiescore (kengetal) van het EPC171 kWh/m2
  • RF-Energie labelB
  • Unieke code van het EPC-certificaat20230807-0002959559-RES-1

Stedelijke informatie

  • Verkavelingsvergunning
  • Stedenbouwkundige vergunning
  • De meest recente stedelijke bestemming van het pand met de benamingen gebruikt in het register met plannenWoongebied

Online verkoop

Doe een bod van

320.000 €

Verkoop informatie

Logo van partner Biddit

Startdatum: 12/11/2025 13:00

Einddatum: 20/11/2025 13:00

Geen bod: 1.000 €

De fiche bekijken op Biddit.be

Verkocht door de notaris VAN EEPOEL & VAN DYCK, geassocieerde notarissen

Bezoekgegevens

na afspr. via het kantoor van de notaris op het nummer 014/88 10 62.

Virtueel bezoek

Ontdek het vastgoed tijdens een virtueel bezoek

Nu bezoeken

Infosessie

Dinsdag 28/10/2025 om 16u.