Presentatiebeeld van het pand n° 290065

In verband met dit goed

Referentie: 290065


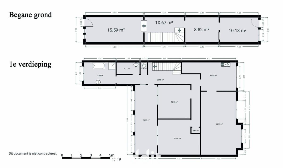
Magazijn met bureel en woonappartement, kelder en zolder aanwezig.
Appartement met 2 slaapkamers, living, veranda, toilet en badkamer met bad en douche.

Wg en PRUP KSG Leopoldsburg.
Vg d.d. 03/11/1962, Gn VV, Gn DV, P-score: A G-score: A.
G score: A P score: A

Algemene informatie

  • Vrij vanafBij de akte
  • Gebouw1953
  • PandtypeHuizen
  • verdieping(en)2
  • Kadastraal inkomen2.040 €
  • Aantal gevels2

Samenstelling

  • 2 slaapkamers
  • 1 badkamer
  • 2 WC
  • Zolder
  • Kelder
  • Veranda
  • Woonkamer

Bijkomende informatie

  • OmgevingStedelijk
  • StaatOp te frissen

Gebouw en tuin gegevens

  • Oppervlakte kadaster884m2

Energiegegevens

  • Energiescore (kengetal) van het EPC549 kWh/m2
  • RF-Energie labelF De wettelijke verplichting tot renovatie is mogelijks van toepassing op dit goed.
  • Unieke code van het EPC-certificaat20230207-0002801133-RES-1

Stedelijke informatie

  • Stedenbouwkundige vergunning
  • De meest recente stedelijke bestemming van het pand met de benamingen gebruikt in het register met plannenWoongebied en PRUP KSG Leopoldsburg

Online verkoop

Doe een bod van

100.000 €

Verkoop informatie

Afgesloten verkoop
Logo van partner Biddit

Startdatum: 12/01/2026 14:00

Einddatum: 20/01/2026 14:00

Geen bod: 1.000 €

De fiche bekijken op Biddit.be

Verkocht door de notaris VROLIX & VANUYTRECHT

Bezoekgegevens

Op volgende woensdagen van 14u tot 15u : 26/11/2025 - 03/12/2025 - 10/12/2025 - 17/12/2025 - 07/01/2026 - 14/01/2026; op volgende zaterdagen van 10u tot 11u: 29/11/2025 -06/12/2025 - 13/12/2025 - 03/01/2025 - 10/01/2025 - 17/01/2025

Virtueel bezoek

Ontdek het vastgoed tijdens een virtueel bezoek

Nu bezoeken