Presentatiebeeld van het pand n° 291307

In verband met dit goed

Referentie: 291307


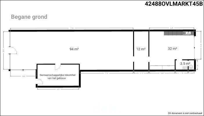
Een handelsruimte met kelderberging in centrum Maldegem in het appartementsgebouw Residentie “Walther”.
Omvattende: Gelijkvloers: winkelruimte, keuken, toilet, terras; Kelderverdieping: berging.
KI €1.621.
Stedenbouw: Woongebied.
winkelruimte - EPC: C-label.
Niet-conforme elektrische keuring.
Syndicus, reservekapitaal aanwezig.
Geen hangende procedures.
Beschermd stads of dorpsgericht intrinsiek beschermingstype ‘Parochiekerk Sint-Barbara en omgeving’, Vastgesteld bouwkundig erfgoed ‘Parochiekerk Sint-Barbara en omgeving’.
Verhuurde toestand: maandelijkse huurprijs: € 1.100,00 (indexatie: €1.275,44) + € 150,00 syndicuskosten, huurcontract van onbepaalde duur, huidige bestemming: interimkantoor.
G score: A P score: A

Algemene informatie

  • Vrij vanafAndere
  • Gebouw2001
  • PandtypeHandelspanden
  • Kadastraal inkomen1.621 €
  • Aantal gevels2

Samenstelling

  • 1 WC
  • Kelder

Bijkomende informatie

  • Terras
  • OmgevingStedelijk
  • StaatGoed

Gebouw en tuin gegevens

  • Oppervlakte kadaster711m2

Energiegegevens

  • RF-Energie labelC
  • Unieke code van het EPC-certificaat20200129-0002240241-KNR-1

Stedelijke informatie

  • Stedenbouwkundige vergunning
  • De meest recente stedelijke bestemming van het pand met de benamingen gebruikt in het register met plannenWoongebied

Online verkoop

Doe een bod van

270.000 €

Verkoop informatie

Logo van partner Biddit

Startdatum: 04/02/2026 14:00

Einddatum: 12/02/2026 14:00

Geen bod: 1.000 €

De fiche bekijken op Biddit.be

Verkocht door de notaris LEROY JULIE, notarisvennootschap

Bezoekgegevens

Het goed zal door de kandidaat-kopers kunnen bezocht worden na telefonische afspraak met het kantoor van notaris Julie Leroy te Maldegem

Virtueel bezoek

Ontdek het vastgoed tijdens een virtueel bezoek

Nu bezoeken