Presentatiebeeld van het pand n° 291056

In verband met dit goed

Referentie: 291056


Charmante maison 3 façades à rafraichir, avec belle parcelle de jardin, idéalement située à Petit-Rechain.
Elle se compose comme suit :
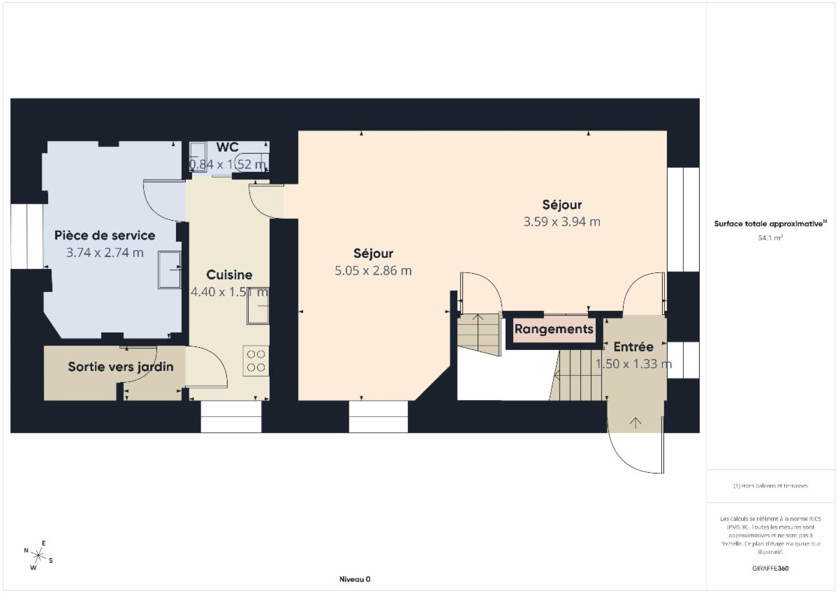
- Rez-de-chaussée : hall d’entrée, grand séjour lumineux, cuisine, espace buanderie/chaufferie, toilette individuelle et accès à l’extérieur ;
- 1er étage : 3 chambres et une salle de bains ;
- Sous-sol : caves ;
- A l’extérieur : superbe parcelle de jardin.
Côté technique :
Châssis PVC double vitrage, chauffage mazout, nouvelle toiture, électricité non conforme.
Proche des commodités, dans un quartier prisé et calme, cette maison offre de nombreux points positifs amenant à un réel coup de coeur.
Visite virtuelle : https://tour.giraffe360.com/f3638486bf9c438f8dd6c1ae19d88a4d
PEB cat. E, 133 m² de surface de plancher chauffé, 387 kWh/m².an, 51.452 kWh/an.

Algemene informatie

  • Vrij vanafBij de akte
  • PandtypeHuizen
  • verdieping(en)1
  • Oppervlakte van het woongedeelte133m2
  • Kadastraal inkomen547 €
  • Aantal gevels3

Samenstelling

  • 3 slaapkamers
  • 1 badkamer
  • 2 WC
  • Zolder
  • Kelder
  • Ingerichte keuken
  • Washok
  • Woonkamer
  • Oppervlakte slaapkamer 111m2
  • Oppervlakte slaapkamer 211m2
  • Oppervlakte slaapkamer 37m2
  • Oppervlakte keuken7m2
  • Oppervlakte woonkamer29m2
  • Oppervlakte kelder23m2
  • Aantal wooneenheden1

Bijkomende informatie

  • Teledistributie
  • Terras
  • Plaatselijke steen
  • OmgevingResidentieel
  • StaatOp te frissen
  • Type verwarmingMazout
  • Gevelbreedte straatkant6m

Gebouw en tuin gegevens

  • Tuin
  • Vlakke grond
  • Oppervlakte kadaster681m2
  • Diepte van het stuk grond54m
  • Breedte van de grond aan de straatkant13m
  • Oriëntatie tuinNW
  • Oppervlakte tuin621m2

Faciliteit gegevens

  • Nabijgelegen bus
  • Nabijgelegen winkels
  • Scholen
  • Autoweg

Energiegegevens

  • Aansluiting aan de riolering
  • Dubbele beglazing
  • Stookolie-, gas- of andere tank
  • Energie labelEnergielabel van het pand
  • Unieke code van het EPC-certificaat20250903006085
  • Primair specifiek energieverbruik387 kWh/m2/an
  • Primair theoretisch energieverbruik51.452 kWh/an

Stedelijke informatie

  • Meest recente stedenbouwkundige bestemmingWoongebied

Naam van de voorkooprechthebbende overheid (bij prioriteit)

  • Ingeschreven op de bewaar- of beschermingslijst erfgoedNeen

Uit de hand te koop

Bieden vanaf

255.000 €

Verkocht door de notaris Anne-Catherine Wathelet Notaire

Heeft u een vraag over dit pand of wenst u een bezoek in te plannen? Neem contact op met de notaris van de verkoper.

Bezoekgegevens

Visites uniquement sur rendez-vous.

Virtueel bezoek

Ontdek het vastgoed tijdens een virtueel bezoek

Nu bezoeken