Presentatiebeeld van het pand n° 289294

In verband met dit goed

Referentie: 289294


In het hart van Zichem op wandelafstand van de gezellige markt van Zichem vind je deze ruime en verzorgde rijwoning met klein, gezellig onderhoudsvriendelijk tuintje — ideaal voor wie centraal wil wonen met tal van voorzieningen op wandelafstand.

De woning, gebouwd in 1931, biedt verrassend veel woonruimte en een praktische indeling:
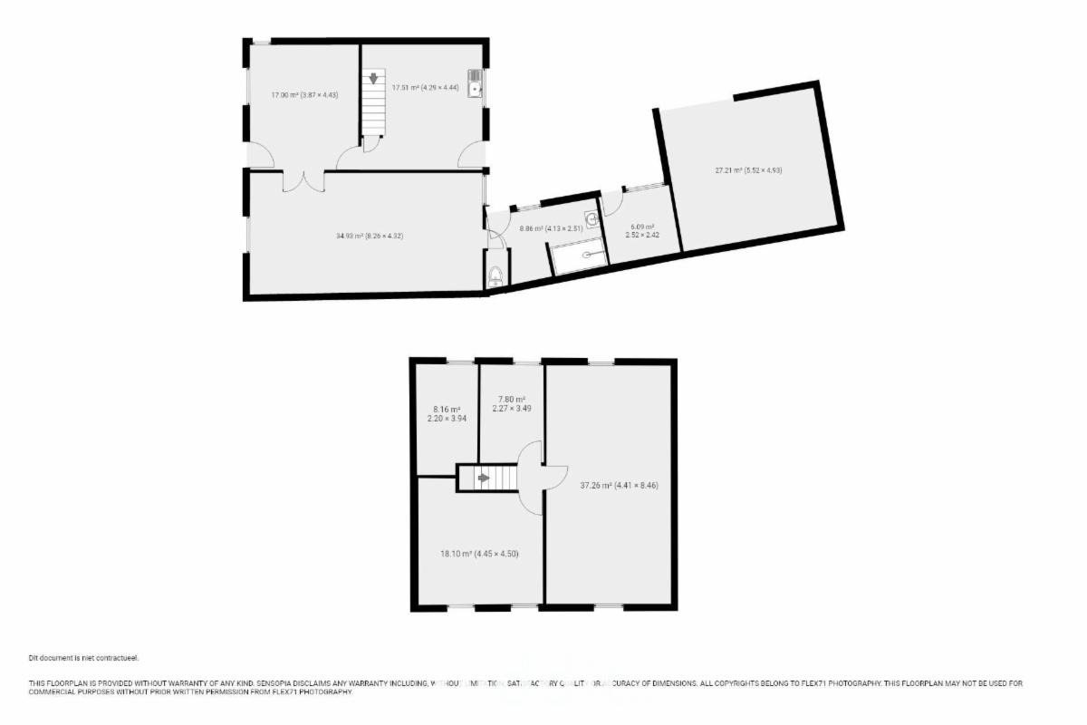
• Gelijkvloers: ruime hal/zitplaats, keuken, leefruimte en badkamer.
Via het tuintje bereik je een handige berging en schuurtje — perfect voor fietsen of extra opslag.
• Verdieping: twee ruime slaapkamers, een kleinere slaapkamer en een technische ruimte.

Deze woning heeft solide basisstructuren en biedt veel mogelijkheden om ze verder naar eigen smaak te moderniseren.

Dankzij de centrale ligging geniet je van een vlotte verbinding met scholen, openbaar vervoer en de natuurlijke omgeving van de Demervallei.

Een ideale woning voor starters, jonge gezinnen of doe-het-zelvers die op zoek zijn naar ruimte, een tuintje en een centrale ligging in een gezellige dorpskern met nog alle kansen om de woning naar eigen smaak te renoveren of te verfraaien. G score: A P score: A

Algemene informatie

  • Vrij vanafOnmiddellijk
  • Gebouw1931
  • PandtypeHuizen
  • verdieping(en)2
  • Kadastraal inkomen438 €
  • Aantal gevels2

Samenstelling

  • 3 slaapkamers
  • 1 badkamer
  • 1 WC
  • Woonkamer

Bijkomende informatie

  • OmgevingStedelijk
  • StaatTe renoveren
  • Type verwarmingGas

Gebouw en tuin gegevens

  • Tuin
  • Oppervlakte kadaster195m2

Energiegegevens

  • Energiescore (kengetal) van het EPC465 kWh/m2
  • RF-Energie labelE De wettelijke verplichting tot renovatie is mogelijks van toepassing op dit goed.
  • Unieke code van het EPC-certificaat20210603-0002424120-RES-1

Stedelijke informatie

  • De meest recente stedelijke bestemming van het pand met de benamingen gebruikt in het register met plannenWoongebied

Online verkoop

Doe een bod van

105.000 €

Verkoop informatie

Afgesloten verkoop
Logo van partner Biddit

Startdatum: 01/12/2025 15:00

Einddatum: 09/12/2025 15:00

Geen bod: 1.000 €

De fiche bekijken op Biddit.be

Verkocht door de notaris MEURIS, CLAES & DE COCK

Bezoekgegevens

Elke zaterdag van 10u-12u, en dit vanaf zaterdag 8 november 2025 tot en met zaterdag 6 december 2025

Virtueel bezoek

Ontdek het vastgoed tijdens een virtueel bezoek

Nu bezoeken