Presentatiebeeld van het pand n° 282687

In verband met dit goed

Referentie: 282687


Een opbrengsthuis
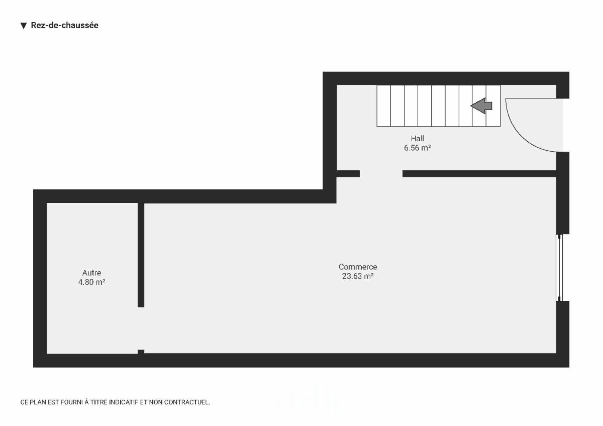
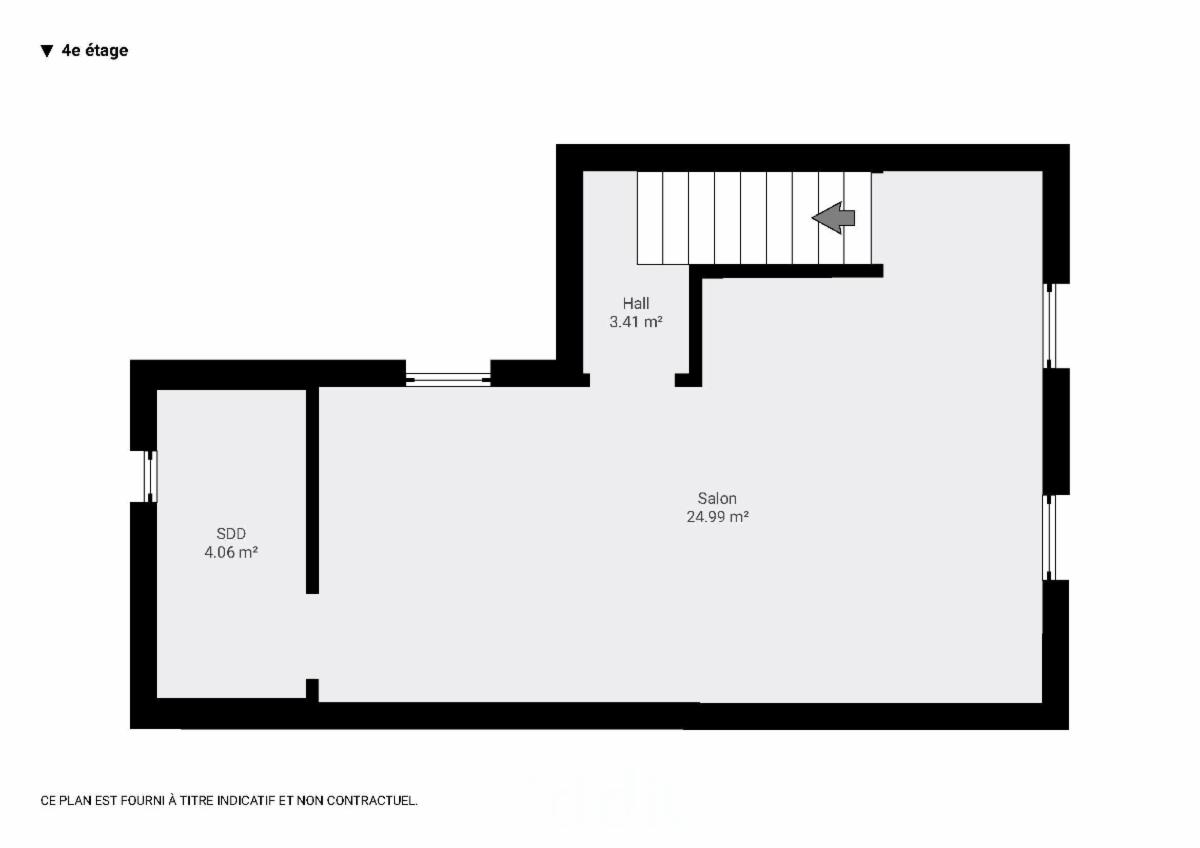
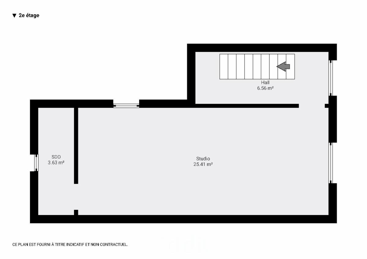
Sint-Gisleinsstraat 50, opp 41ca. Omvattende : gelijkvl.: hal, handelszaak - 1e , 2e en 3e verd.. elk : hal, studio, douchekamer - 4e verd. : hal, salon, douchekamer - 5e verd . : 1 slaapkamer. N.g.k.i. 891€. Gebruik. : gelijkvl.: handelszaak vrij van gebruik - 4 wooneenheden verhuurd. Woongebied met residentieel karakter, GCHEWS.. EPC : F/299 (1e verd.) - G/387 (2e verd.) - G/387 (3e verd.) - G/1015 (4e verd.) Contr. electr. niet conform. Bezoekdagen: zaterdag 22/11, 29/11 en 6/12/25 van 10-12u en dinsdag 25/11, 02/12 en 09/12/25 van 16-18u.
Begin biedingen : dinsdag 02.12.25 om 13u -
Einde biedingen : woensdag.10.12.25 om 13u -
Instelprijs : 350.000€ -
Bodverhoging : 1.000€ -
Ondertekening akte : dinsdag 16.12.25 om 10u -
www.biddit.be - Ref. pand : 282687.

Algemene informatie

  • Opbrengsteigendom
  • Vrij vanafAndere
  • PandtypeHuizen
  • verdieping(en)5
  • Kadastraal inkomen891 €

Samenstelling

  • 1 slaapkamer
  • 4 douchekamers
  • Woonkamer

Gebouw en tuin gegevens

  • Oppervlakte kadaster41m2

Energiegegevens

  • Conformiteitsattest van de elektrische installatieJa, niet gelijkvorming
  • Andere opmerkingenWoongebied met residentieel karakter, GCHEWS.. EPC : F/299 (1e verd.) - G/387 (2e verd.) - G/387 (3e verd.) - G/1015 (4e verd.)

Financiële gegevens

  • Huidig verhuurd percentage80%

Stedelijke informatie

  • Meest recente en meest nauwkeurige wettelijke stedenbouwkundige bestemmingWoongebieden met residentieel karakter

Online verkoop

Doe een bod van

300.000 €

Verkoop informatie

Afgesloten verkoop
Logo van partner Biddit

Startdatum: 02/12/2025 13:00

Einddatum: 10/12/2025 13:00

Geen bod: 1.000 €

De fiche bekijken op Biddit.be

Verkocht door de notaris Van Halteren Notaires

Bezoekgegevens

zaterdag 22/11, 29/11 en 6/12/25 van 10-12u en dinsdag 25/11, 02/12 en 09/12/25 van 16-18u.

Virtueel bezoek

Ontdek het vastgoed tijdens een virtueel bezoek

Nu bezoeken