Presentatiebeeld van het pand n° 287244

In verband met dit goed

Referentie: 287244


1. Een woonhuis
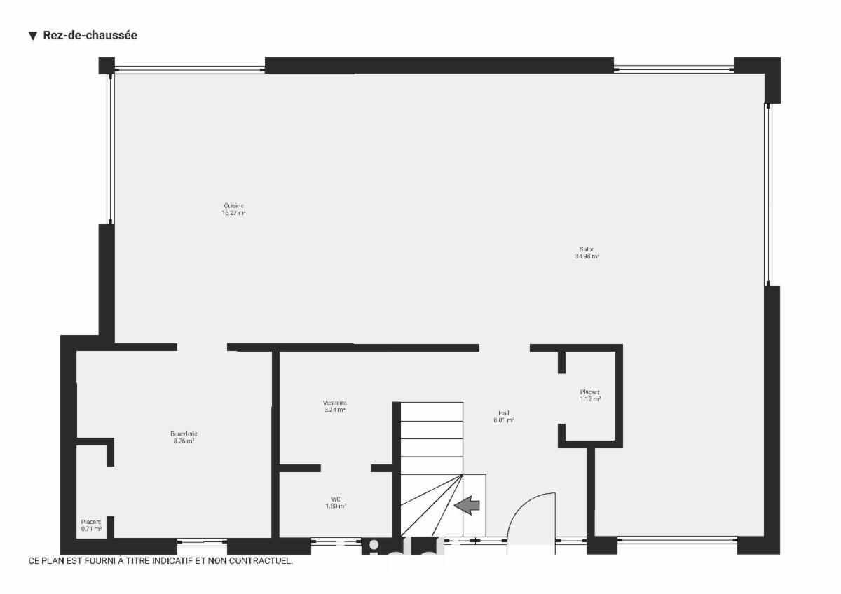
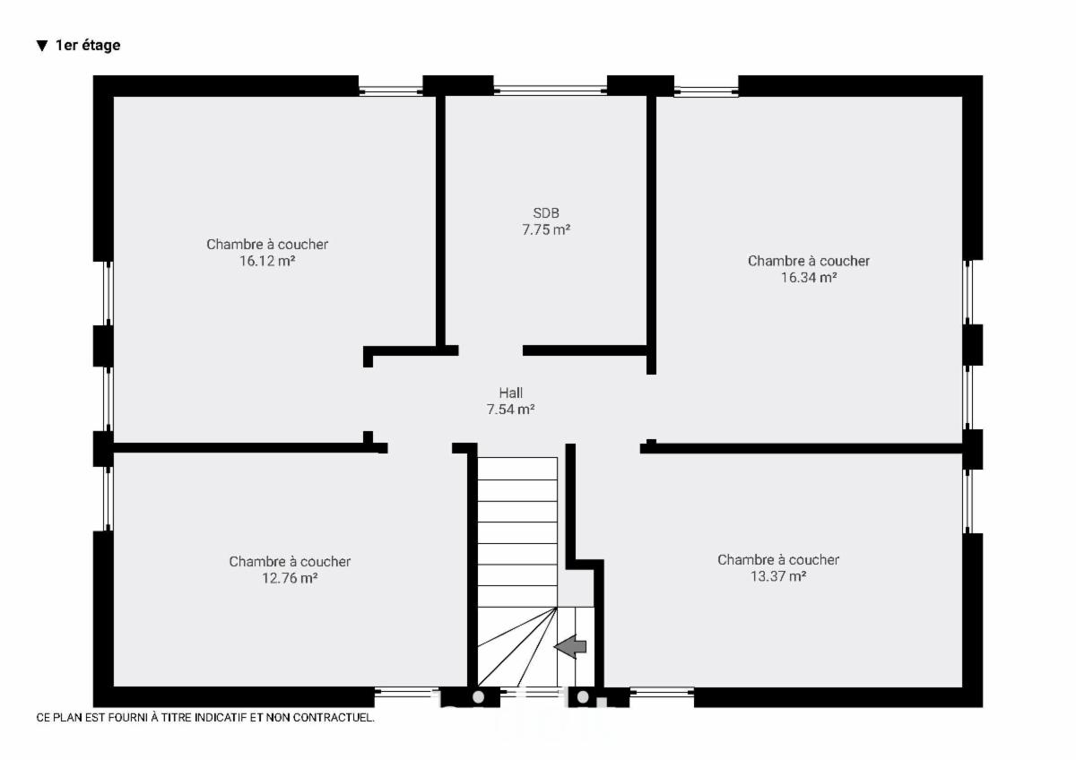
Rue du Valcq 4. Gekad. sectie G nr 0069 W P0000, oppervlakte : 14a 97ca. N.g.k.i. 2.588€. Omv. 4 slaapkamers (12-13-16-17 m²). EPC : D/289. Contr. elektr. te bevestigen.
2. Een perceel grond
Gelegen achteraan het goed 1.
Gek. sect. G nr 0069 T 2 P0000, oppervlakte : 2a 36a. N.g.k.i. 2€.
In gebruik. Woongebied met landelijk karakter. Bezoek: vrijdagen 12-19 en 26/9/25 van 17-19u en zaterdag, 13-20 en 27/9/25 van 11-13u.
Begin biedingen : maandag 22.09.25 om 10u -
Einde biedingen : dinsdag 30.09.25 om 10u -
Instelprijs : 320.000€ -
Bodverhoging : 1.000€ -
Ondertekening akte : dinsdag 07.10.25 om 10u -
www.biddit.be - Ref. pand : 287244.

Algemene informatie

  • Vrij vanafAndere
  • PandtypeHuizen
  • Kadastraal inkomen2.590 €

Samenstelling

  • 4 slaapkamers
  • Oppervlakte slaapkamer 112m2
  • Oppervlakte slaapkamer 213m2
  • Oppervlakte slaapkamer 316m2
  • Oppervlakte slaapkamer 417m2

Gebouw en tuin gegevens

  • Oppervlakte kadaster1733m2

Energiegegevens

  • Energie labelEnergielabel van het pand
  • Primair specifiek energieverbruik289 kWh/m2/an

Stedelijke informatie

  • Meest recente stedenbouwkundige bestemmingWoongebied met landelijk karakter

Online verkoop

Doe een bod van

320.000 €

Verkoop informatie

Afgesloten verkoop
Logo van partner Biddit

Startdatum: 22/09/2025 10:00

Einddatum: 30/09/2025 10:00

Geen bod: 1.000 €

De fiche bekijken op Biddit.be

Verkocht door de notaris Danielle DUHEN, Notaire

Bezoekgegevens

vrijdagen 12-19 en 26/9/25 van 17-19u en zaterdag, 13-20 en 27/9/25 van 11-13u.

Virtueel bezoek

Ontdek het vastgoed tijdens een virtueel bezoek

Nu bezoeken