Presentatiebeeld van het pand n° 287339

In verband met dit goed

Referentie: 287339


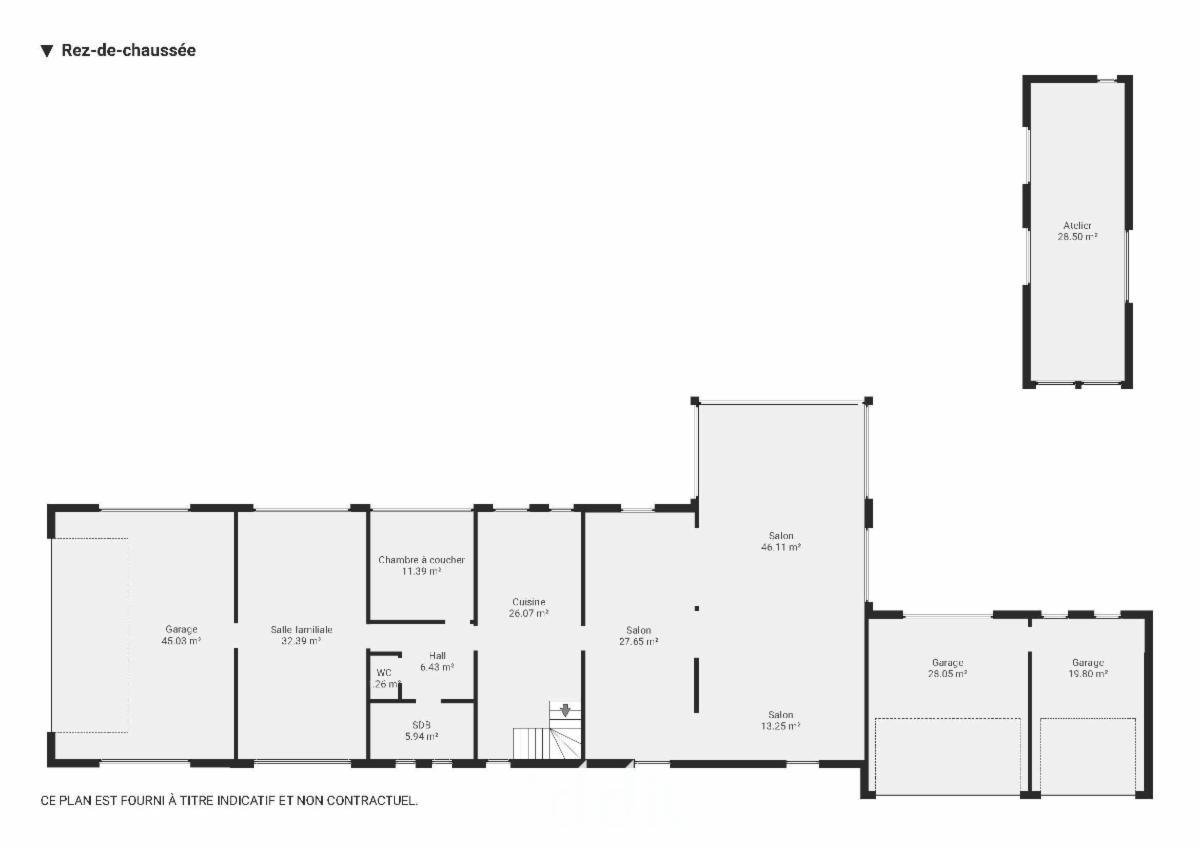
Een woonhuis met werkplaats, 3 garages
Gelegen Kaalheide 25 op en met grond van 20a. Omvattende op glvl. : werkplaats, 3 garages, inkomhal, wc, salon, living, keuken, badkamer, slaapkamer, koer - op 1e verd. : 2 slaapkamers, badkamer, dressing, living. N.g.k.i. 3.150€. Vrij van gebruik. Natuurgebied. EPC F/968. Contr. elektr. niet conform. Bezoeken : woensdagen 15-22-29/10 van 10-12u en zaterdagen 11-18-25/10 van 14-16u.
Begin biedingen : woensdag 22.10.25 om 13u -
Einde biedingen : donderdag 30.10.25 om 13u -
Instelprijs : 295.000€ -
Bodverhoging : 1.000€ -
Ondertekening akte : donderdag 06.11.25 om 11u -
www.biddit.be - Ref. pand : 287339.

Algemene informatie

  • Vrij vanafBij de akte
  • PandtypeHuizen
  • Kadastraal inkomen3.150 €

Samenstelling

  • 3 slaapkamers
  • 2 badkamers
  • 1 WC
  • Dressing
  • Ingerichte keuken
  • Eetkamer
  • Woonkamer

Bijkomende informatie

  • Binnenplaats
  • Aantal parkeerplaatsen binnen3

Gebouw en tuin gegevens

  • Oppervlakte kadaster2000m2

Energiegegevens

  • Energiescore (kengetal) van het EPC968 kWh/m2
  • RF-Energie labelF De wettelijke verplichting tot renovatie is mogelijks van toepassing op dit goed.
  • Conformiteitsattest van de elektrische installatieJa, niet gelijkvorming
  • Unieke code van het EPC-certificaat20230527-0002903093-RES-1

Stedelijke informatie

  • De meest recente stedelijke bestemming van het pand met de benamingen gebruikt in het register met plannenNatuurgebied

Online verkoop

Doe een bod van

295.000 €

Verkoop informatie

Logo van partner Biddit

Startdatum: 22/10/2025 13:00

Einddatum: 30/10/2025 13:00

Geen bod: 1.000 €

De fiche bekijken op Biddit.be

Verkocht door de notaris David Indekeu, Notaire

Bezoekgegevens

woensdagen 15-22-29/10 van 10-12u en zaterdagen 11-18-25/10 van 14-16u.

Virtueel bezoek

Ontdek het vastgoed tijdens een virtueel bezoek

Nu bezoeken