Presentatiebeeld van het pand n° 290861

In verband met dit goed

Referentie: 290861


Proche du centre de Vielsalm, ensemble immobilier comprenant deux maisons à rénover situées à proximité des commodités.
La maison (3 façades) située rue des Combattants n°9 dispose en son rez-de-chaussée d'un espace salon, d'une salle à manger, d'une cuisine équipée et d'un espace buanderie avec WC. Le premier étage offre un hall de nuit, 4 chambres et une salle de bains. Le second niveau offre plusieurs greniers aménageables. Ce bien dispose également d'un garage.
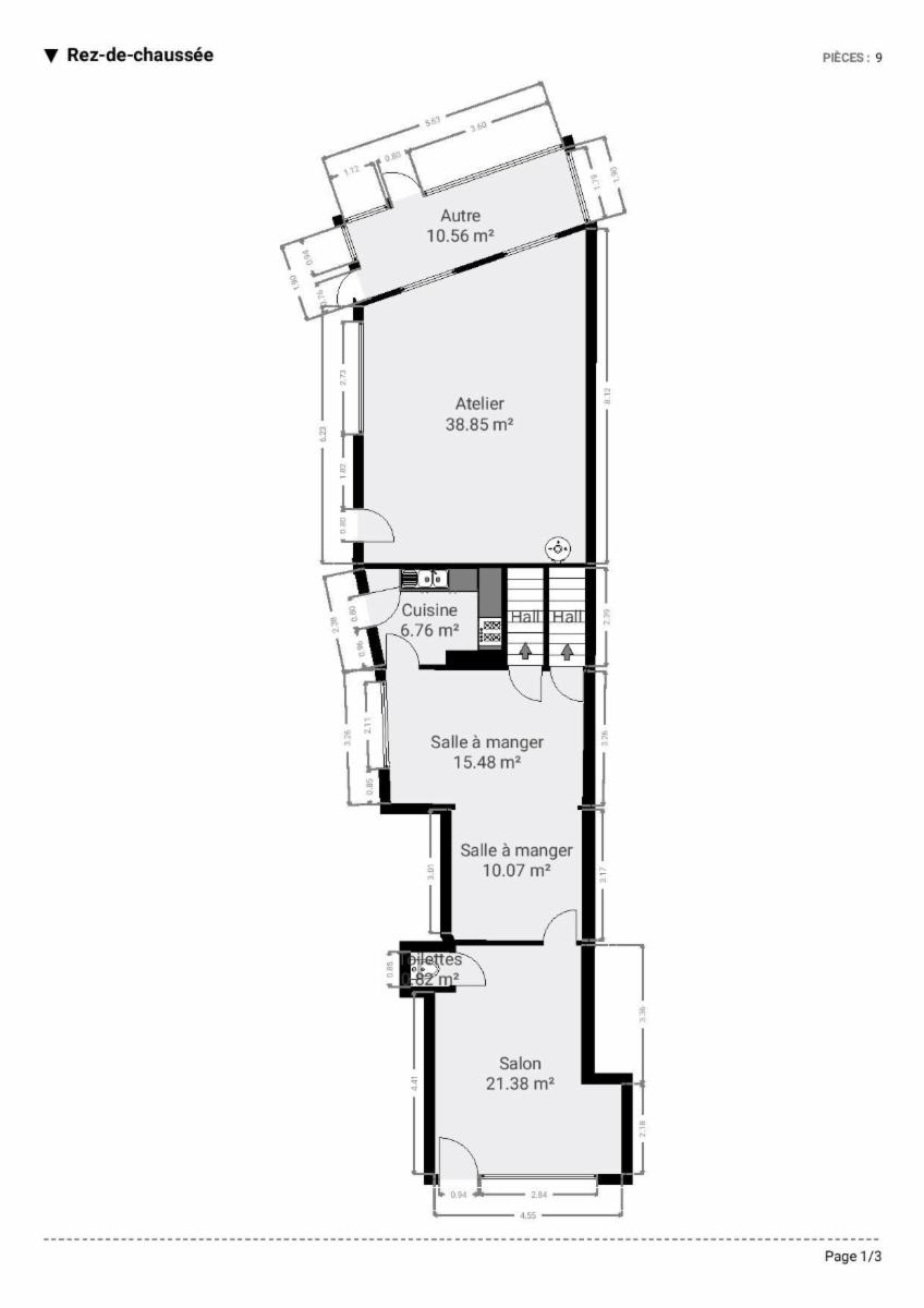
La maison (2 façades) située rue des Combattants n°11 dispose en son rez-de-chaussée d'un espace salon, salle à manger, d'une cuisine équipée, d'un grand espace atelier accessible depuis l'extérieur et d'une véranda chauffée. Le premier étage offre 3 chambres et une salle de bains. Le second niveau offre un hall de nuit, deux chambres supplémentaires et une seconde salle de bains. Présence de caves. Ces biens disposent aussi d'un jardin (en zone d'habitat) à l'arrière des deux habitations qui donne accès à la rue Jules Bary.

Algemene informatie

  • Vrij vanafBij de akte
  • PandtypeHuizen
  • Oppervlakte van het woongedeelte412m2
  • Kadastraal inkomen1.816 €

Samenstelling

  • 9 slaapkamers
  • 3 badkamers
  • Zolder

Bijkomende informatie

  • StaatTe renoveren
  • Type verwarmingMazout

Gebouw en tuin gegevens

  • Tuin
  • Oppervlakte kadaster1949m2

Energiegegevens

  • Energie labelEnergielabel van het pand
  • Conformiteitsattest van de elektrische installatieJa, niet gelijkvorming
  • Unieke code van het EPC-certificaat20251204007609
  • Primair specifiek energieverbruik339 kWh/m2/an
  • Primair theoretisch energieverbruik55.230 kWh/an

Stedelijke informatie

  • Meest recente stedenbouwkundige bestemmingWoongebied

Naam van de voorkooprechthebbende overheid (bij prioriteit)

  • Ingeschreven op de bewaar- of beschermingslijst erfgoedNeen

Uit de hand te koop

Gewenste prijs

256.000 €

Verkocht door de notaris Pierre COTTIN & Caroline MONSEUR - Société Notariale

Heeft u een vraag over dit pand of wenst u een bezoek in te plannen? Neem contact op met de notaris van de verkoper.