Presentatiebeeld van het pand n° 288482

In verband met dit goed

Referentie: 288482


Te renoveren woning, rustig en landelijk gelegen in een doodlopende straat te Hoeselt, Grote Zapstraat nummer 41 op 10 minuten van het centrum van Bilzen en met een vlotte verbinding naar de E313.

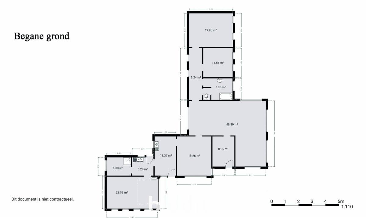
De woning ligt op een ruim perceel van 14a 54ca, volledig op het gelijkvloers, en heeft een bewoonbare oppervlakte van ongeveer 200m² met volgende indeling:
inkomhal, woonkamer, eetkamer, keuken met achterliggend nog een bijkeuken, veranda, berging, 2 slaapkamers en badkamer met ligbad en toilet.
Deze woning met tal van mogelijkheden beschikt verder ook nog over een grote tuin, ruime garage (ook toegankelijk via de bijkeuken) en aan de zijkant over twee stockageruimtes.

Bouwjaar volgens kadaster: 1969.
KI: 932 euro.
Volledig gelegen in woongebied.

Bezichtiging: na afspraak met het kantoor van notaris Stefan D’Huys te Hasselt (Kortessem).

G score: A P score: C

Algemene informatie

  • Vrij vanafBij de akte
  • Gebouw1969
  • PandtypeHuizen
  • Kadastraal inkomen932 €
  • Aantal gevels4

Samenstelling

  • 2 slaapkamers
  • 1 badkamer
  • 1 WC
  • Veranda
  • Eetkamer
  • Woonkamer

Bijkomende informatie

  • OmgevingLandelijk
  • StaatTe renoveren
  • Type verwarmingMazout
  • Aantal parkeerplaatsen binnen1

Gebouw en tuin gegevens

  • Tuin
  • Oppervlakte kadaster1454m2

Faciliteit gegevens

  • Autoweg

Energiegegevens

  • Stookolie-, gas- of andere tank
  • Energiescore (kengetal) van het EPC1.127 kWh/m2
  • RF-Energie labelF De wettelijke verplichting tot renovatie is mogelijks van toepassing op dit goed.
  • Milieuverklaring of milieuvergunningNeen
  • Unieke code van het EPC-certificaat20240716-0003314298-RES-1
  • Conformiteitsattest van de stookolietankJa, gelijkvorming

Stedelijke informatie

  • Stedenbouwkundige vergunning
  • De meest recente stedelijke bestemming van het pand met de benamingen gebruikt in het register met plannenWoongebied

Online verkoop

Doe een bod van

175.000 €

Verkoop informatie

Logo van partner Biddit

Startdatum: 04/11/2025 14:00

Einddatum: 12/11/2025 14:00

Geen bod: 1.000 €

De fiche bekijken op Biddit.be

Verkocht door de notaris NOTARIS STEFAN D´HUYS

Bezoekgegevens

Na afspraak met het kantoor van notaris Stefan D'Huys te Hasselt

Virtueel bezoek

Ontdek het vastgoed tijdens een virtueel bezoek

Nu bezoeken