Presentatiebeeld van het pand n° 294301

In verband met dit goed

Referentie: 294301


Goed gelegen, te renoveren woning.
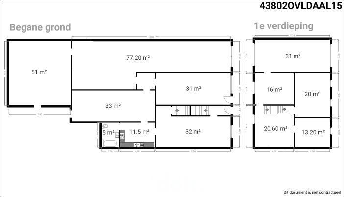
Huidige indeling: inkomhall, leefruimte, keuken, berging beneden, badkamer, nachthall, 2 slaapkamers, 2 bergingen boven, zolder, kelder en tuin. G score: B P score: B

Algemene informatie

  • Vrij vanafBij de akte
  • Gebouw1930
  • PandtypeHuizen
  • verdieping(en)2
  • Oppervlakte van het woongedeelte456m2
  • Kadastraal inkomen567 €
  • Aantal gevels2

Samenstelling

  • 2 slaapkamers
  • 1 badkamer
  • 1 WC
  • Zolder
  • Kelder
  • Woonkamer

Bijkomende informatie

  • OmgevingResidentieel
  • StaatTe renoveren
  • Type verwarmingMazout

Gebouw en tuin gegevens

  • Tuin
  • Oppervlakte kadaster550m2

Energiegegevens

  • Energiescore (kengetal) van het EPC358 kWh/m2
  • RF-Energie labelD
  • Unieke code van het EPC-certificaat20230526-0002902411-RES-1

Stedelijke informatie

  • De meest recente stedelijke bestemming van het pand met de benamingen gebruikt in het register met plannenWoongebied

Online verkoop

Doe een bod van

120.000 €

Verkoop informatie

Logo van partner Biddit

Startdatum: 11/05/2026 11:00

Einddatum: 19/05/2026 11:00

Geen bod: 1.000 €

De fiche bekijken op Biddit.be

Verkocht door de notaris NOTAN geassocieerde notarissen

Bezoekgegevens

Het goed zal door de kandidaat-kopers kunnen bezocht worden elke zaterdag van 14u-16u, en dit vanaf zaterdag 18 april 2026 tot en met zaterdag 16 mei 2026

Virtueel bezoek

Ontdek het vastgoed tijdens een virtueel bezoek

Nu bezoeken