Presentatiebeeld van het pand n° 291722

In verband met dit goed

Referentie: 291722


Centraal gelegen ruime woning, met mooi perceel grond thans gebruikt als grote, groene tuin.
Grond heeft vele bouw- en projectmogelijkheden (verkavelbaar).
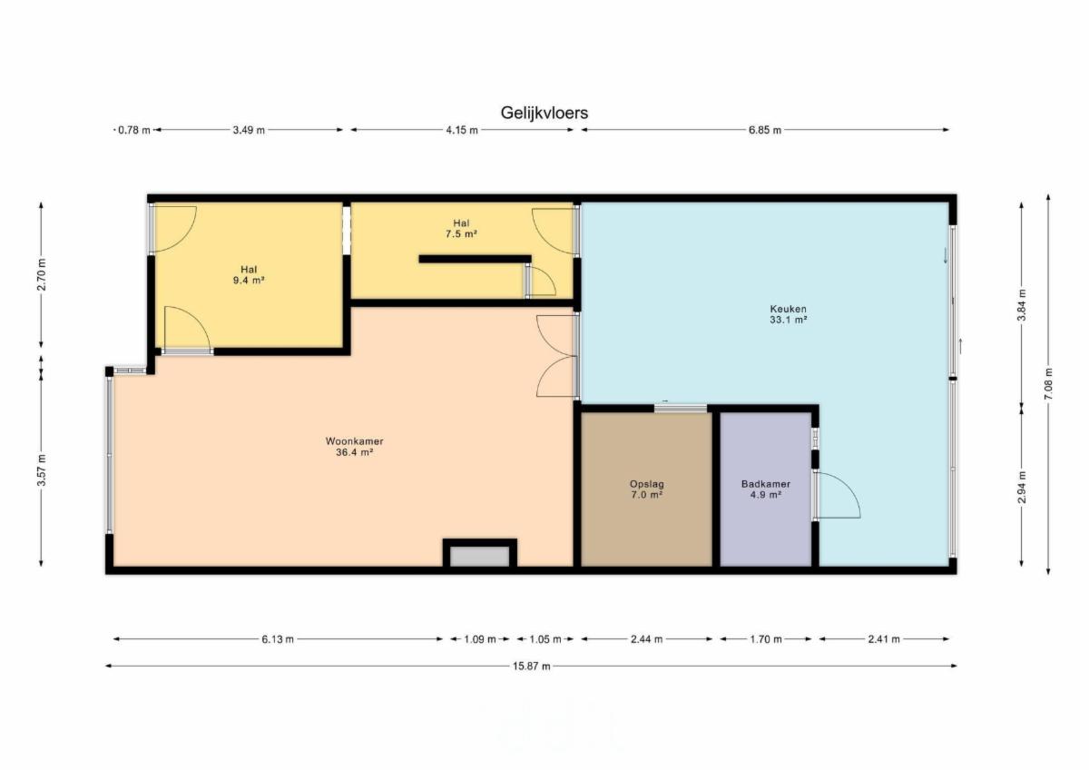
Ruime living en keuken, 5 slaapkamers, badkamer, externe garage, zowel toegankelijk via Westkade als via Stationsstraat. Mogelijkheid om gebouw om te vormen in energiezuinige woning. Openbaar vervoer en vele winkels,… in directe omgeving.
Zeer veel potentieel!! G score: C P score: C

Algemene informatie

  • Vrij vanafBij de akte
  • PandtypeHuizen
  • verdieping(en)3
  • Oppervlakte van het woongedeelte154m2
  • Kadastraal inkomen733 €
  • Aantal gevels2

Samenstelling

  • 5 slaapkamers
  • 1 badkamer
  • 1 WC
  • Woonkamer

Bijkomende informatie

  • StaatTe renoveren
  • Type verwarmingMazout
  • Aantal parkeerplaatsen binnen1

Gebouw en tuin gegevens

  • Tuin
  • Oppervlakte kadaster869m2

Energiegegevens

  • Energiescore (kengetal) van het EPC490 kWh/m2
  • RF-Energie labelE De wettelijke verplichting tot renovatie is mogelijks van toepassing op dit goed.
  • Unieke code van het EPC-certificaat20251226-0003766281-RES-1

Stedelijke informatie

  • Verkavelingsvergunning
  • Stedenbouwkundige vergunning
  • De meest recente stedelijke bestemming van het pand met de benamingen gebruikt in het register met plannenWoongebied

Online verkoop

Doe een bod van

250.000 €

Verkoop informatie

Afgesloten verkoop
Logo van partner Biddit

Startdatum: 12/02/2026 15:00

Einddatum: 20/02/2026 15:00

Geen bod: 1.000 €

De fiche bekijken op Biddit.be

Verkocht door de notaris BUYSSE & DE ROO, GEASSOCIEERDE NOTARISSEN

Bezoekgegevens

elke woensdag van 16u-18u vanaf woensdag 21 januari 2026 t.e.m. woensdag 18 februari 2026.

Virtueel bezoek

Ontdek het vastgoed tijdens een virtueel bezoek

Nu bezoeken