Presentatiebeeld van het pand n° 288079

In verband met dit goed

Referentie: 288079


Half open ééngezinswoning met tuin
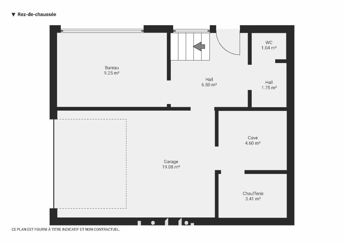
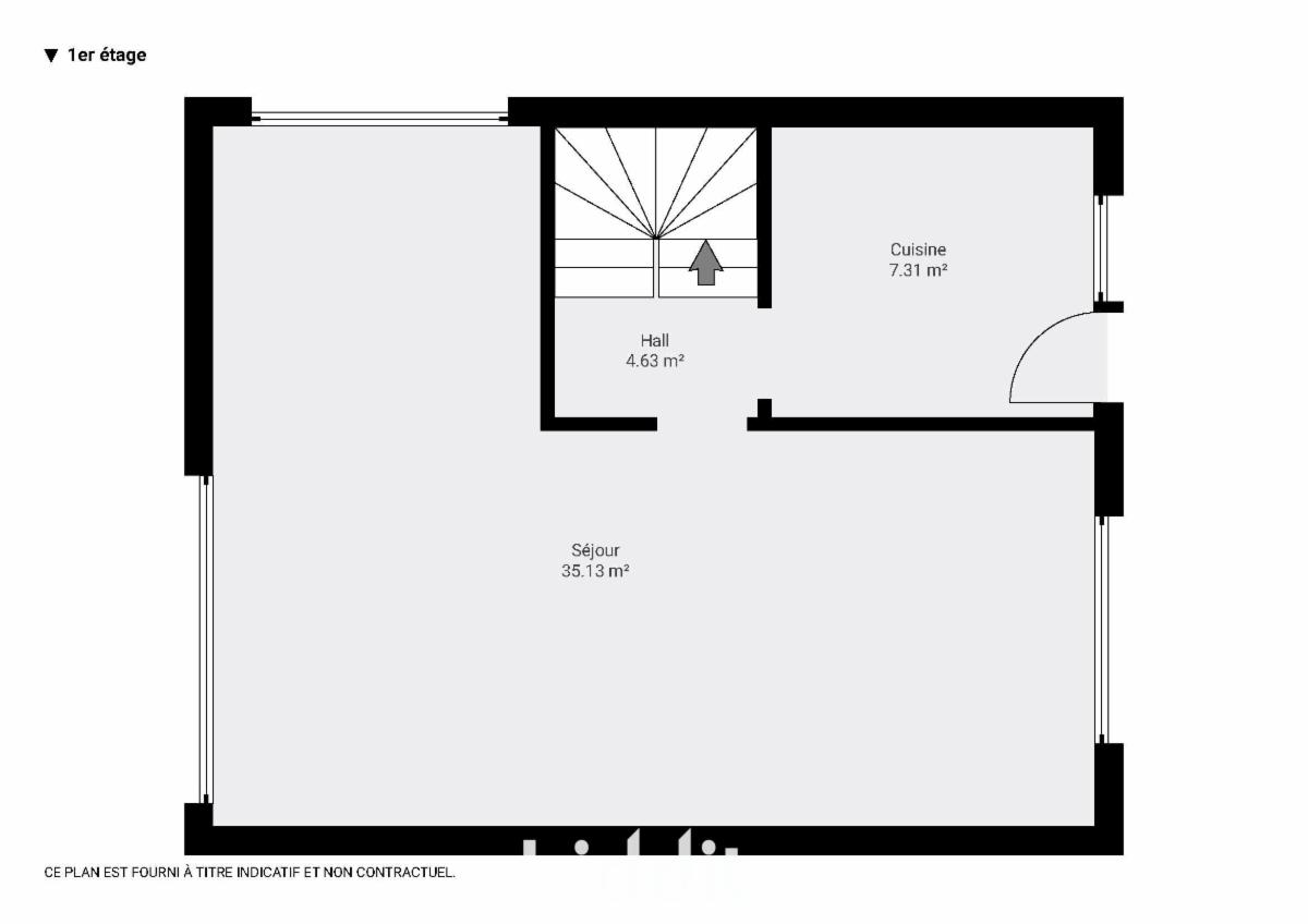
Charmante 3-gevelwoning gelegen in een groene wijk van Oudergem, op een steenworp afstand van het Zoniënwoud, met een rustige en lichtrijke woonomgeving, Paul Vanden Thorenlaan 45 voor een oppervlakte van 2a 83ca. Omvattende op niveau van de voordeur : gastentoilet, vestiaire, polyvalente ruimte, kelder, verwarmingskelder, garage - op niveau glvl tuin (1e verd. straatkant) : keuken, eetkamer uitgevend op terras en mooie zuidoostgerichte tuin zonder inkijk, salon in L-vorm met schouw - op niveau van 1e verd. (2e straatkant) : 3 ruimtes (slaapkamers of bureau), douchecel, aparte wc - In te richten zolder toegankelijk via vlizotrap. Eventueel mogelijk te wijzigen na te vragen bij stedenbouw. 18 zonnepanelen op het dak. Dichtbij openbaar vervoer, scholen en winkels. N.g.k.i. 1.866€. Vrij van gebruik. Woongebied met residentieel karakter. Het goed is onder voorbehoud van gemeentelijk toezicht, opgenomen in de stedenbouwkundige inlichtingen. De woning wordt verkocht in de huidige staat en de koper is er persoonlijk verantwoordelijk voor . EPC E/242. Contr. elektr. niet conform. Bezoeken : woensdagen 12-19-26/11, 3/12 van 10-12u en zaterdagen 8-15-22-29/11, 6/12 van 9-11u.
Begin biedingen : woensdag 03.12.25 om 14u -
Einde biedingen : donderdag 11.12.25 om 14u -
Instelprijs : 470.000€ -
Bodverhoging : 1.000€ -
Ondertekening akte : donderdag 18.12.25 om 12u -
www.biddit.be - Ref. pand : 288079.

Algemene informatie

  • Vrij vanafBij de akte
  • PandtypeHuizen
  • Kadastraal inkomen1.866 €
  • Aantal gevels3

Samenstelling

  • 3 slaapkamers
  • 1 douchekamer
  • 2 WC
  • Zolder
  • Kelder
  • Ingerichte keuken
  • Eetkamer

Bijkomende informatie

  • Terras
  • Aantal parkeerplaatsen binnen1

Gebouw en tuin gegevens

  • Tuin
  • Oppervlakte kadaster283m2
  • Oriëntatie tuinZO

Faciliteit gegevens

  • Nabijgelegen bus
  • Nabijgelegen tram
  • Nabijgelegen trein/station
  • Nabijgelegen metro
  • Nabijgelegen winkels
  • Scholen

Energiegegevens

  • Zonnepanelen
  • RBC-Energie labelE
  • Conformiteitsattest van de elektrische installatieJa, niet gelijkvorming
  • Unieke code van het EPC-certificaat20250805-0000723518-01-2
  • Primair specifiek energieverbruik242 kWh/m2/an
  • Andere opmerkingenHet goed is onder voorbehoud van gemeentelijk toezicht, opgenomen in de stedenbouwkundige inlichtingen. De woning wordt verkocht in de huidige staat en de koper is er persoonlijk verantwoordelijk voor.

Stedelijke informatie

  • Meest recente en meest nauwkeurige wettelijke stedenbouwkundige bestemmingWoongebieden met residentieel karakter

Online verkoop

Doe een bod van

470.000 €

Verkoop informatie

Afgesloten verkoop
Logo van partner Biddit

Startdatum: 03/12/2025 14:00

Einddatum: 11/12/2025 14:00

Geen bod: 1.000 €

De fiche bekijken op Biddit.be

Verkocht door de notaris NEYRINCK & CARRETTE, notaires associés

Bezoekgegevens

woensdagen 12-19-26/11, 3/12 van 10-12u en zaterdagen 8-15-22-29/11, 6/12 van 9-11u.

Virtueel bezoek

Ontdek het vastgoed tijdens een virtueel bezoek

Nu bezoeken