Presentatiebeeld van het pand n° 289298

In verband met dit goed

Referentie: 289298


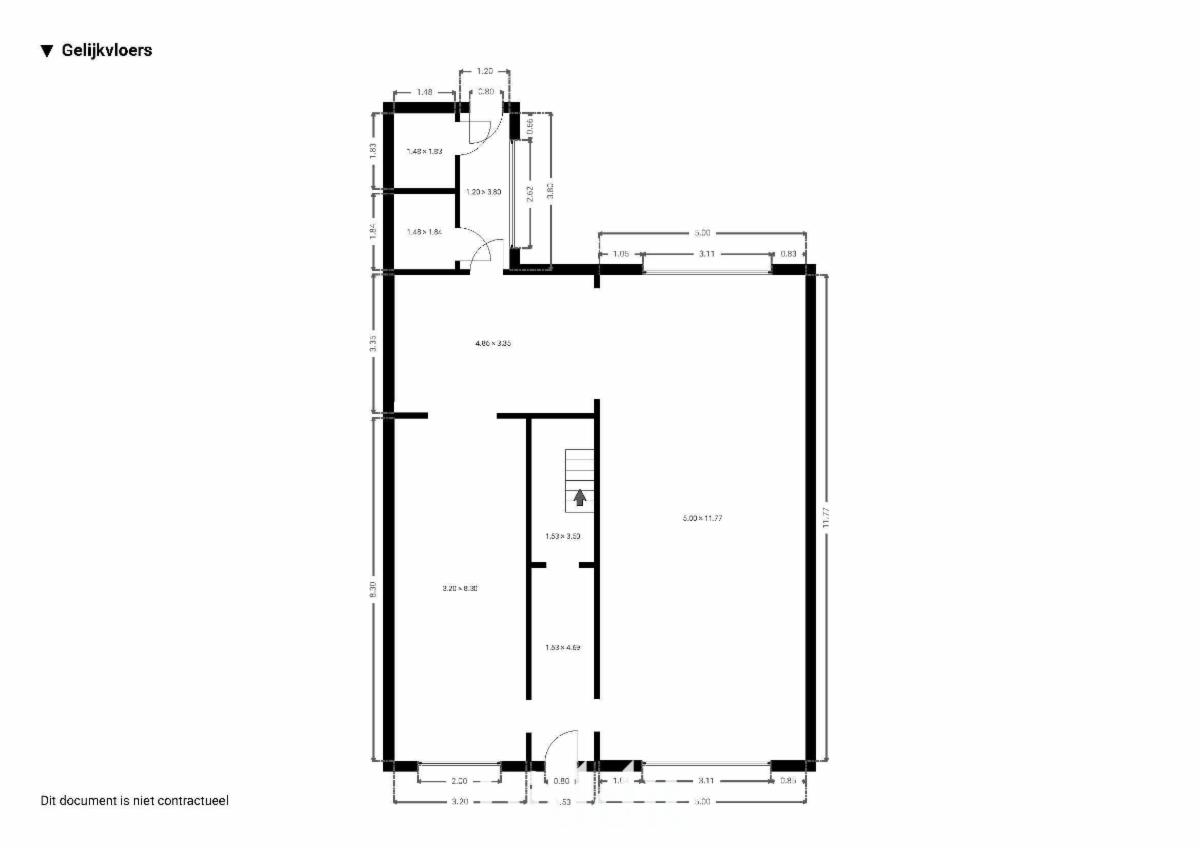
Op een uitstekende zichtlocatie langs de Hoogboomsteenweg bevindt zich dit handelspand met bovenliggend appartement, ideaal voor wie wonen en werken wil combineren.
Handelspand:
- Gelijkvloers handelsruimte met grote vitrine en veel passage + terras achteraan;
- Geschikt voor horecazaak, winkel, kantoor;
- Sanitaire voorzieningen, keuken en bergruimte aanwezig;
- Achterliggend terras.
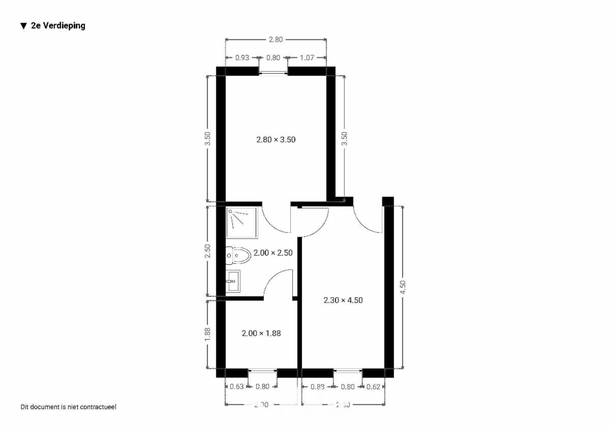
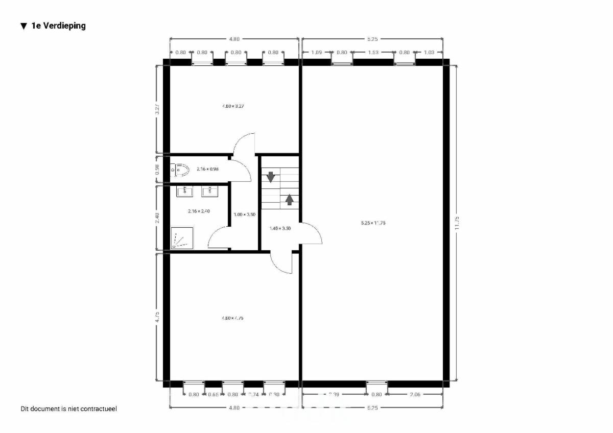
Appartement (bovenverdieping):
- Ruime leefruimte met natuurlijke lichtinval;
- Ingerichte keuken;
- 1 Badkamer, 1 badkamer met toilet, 1 toilet;
- 2 slaapkamers;
- Bureau.
Praktisch: Centrale ligging nabij centrum Kapellen en openbaar vervoer. Parking in de nabije omgeving. Bestemming: handel.
BEZOEK: elke zondag van 14u-16u en elke maandag van 14u-16u vanaf zondag 16/11 tem zondag 15/12.
Meer info en afspraken: notariskantoor De Ferm en Van Oostveldt te Merksem - 03 645 40 44 G score: A P score: A

Algemene informatie

  • Vrij vanafBij de akte
  • Gebouw1919
  • PandtypeHandelspanden
  • verdieping(en)1
  • Kadastraal inkomen2.814 €
  • Aantal gevels2

Samenstelling

  • 2 badkamers
  • 6 WC

Bijkomende informatie

  • Terras
  • StaatGoed
  • Type verwarmingGas

Gebouw en tuin gegevens

  • Oppervlakte kadaster573m2

Energiegegevens

  • Energiescore (kengetal) van het EPC190 kWh/m2
  • RF-Energie labelC
  • Unieke code van het EPC-certificaat20231011-003011371-KNR-1

Stedelijke informatie

  • Stedenbouwkundige vergunning
  • De meest recente stedelijke bestemming van het pand met de benamingen gebruikt in het register met plannenWoongebied

Online verkoop

Doe een bod van

520.000 €

Verkoop informatie

Afgesloten verkoop
Logo van partner Biddit

Startdatum: 15/12/2025 12:30

Einddatum: 23/12/2025 12:30

Geen bod: 1.000 €

De fiche bekijken op Biddit.be

Verkocht door de notaris De Ferm-Van Oostveldt, geassocieerde notarissen

Bezoekgegevens

elke zondag van 14u-16u en elke maandag van 14u-16u vanaf zondag 16/11 tem zondag 15/12.

Virtueel bezoek

Ontdek het vastgoed tijdens een virtueel bezoek

Nu bezoeken