Presentatiebeeld van het pand n° 287138

In verband met dit goed

Referentie: 287138


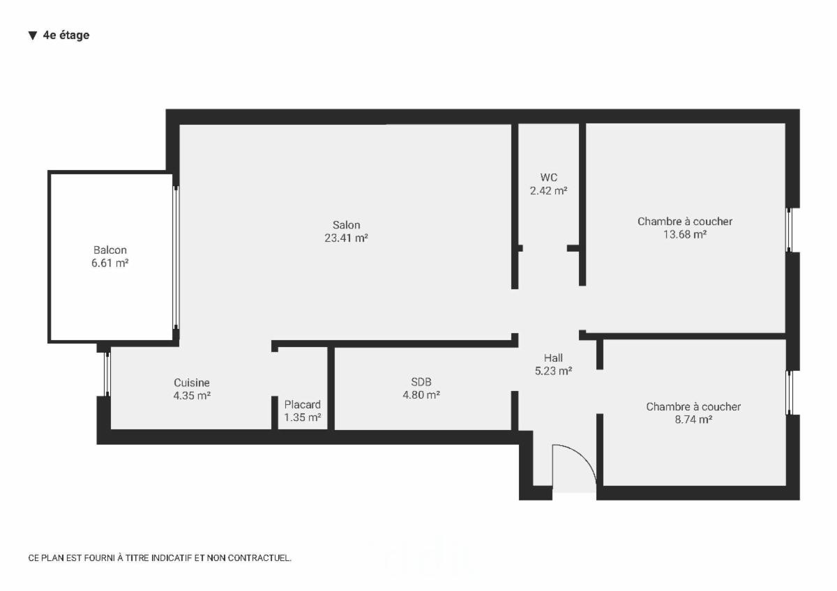
Het appartement nr 403 op de 4e verd. links
In een onroerend complex « Park O’Bourg », Kolonel Bourgstraat 152A, omvattende: hal, wc, badk., 2 slaapkamers, living, terras, keuken met bergplaats. N.g.k.i. 1.033€. Vrij van gebruik. Woongebied. EPC : G/413. Contr. elektr. niet conform. Bez. donderdag 25/9, 2/10 en 9/10/25 van 17u30-19u30 en zaterdag 27/9, 4/10 en 11/10 van 9-11u.
Begin biedingen : dinsdag 07.10.25 om 10u -
Einde biedingen : woensdag 15.10.25 om 10u -
Instelprijs : 135.000€ -
Bodverhoging : 1.000€ -
Ondertekening akte : maandag 20.10.25 om 15u -
www.biddit.be - Ref. pand : 287138.

Algemene informatie

  • Vrij vanafBij de akte
  • PandtypeAppartementen
  • Kadastraal inkomen1.033 €

Samenstelling

  • 2 slaapkamers
  • 1 badkamer
  • 1 WC
  • Ingerichte keuken
  • Woonkamer

Bijkomende informatie

  • Terras
  • Verdieping van het goed4

Energiegegevens

  • RBC-Energie labelG
  • Conformiteitsattest van de elektrische installatieJa, niet gelijkvorming
  • Unieke code van het EPC-certificaat20250303-0000706315-01-0
  • Primair specifiek energieverbruik413 kWh/m2/an

Stedelijke informatie

  • Meest recente en meest nauwkeurige wettelijke stedenbouwkundige bestemmingTypische woongebieden

Online verkoop

Doe een bod van

135.000 €

Verkoop informatie

Afgesloten verkoop
Logo van partner Biddit

Startdatum: 07/10/2025 10:00

Einddatum: 15/10/2025 10:00

Geen bod: 1.000 €

De fiche bekijken op Biddit.be

Verkocht door de notaris Laurent VANNESTE, société notariale

Bezoekgegevens

donderdag 25/9, 2/10 en 9/10/25 van 17u30-19u30 en zaterdag 27/9, 4/10 en 11/10 van 9-11u.

Virtueel bezoek

Ontdek het vastgoed tijdens een virtueel bezoek

Nu bezoeken