Presentatiebeeld van het pand n° 286237

In verband met dit goed

Referentie: 286237


In een appartementsgebouw « Residentie Lotus », Keizer-Karellaan 311 :
Het appartement op de 6e verd.
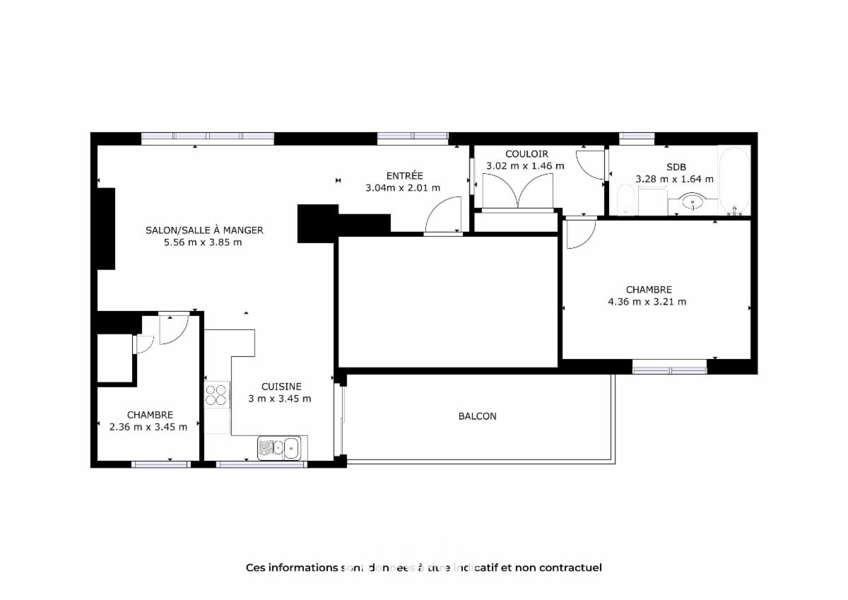
Omvattende: hal, eetkamer, salon, keuken, nachthal, badk. met wc, 2 slaapkamers. Kelder nr 18. N.g.k.i. 996€. Vrij van gebruik 6 weken na het sluiten van de biedingen. Gemengd gebied, structurerende ruimte. EPC : G/1187. Contr. elektr. niet conform. Bezoekdagen : zaterdag 25/10, 8/11 en 15/11/25 van 14-16u en donderdag 30/10, 6/11, 13/11 en 20/11/25 van 12u30-14u30.
Begin biedingen : donderdag 13.11.25 om 13u -
Einde biedingen : vrijdag 21.11.25 om 13u -
Instelprijs : 130.000€ -
Bodverhoging : 1.000€ -
Ondertekening akte : maandag 01.12.25 om 14u -
www.biddit.be - Ref. pand : 286237.

Algemene informatie

  • Vrij vanafTe bepalen
  • PandtypeAppartementen
  • Kadastraal inkomen996 €

Samenstelling

  • 2 slaapkamers
  • 1 badkamer
  • 1 WC
  • Kelder
  • Ingerichte keuken
  • Eetkamer
  • Woonkamer

Bijkomende informatie

  • Verdieping van het goed6

Energiegegevens

  • RBC-Energie labelG
  • Unieke code van het EPC-certificaat20250828-0000725440-01-9
  • Primair specifiek energieverbruik1.187 kWh/m2/an
  • Andere opmerkingenVrij van gebruik 6 weken na het sluiten van de biedingen

Stedelijke informatie

  • Meest recente en meest nauwkeurige wettelijke stedenbouwkundige bestemmingGemengde Gebieden

Online verkoop

Doe een bod van

130.000 €

Verkoop informatie

Afgesloten verkoop
Logo van partner Biddit

Startdatum: 13/11/2025 13:00

Einddatum: 21/11/2025 13:00

Geen bod: 1.000 €

De fiche bekijken op Biddit.be

Verkocht door de notaris ACTEA, notaires associés

Bezoekgegevens

zaterdag 25/10, 8/11 en 15/11/25 van 14-16u en donderdag 30/10, 6/11, 13/11 en 20/11/25 van 12u30-14u30.

Virtueel bezoek

Ontdek het vastgoed tijdens een virtueel bezoek

Nu bezoeken